Eladó Lakás
Hirdetéskód: 9181098
OTP Ingatlanpont - Budapest IX. ker., Üllői út 21.
Felújításhoz személyi kölcsönt keres? Kalkuláljon itt! →98.00 m2
ALAPTERÜLET3
SZOBASZÁMnincs megadva
ÉPÍTÉSnincs megadva
FŰTÉS- CSOK igénybe vehető nem
- Tetőtér beépíthető nem
- Építés éve 1900
- Klíma nem
- Szigetelt nem
A+++
A++
A+
A
B
C
D
E
F
G
H
I
Az ingatlan leírása
Belvárosi gyöngyszem – modern otthon és értékálló befektetés egyben
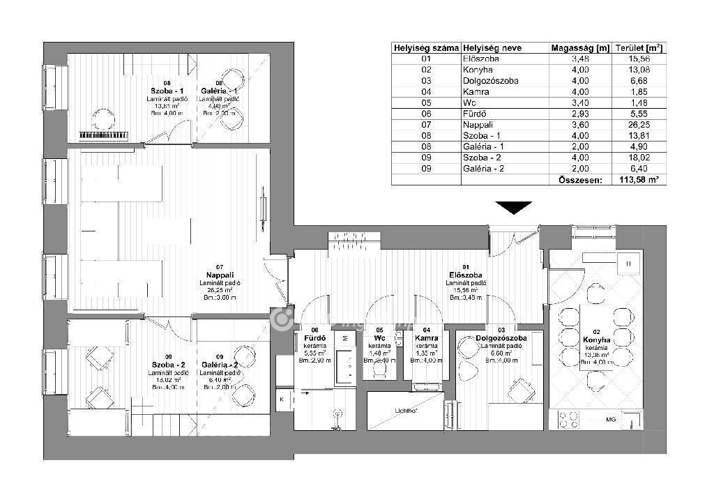
A VII. és VIII. kerület határán, egy csendes mellékutcában kínálunk megvételre egy 113 m²-es, napfényben úszó, első emeleti lakást, amelyet építészcsalád tervei alapján, kompromisszumok nélkül újítottak fel. A letisztult, modern stílus és az egyedi részletmegoldások harmóniája egy olyan otthont teremtett, amely valóban azonnal költözhető és hosszú távon is biztos befektetés.
A lakás teljes körű, dokumentált felújításon esett át: minden közmű, burkolat és nyílászáró megújult. A fűtést gazdaságos kondenzációs gázkazán, a hűtést álmennyezetbe rejtett, WiFi-ről vezérelhető klíma biztosítja. A kedvező rezsiköltségek (átlagosan villany 6.000 Ft, gáz 7.000 Ft, víz 4.000 Ft, közös költség 34.000 Ft) különösen értékesek a belváros szívében.
A vételár tartalmazza a modern, beépített Gorenje konyhagépekkel felszerelt konyhát, valamint az egyedileg tervezett bútorokat, lámpákat és a kanapét – így az új tulajdonosnak valóban csak a személyes tárgyait kell magával hoznia. További berendezési tárgyak is megvásárolhatók megegyezés szerint.
A környék kivételes: pár perc séta az M2 és M4 metró, a 4-6-os villamos, valamint több busz és troli. A Keleti pályaudvar 6 perc alatt elérhető, így a város bármely pontja gyorsan megközelíthető. A II. János Pál Pápa tér közelsége sportolási és kikapcsolódási lehetőséget kínál, míg a környék üzletei, színházai és bevásárlóközpontjai gondoskodnak a mindennapok kényelméről.
A liftes társasház rendezett, zöld belső udvarral rendelkezik, erős közös képviselettel és stabil pénzügyi háttérrel, ami tovább erősíti az ingatlan biztonságos értéknövekedési potenciálját.
Ez a lakás nem pusztán egy tágas és stílusos otthon, hanem egy megbízható, értékálló befektetés is, amely rövid határidővel birtokba vehető.
Amennyiben felkeltette érdeklődését, kérem, keressen bizalommal!
Az adásvételhez igény esetén megbízható ügyvédi és hitelügyintézői támogatást is biztosítunk.
Referenciaszám: M312521
A VII. és VIII. kerület határán, egy csendes mellékutcában kínálunk megvételre egy 113 m²-es, napfényben úszó, első emeleti lakást, amelyet építészcsalád tervei alapján, kompromisszumok nélkül újítottak fel. A letisztult, modern stílus és az egyedi részletmegoldások harmóniája egy olyan otthont teremtett, amely valóban azonnal költözhető és hosszú távon is biztos befektetés.
A lakás teljes körű, dokumentált felújításon esett át: minden közmű, burkolat és nyílászáró megújult. A fűtést gazdaságos kondenzációs gázkazán, a hűtést álmennyezetbe rejtett, WiFi-ről vezérelhető klíma biztosítja. A kedvező rezsiköltségek (átlagosan villany 6.000 Ft, gáz 7.000 Ft, víz 4.000 Ft, közös költség 34.000 Ft) különösen értékesek a belváros szívében.
A vételár tartalmazza a modern, beépített Gorenje konyhagépekkel felszerelt konyhát, valamint az egyedileg tervezett bútorokat, lámpákat és a kanapét – így az új tulajdonosnak valóban csak a személyes tárgyait kell magával hoznia. További berendezési tárgyak is megvásárolhatók megegyezés szerint.
A környék kivételes: pár perc séta az M2 és M4 metró, a 4-6-os villamos, valamint több busz és troli. A Keleti pályaudvar 6 perc alatt elérhető, így a város bármely pontja gyorsan megközelíthető. A II. János Pál Pápa tér közelsége sportolási és kikapcsolódási lehetőséget kínál, míg a környék üzletei, színházai és bevásárlóközpontjai gondoskodnak a mindennapok kényelméről.
A liftes társasház rendezett, zöld belső udvarral rendelkezik, erős közös képviselettel és stabil pénzügyi háttérrel, ami tovább erősíti az ingatlan biztonságos értéknövekedési potenciálját.
Ez a lakás nem pusztán egy tágas és stílusos otthon, hanem egy megbízható, értékálló befektetés is, amely rövid határidővel birtokba vehető.
Amennyiben felkeltette érdeklődését, kérem, keressen bizalommal!
Az adásvételhez igény esetén megbízható ügyvédi és hitelügyintézői támogatást is biztosítunk.
Referenciaszám: M312521