Eladó Lakás
Hirdetéskód: 9210619
MIK Magyar Ingatlan Központ
Felújításhoz személyi kölcsönt keres? Kalkuláljon itt! →47.00 m2
ALAPTERÜLET2
SZOBASZÁMnincs megadva
ÉPÍTÉSHázközponti fűtés egyedi méréssel
FŰTÉS- CSOK igénybe vehető nem
- Belső szintek 1
- Tetőtér beépíthető nem
- Fűtés Házközponti fűtés egyedi méréssel
- Klíma nem
- Szigetelt nem
A+++
A++
A+
A
B
C
D
E
F
G
H
I
Az ingatlan leírása
Józsefvárosban a Csarnok negyedben – sétatávolságra a Harminckettesek terétől, de mégis csendes környezetben eladásra kínálunk új építésű ingatlanokat.
Magas minőségű kivitelezéssel 16 lakásos társasházban még 3 lakás és 1 üzlethelyiség várja leendő tulajdonosát a Teréz körút szomszédságában, közel a Corvin Plázához. A lakások méretei
47- 76 nm közöttiek, új fejlesztésű a mai kor igényeinek megfelelnek, saját otthonnak, mind értékálló befektetésnek is kiválóak. Változatos méretű két-, illetve három szobás kivitelben készülnek.
Az üzlethelyiség földszinti utcáról nyíló, 48 m2 alapterületű, amely alkalmas különböző szolgáltatásokra létesítésére ( pl. kávézó, szépségszalon stb. ) -
A lakások:
5. emelet 3 szobás 67,13 m2 + terasz 17,67 m2 - 150.000.000.-Ft (503-as)
5. emelet 2 szobás 47,65 m2 + terasz 11,24 m2 - 106.000.000.-Ft (502-es)
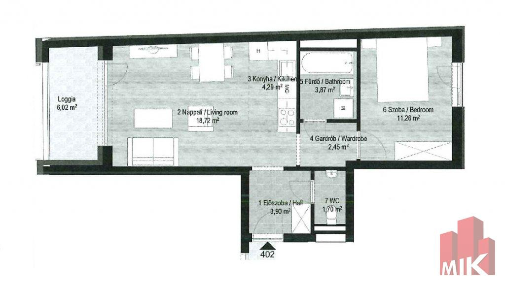
4. emelet 2 szobás 47,13 m2 + terasz 6,02 m2 - 92.600.000.-Ft (402-es)
Az épület az Óbudai Egyetem szomszédságában található. A Lovassy utca a VIII. kerületnek, a Csarnok negyedében jó elhelyezkedésű utcának számít: belváros közeli, jó elérhető infrastruktúrával, bevásárlási lehetőségekkel.
Éttermek, kávézók, helyi üzletek működnek a környéken. A lakók 15 percen belül minden, számukra fontos helyet el tudnak érni.
A lakások belső kialakításához, hideg-meleg burkolatokat, csaptelepeket a vásárlóink saját ízlésüknek megfelelően választhatják ki a megadott beszállítóktól.
Lakásaink a szerződés aláírását és az egyedi igények véglegesítését követően 2026. nyarán (6 hónapon belül) költözhetők.
Érdeklődése esetén állunk rendelkezésére!
Az ingatlan személyes megtekintése előtt bővebb felvilágosítást adunk, az ingatlan megtekintését kérésére megszervezzük.
MIK azonosító: 3832714
Magas minőségű kivitelezéssel 16 lakásos társasházban még 3 lakás és 1 üzlethelyiség várja leendő tulajdonosát a Teréz körút szomszédságában, közel a Corvin Plázához. A lakások méretei
47- 76 nm közöttiek, új fejlesztésű a mai kor igényeinek megfelelnek, saját otthonnak, mind értékálló befektetésnek is kiválóak. Változatos méretű két-, illetve három szobás kivitelben készülnek.
Az üzlethelyiség földszinti utcáról nyíló, 48 m2 alapterületű, amely alkalmas különböző szolgáltatásokra létesítésére ( pl. kávézó, szépségszalon stb. ) -
A lakások:
5. emelet 3 szobás 67,13 m2 + terasz 17,67 m2 - 150.000.000.-Ft (503-as)
5. emelet 2 szobás 47,65 m2 + terasz 11,24 m2 - 106.000.000.-Ft (502-es)
4. emelet 2 szobás 47,13 m2 + terasz 6,02 m2 - 92.600.000.-Ft (402-es)
Az épület az Óbudai Egyetem szomszédságában található. A Lovassy utca a VIII. kerületnek, a Csarnok negyedében jó elhelyezkedésű utcának számít: belváros közeli, jó elérhető infrastruktúrával, bevásárlási lehetőségekkel.
Éttermek, kávézók, helyi üzletek működnek a környéken. A lakók 15 percen belül minden, számukra fontos helyet el tudnak érni.
A lakások belső kialakításához, hideg-meleg burkolatokat, csaptelepeket a vásárlóink saját ízlésüknek megfelelően választhatják ki a megadott beszállítóktól.
Lakásaink a szerződés aláírását és az egyedi igények véglegesítését követően 2026. nyarán (6 hónapon belül) költözhetők.
Érdeklődése esetén állunk rendelkezésére!
Az ingatlan személyes megtekintése előtt bővebb felvilágosítást adunk, az ingatlan megtekintését kérésére megszervezzük.
MIK azonosító: 3832714