Eladó Lakás
Hirdetéskód: 9226548
Bp. XIV. Ilka utcai franchise iroda
96.00 m2
ALAPTERÜLET3
SZOBASZÁMnincs megadva
ÉPÍTÉSGáz (cirkó)
FŰTÉS- CSOK igénybe vehető nem
- Belső szintek 5
- Tetőtér beépíthető nem
- Építés éve 1904
- Fűtés Gáz (cirkó)
- Klíma nem
- Szigetelt nem
A+++
A++
A+
A
B
C
D
E
F
G
H
I
Az ingatlan leírása
Referens: JR14/106678
Eladó luxusminőségben felújított, polgári lakás a Corvin-negyedben
Eladásra kínálunk egy 2020-ban, teljes körűen és luxus kivitelben felújított, modern stílusú polgári lakást a Corvin-negyed szívében, egy csendes mellékutcában.
A ház jellemzői:
Felújított, szigetelt homlokzatú, 5 emeletes, körfolyosós polgári épület.
A lakás a 3. emeleten található.
A tető felújítása jelenleg is zajlik.
A társasház folyamatos megújuláson megy keresztül.
A lakás jellemzői:
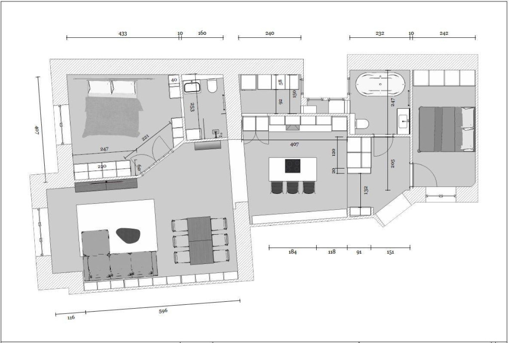
96 m², 2 külön nyíló hálószoba, 2 fürdőszoba, háztartási helyiség.
Nagy méretű nappali + konyha + étkező.
A fő hálószoba saját fürdőszobával (en-suite).
Egyik fürdő káddal, a másik zuhanyzóval.
3,5 méteres belmagasság, igazi polgári hangulat.
Padlófűtés minden helyiségben.
Korszerű kondenzációs Westen kazán 50 literes puffer tartállyal.
Új, 3 rétegű műanyag nyílászárók, zajvédő üvegezéssel.
A hálószoba fala zajszigetelt.
Daikin split klíma.
Prémium hideg–meleg burkolatok, 3 rétegű tömörfa svédpadló.
Egyedi beépített bútorok: konyhabútor, előszobai gardrób, hálószobai beépített szekrények, fürdőszoba bútorok.
Beépített Bosch konyhagépek: mosogatógép, indukciós lap, hűtő-fagyasztó, sütő, mikró, elszívó.
Teljesen új villamos hálózat: 3 fázis, összesen 60A (3×20A).
Víz-, gáz- és fűtésrendszer szintén új.
Garázsbérlési lehetőség az utcában található új építésű házban.
A szakember által tervezett enteriőr miatt a nem beépített bútorok is megegyezés tárgyát képezik.
Költségek
Közös költség: 26 000 Ft
(szemétszállítás, takarítás, felújítási alap, lift karbantartás.)
Környék:
A Corvin Pláza, Corvin Mozi és a Corvin Sétány pár perc sétára található. A közelben minden megtalálható: üzletek, szupermarket, gyógyszertár, posta és éttermek.
Kiváló közlekedés
4–6 villamos: néhány perc
M3 metró: szintén pár perc
(A lakás csendes mellékutcára néz, a villamos és metró zaja nem hallatszik be.)
Eladó luxusminőségben felújított, polgári lakás a Corvin-negyedben
Eladásra kínálunk egy 2020-ban, teljes körűen és luxus kivitelben felújított, modern stílusú polgári lakást a Corvin-negyed szívében, egy csendes mellékutcában.
A ház jellemzői:
Felújított, szigetelt homlokzatú, 5 emeletes, körfolyosós polgári épület.
A lakás a 3. emeleten található.
A tető felújítása jelenleg is zajlik.
A társasház folyamatos megújuláson megy keresztül.
A lakás jellemzői:
96 m², 2 külön nyíló hálószoba, 2 fürdőszoba, háztartási helyiség.
Nagy méretű nappali + konyha + étkező.
A fő hálószoba saját fürdőszobával (en-suite).
Egyik fürdő káddal, a másik zuhanyzóval.
3,5 méteres belmagasság, igazi polgári hangulat.
Padlófűtés minden helyiségben.
Korszerű kondenzációs Westen kazán 50 literes puffer tartállyal.
Új, 3 rétegű műanyag nyílászárók, zajvédő üvegezéssel.
A hálószoba fala zajszigetelt.
Daikin split klíma.
Prémium hideg–meleg burkolatok, 3 rétegű tömörfa svédpadló.
Egyedi beépített bútorok: konyhabútor, előszobai gardrób, hálószobai beépített szekrények, fürdőszoba bútorok.
Beépített Bosch konyhagépek: mosogatógép, indukciós lap, hűtő-fagyasztó, sütő, mikró, elszívó.
Teljesen új villamos hálózat: 3 fázis, összesen 60A (3×20A).
Víz-, gáz- és fűtésrendszer szintén új.
Garázsbérlési lehetőség az utcában található új építésű házban.
A szakember által tervezett enteriőr miatt a nem beépített bútorok is megegyezés tárgyát képezik.
Költségek
Közös költség: 26 000 Ft
(szemétszállítás, takarítás, felújítási alap, lift karbantartás.)
Környék:
A Corvin Pláza, Corvin Mozi és a Corvin Sétány pár perc sétára található. A közelben minden megtalálható: üzletek, szupermarket, gyógyszertár, posta és éttermek.
Kiváló közlekedés
4–6 villamos: néhány perc
M3 metró: szintén pár perc
(A lakás csendes mellékutcára néz, a villamos és metró zaja nem hallatszik be.)