Eladó Lakás
Hirdetéskód: 9312671
GDN Ingatlanhálózat - Sashalom
Felújításhoz személyi kölcsönt keres? Kalkuláljon itt! →68.00 m2
ALAPTERÜLET2
SZOBASZÁMnincs megadva
ÉPÍTÉSnincs megadva
FŰTÉS- CSOK igénybe vehető nem
- Tetőtér beépíthető nem
- Klíma nem
- Szigetelt nem
A+++
A++
A+
A
B
C
D
E
F
G
H
I
Az ingatlan leírása
TÁGAS CSALÁDI OÁZIS ÓRIÁSI ERKÉLLYEL: PRÉMIUM A+ LAKÁS A KÁLVÁRIA TÉRNÉL
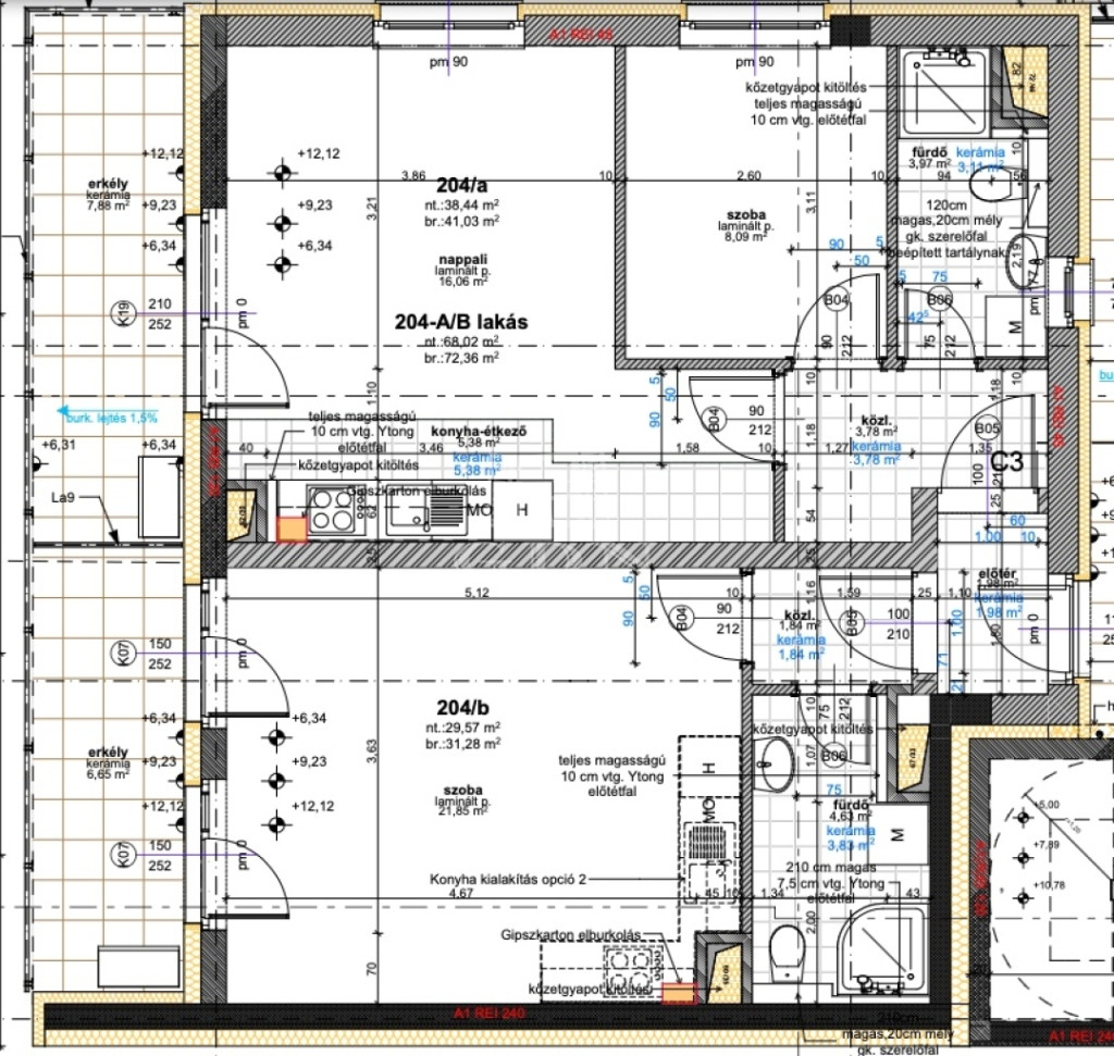
Eladó egy kiemelkedő adottságú, 68 négyzetméteres, 2. emeleti, 2 szobás, új építésű lakás a VIII. kerület legszebb, rehabilitált részén. Az ingatlan ékköve a 8 négyzetméteres, tágas erkély, amely valódi kiterjesztése a nappalinak. Ez a lakás azoknak készült, akik nem akarnak kompromisszumot kötni a belvárosi közelség és a tágas, élhető terek között.
A 2026-os átadású lakás elosztása ideális családok részére: nagyvonalú közösségi tér, szeparált hálószobák és duplakomfort biztosítja a zavartalan mindennapokat. A modern gépészet és a kiváló szigetelés révén a fenntartási költségek egy jóval kisebb lakás rezsijével vetekednek.
Műszaki tartalom:
- Energetikai besorolás: A+ (rezsibiztos otthon)
- Fűtés és hűtés: Levegő-víz hőszivattyú, egyedi Panasonic fan-coil rendszer minden helyiségben.
- Erkély: 8 nm-es, fedett kültéri pihenőhely.
- Szigetelés: 20 cm-es prémium homlokzati hőszigetelés.
KÖRNYÉK ÉS LOKÁCIÓ
A Kálvária tér megújuló parkjai, játszóterei és az egyetemek (NKE, Semmelweis) közelsége miatt ez a környék a fiatal családok és értelmiségiek kedvence. A közlekedés kiváló: M4 metró, 4-6-os villamos és számos buszjárat segíti a gyors városi mozgást.
A lakáshoz a teremgarázsban saját parkolóhely vásárolható 10 millió forintos irányáron. Az ingatlan modern berendezéssel, 2026. áprilisi átadással kerül birtokba.
Várom megtisztelő hívását a hét bármely napján a részletes műszaki adatokkal és a megtekintéssel kapcsolatban. ...TOVÁBBI, TÖBBEZRES INGATLAN KÍNÁLAT: - GDN azonosító: 393996
Eladó egy kiemelkedő adottságú, 68 négyzetméteres, 2. emeleti, 2 szobás, új építésű lakás a VIII. kerület legszebb, rehabilitált részén. Az ingatlan ékköve a 8 négyzetméteres, tágas erkély, amely valódi kiterjesztése a nappalinak. Ez a lakás azoknak készült, akik nem akarnak kompromisszumot kötni a belvárosi közelség és a tágas, élhető terek között.
A 2026-os átadású lakás elosztása ideális családok részére: nagyvonalú közösségi tér, szeparált hálószobák és duplakomfort biztosítja a zavartalan mindennapokat. A modern gépészet és a kiváló szigetelés révén a fenntartási költségek egy jóval kisebb lakás rezsijével vetekednek.
Műszaki tartalom:
- Energetikai besorolás: A+ (rezsibiztos otthon)
- Fűtés és hűtés: Levegő-víz hőszivattyú, egyedi Panasonic fan-coil rendszer minden helyiségben.
- Erkély: 8 nm-es, fedett kültéri pihenőhely.
- Szigetelés: 20 cm-es prémium homlokzati hőszigetelés.
KÖRNYÉK ÉS LOKÁCIÓ
A Kálvária tér megújuló parkjai, játszóterei és az egyetemek (NKE, Semmelweis) közelsége miatt ez a környék a fiatal családok és értelmiségiek kedvence. A közlekedés kiváló: M4 metró, 4-6-os villamos és számos buszjárat segíti a gyors városi mozgást.
A lakáshoz a teremgarázsban saját parkolóhely vásárolható 10 millió forintos irányáron. Az ingatlan modern berendezéssel, 2026. áprilisi átadással kerül birtokba.
Várom megtisztelő hívását a hét bármely napján a részletes műszaki adatokkal és a megtekintéssel kapcsolatban. ...TOVÁBBI, TÖBBEZRES INGATLAN KÍNÁLAT: - GDN azonosító: 393996