Eladó Lakás
Hirdetéskód: 9297334
OTP Ingatlanpont - Budapest IX. ker., Üllői út 21.
Felújításhoz személyi kölcsönt keres? Kalkuláljon itt! →106.00 m2
ALAPTERÜLET3
SZOBASZÁMnincs megadva
ÉPÍTÉSGáz (cirkó)
FŰTÉS- CSOK igénybe vehető nem
- Tetőtér beépíthető nem
- Építés éve 1900
- Fűtés Gáz (cirkó)
- Klíma nem
- Szigetelt nem
A+++
A++
A+
A
B
C
D
E
F
G
H
I
Az ingatlan leírása
***Felújított, világos lakás a Corvin negyedben! 2 lakás egyben (OTTHON START támogatásra is alkalmas!)***
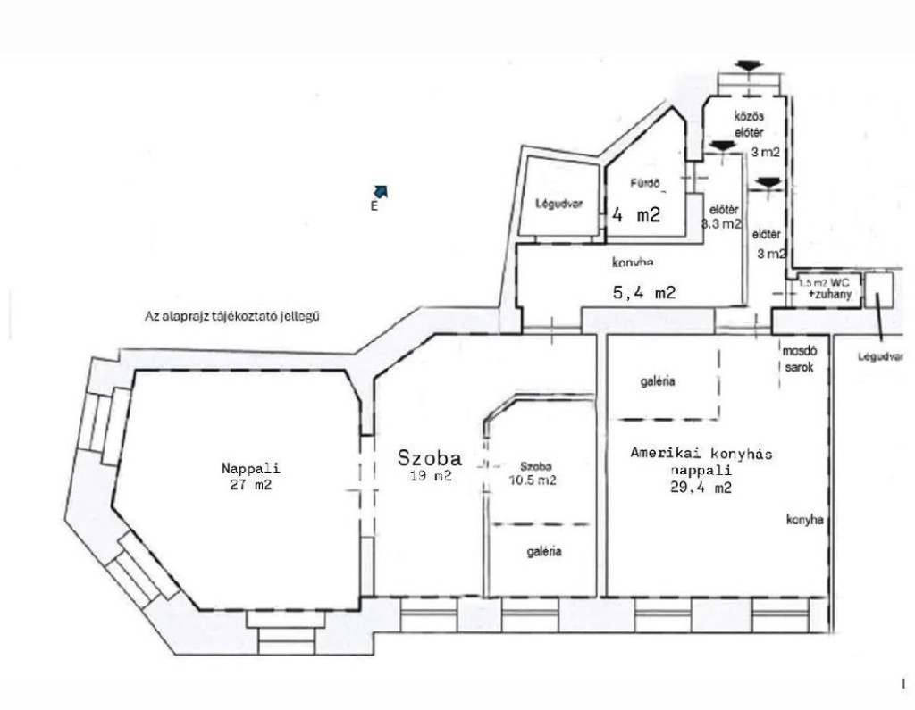
Budapest VIII. kerületében, a Corvin negyedben, a József körúton eladó egy 106 m2-es, 3+1 félszobás, felújított, világos, 3. emeleti lakás. Az ingatlan egyik különlegessége, hogy egyben és két külön lakásként is funkcionálhat.
Jelenleg egy közös bejáratról, de külön megközelíthetően található benne:
- egy 35 m2-es garzonlakás konyhával és fürdőszobával
- valamint egy 71 m2-es, 3 szobás lakás
Ez a kialakítás ideális lehet két generáció együttélésére, lakás-iroda kombinációra, illetve befektetési célra is, hiszen a lakrészek külön-külön vagy együtt is bérbe adhatók.
Műszaki és esztétikai jellemzők:
- A lakás 2024-ig több ütemben felújításon esett át (vezetékcsere, burkolatcsere, fűtéskorszerűsítés, konyhafelújítás, szaniterek, nyílászárók, stb.)
- Legutóbb kondenzációs kazáncsere történt, amely korszerű és hatékony fűtést biztosít
- Rendkívül világos, körbenapozott terek
- Hang- és hőszigetelt műanyag nyílászárók, a József körútra néző ablakokkal
- Két helyiségben galéria (kb. 1,7 m belmagassággal), amely tovább növeli a hasznos teret
- Ízléses, egyedi burkolatok és hangulatos csillárok
Társasház:
- Jó állapotú, rendezett ház
- Jó lakóközösség
Jogi helyzet:
-1/1 tulajdon
-Tehermentes
- Rövid időn belül költözhető
A gépek, berendezések, bútorok ára 10 mill. Ft, mely kötelezően megvásárolandó!
A kiváló elhelyezkedésnek és közlekedésnek köszönhetően az ingatlan befektetésre is kiváló, akár két teljesen szeparált lakásként is kiadható.
Amennyiben az ingatlan felkeltette az érdeklődését, kérem, vegye fel velem a kapcsolatot!
Referenciaszám: M320627
Az energetikai tanúsítvány készítése folyamatban van, amint rendelkezésre áll, úgy azzal a hirdetés frissítésre kerül.
Budapest VIII. kerületében, a Corvin negyedben, a József körúton eladó egy 106 m2-es, 3+1 félszobás, felújított, világos, 3. emeleti lakás. Az ingatlan egyik különlegessége, hogy egyben és két külön lakásként is funkcionálhat.
Jelenleg egy közös bejáratról, de külön megközelíthetően található benne:
- egy 35 m2-es garzonlakás konyhával és fürdőszobával
- valamint egy 71 m2-es, 3 szobás lakás
Ez a kialakítás ideális lehet két generáció együttélésére, lakás-iroda kombinációra, illetve befektetési célra is, hiszen a lakrészek külön-külön vagy együtt is bérbe adhatók.
Műszaki és esztétikai jellemzők:
- A lakás 2024-ig több ütemben felújításon esett át (vezetékcsere, burkolatcsere, fűtéskorszerűsítés, konyhafelújítás, szaniterek, nyílászárók, stb.)
- Legutóbb kondenzációs kazáncsere történt, amely korszerű és hatékony fűtést biztosít
- Rendkívül világos, körbenapozott terek
- Hang- és hőszigetelt műanyag nyílászárók, a József körútra néző ablakokkal
- Két helyiségben galéria (kb. 1,7 m belmagassággal), amely tovább növeli a hasznos teret
- Ízléses, egyedi burkolatok és hangulatos csillárok
Társasház:
- Jó állapotú, rendezett ház
- Jó lakóközösség
Jogi helyzet:
-1/1 tulajdon
-Tehermentes
- Rövid időn belül költözhető
A gépek, berendezések, bútorok ára 10 mill. Ft, mely kötelezően megvásárolandó!
A kiváló elhelyezkedésnek és közlekedésnek köszönhetően az ingatlan befektetésre is kiváló, akár két teljesen szeparált lakásként is kiadható.
Amennyiben az ingatlan felkeltette az érdeklődését, kérem, vegye fel velem a kapcsolatot!
Referenciaszám: M320627
Az energetikai tanúsítvány készítése folyamatban van, amint rendelkezésre áll, úgy azzal a hirdetés frissítésre kerül.