Eladó Lakás
Hirdetéskód: 9263450
FORTISElit
Felújításhoz személyi kölcsönt keres? Kalkuláljon itt! →164.00 m2
ALAPTERÜLET4
SZOBASZÁMTégla
ÉPÍTÉSGáz (cirkó)
FŰTÉS- CSOK igénybe vehető nem
- Belső szintek 5
- Tetőtér beépíthető nem
- Kilátás Panorámás
- Tájolás Dél
- Ingatlan komfort Összkomfortos
- Parkolási lehetőség Utcán, közterületen
- Építés éve 1911
- Fűtés Gáz (cirkó)
- Építőanyag Tégla
- Erkély, terasz Erkély
- Klíma igen
- Szigetelt nem
A+++
A++
A+
A
B
C
D
E
F
G
H
I
Az ingatlan leírása
Az ingatlan Budapest VIII. kerületében, a Déri Miksa utcában található, amely az elmúlt években jelentős fejlődésen ment keresztül. Az utca négy éve sétálóutcává lett minősítve, így a környezet csendesebb, rendezettebb, ugyanakkor továbbra is kiválóan kapcsolódik a város vérkeringéséhez. A közelben elérhetők a főbb közlekedési csomópontok, villamos- és buszjáratok, valamint a belváros néhány perc alatt megközelíthető. A környék infrastruktúrája teljes körű, üzletek, szolgáltatások, oktatási és egészségügyi intézmények egyaránt megtalálhatók.
A lakás egy rendezett társasház ötödik emeletén helyezkedik el, zárt lépcsőházból nyílik. A bejutás több ponton záródó biztonsági ajtón, valamint biztonsági vasrácson keresztül történik. A társasház homlokzata nyolc éve felújításra került, a lift öt évvel ezelőtt korszerűsített, a lépcsőház festése szintén ekkor történt. A felszálló gázcsövek cseréje kilenc éve megtörtént, az ejtőcsatornák felújítása szakaszosan zajlott, három éve fejeződött be. A tetőszerkezet öt éve teljes körű felújításon esett át, beleértve a tetőlécek megerősítését és a cserepek pótlását. A padlástér 30 cm vastag kőzetgyapot szigeteléssel rendelkezik.
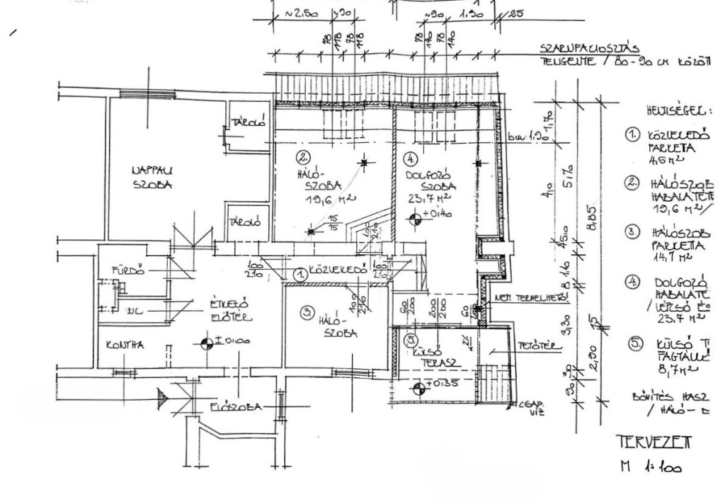
A lakás nettó alapterülete 149 négyzetméter, bruttó alapterülete 164 négyzetméter. A bejárati ajtón belépve egy kifejezetten tágas, világos előszobába érkezünk, amely párizsi hangulatú kilátást biztosít. Az ingatlan elosztása jól átgondolt, a közlekedőterek és a lakófunkciók megfelelő arányban vannak jelen.
A lakás négy különálló szobával rendelkezik, valamint egy tágas hallal, amelyből a konyha, az illemhelyiség és a további helyiségek is elérhetők. Három nagyobb szoba déli, illetve délkeleti fekvésű, ennek köszönhetően egész nap világosak. A negyedik, kisebb szoba északnyugati tájolású. Valamennyi szoba klimatizált. A lakáshoz egy 13 négyzetméteres, nyugati fekvésű erkély tartozik, amely jól használható pihenésre, szabadtéri étkezésre is.
Az ingatlan műszakilag jó állapotú, folyamatosan karbantartott. A nyílászárók elektromos redőnyökkel felszereltek. A gáz átalánydíj havi 14.000 forint. A lakás per- és tehermentes, igénymentes, így rövid határidővel birtokba vehető.
Az ingatlan mérete, elosztása és elhelyezkedése miatt ideális választás nagyobb családok számára, ugyanakkor befektetési célra is kifejezetten alkalmas. A lokáció és a lakás adottságai alapján hosszú távon is jól kiadható, értékálló ingatlan.
------
The property is located in Budapest’s 8th district, on Déri Miksa Street, an area that has undergone significant development in recent years. The street was reclassified as a pedestrian zone four years ago, resulting in a calmer, more orderly residential environment while maintaining excellent connectivity to the city. Major public transport routes, including tram and bus lines, are within easy reach, and the city centre can be accessed quickly. The surrounding infrastructure is well established, with shops, services, educational institutions, and healthcare facilities all nearby.
The apartment is situated on the fifth floor of a well-maintained residential building and is accessed via a closed stairwell. Entry is provided through a multi-point locking security door, complemented by an additional security gate. The building’s façade was renovated eight years ago, while the elevator underwent full modernization five years ago. The stairwell was repainted at the same time. The vertical gas risers were replaced nine years ago. The rainwater downpipes were renewed in stages, with the works completed three years ago. The roof structure was comprehensively refurbished five years ago, including reinforcement of roof battens and replacement of damaged tiles. The attic space is insulated with 30 cm of mineral wool.
The apartment has a net floor area of 149 square metres and a gross floor area of 164 square metres. Upon entering the property, one arrives in a spacious and exceptionally bright entrance hall, offering an open, Parisian-style outlook. The internal layout is well balanced, with generous circulation areas and clearly defined living spaces.
The apartment comprises four separate rooms, in addition to a large central hall from which the kitchen, sanitary facilities, and other rooms are accessed. Three of the larger rooms face south and south-east, ensuring abundant natural light throughout the day. The fourth, smaller room has a north-western orientation. All rooms are equipped with air conditioning. A west-facing balcony of 13 square metres is attached to the apartment and provides a comfortable outdoor space suitable for relaxation or dining.
The property is in good technical condition and has been consistently maintained. The windows are fitted with electrically operated shutters. The monthly gas flat rate is approximately HUF 14,000. The apartment is free of encumbrances and legal claims and can be taken into possession within a short timeframe.
Due to its size, layout, and location, the property is well suited for larger families. At the same time, it represents an attractive investment opportunity. Given the location and the apartment’s characteristics, it offers strong rental potential and long-term value stability.
ADATKEZELÉS
Ezúton tájékoztatjuk, hogy Ön mint érdeklődő, a hirdetésben megjelölt telefonszám felhívásával hozzájárul személyes adatai – így különösen neve és telefonszáma -, a hirdetést feladó FORTISElit Ingatlan Kft. általi - biztonságos és körültekintő - kezeléséhez, nyilvántartásához. E körben, keresse a FORTISELIT ingatlaniroda weboldalát adatkezelési tájékoztatót.
We hereby inform you that You as an interested party, by calling the phone number mentioned in the advertisement, contribute to be your personal data – especially your name and phone number – handled and recorded safe and circumspectively by FORTISElit Ingatlan Kft as advertiser. Hereby, you can learn our Privacy Policy.
FINANSZÍROZÁS
Adatbázisunkban további több ezer ingatlanból választhat, hívjon bizalommal, hogy megtaláljuk a legmegfelelőbbet!
Hitelre van szüksége? Teljes körű és díjmentes hitel-ügyintézéssel, biztosításkötéssel áll rendelkezésére szakértő kollégánk. Kérje személyre szabott ajánlatunkat!
A lakás egy rendezett társasház ötödik emeletén helyezkedik el, zárt lépcsőházból nyílik. A bejutás több ponton záródó biztonsági ajtón, valamint biztonsági vasrácson keresztül történik. A társasház homlokzata nyolc éve felújításra került, a lift öt évvel ezelőtt korszerűsített, a lépcsőház festése szintén ekkor történt. A felszálló gázcsövek cseréje kilenc éve megtörtént, az ejtőcsatornák felújítása szakaszosan zajlott, három éve fejeződött be. A tetőszerkezet öt éve teljes körű felújításon esett át, beleértve a tetőlécek megerősítését és a cserepek pótlását. A padlástér 30 cm vastag kőzetgyapot szigeteléssel rendelkezik.
A lakás nettó alapterülete 149 négyzetméter, bruttó alapterülete 164 négyzetméter. A bejárati ajtón belépve egy kifejezetten tágas, világos előszobába érkezünk, amely párizsi hangulatú kilátást biztosít. Az ingatlan elosztása jól átgondolt, a közlekedőterek és a lakófunkciók megfelelő arányban vannak jelen.
A lakás négy különálló szobával rendelkezik, valamint egy tágas hallal, amelyből a konyha, az illemhelyiség és a további helyiségek is elérhetők. Három nagyobb szoba déli, illetve délkeleti fekvésű, ennek köszönhetően egész nap világosak. A negyedik, kisebb szoba északnyugati tájolású. Valamennyi szoba klimatizált. A lakáshoz egy 13 négyzetméteres, nyugati fekvésű erkély tartozik, amely jól használható pihenésre, szabadtéri étkezésre is.
Az ingatlan műszakilag jó állapotú, folyamatosan karbantartott. A nyílászárók elektromos redőnyökkel felszereltek. A gáz átalánydíj havi 14.000 forint. A lakás per- és tehermentes, igénymentes, így rövid határidővel birtokba vehető.
Az ingatlan mérete, elosztása és elhelyezkedése miatt ideális választás nagyobb családok számára, ugyanakkor befektetési célra is kifejezetten alkalmas. A lokáció és a lakás adottságai alapján hosszú távon is jól kiadható, értékálló ingatlan.
------
The property is located in Budapest’s 8th district, on Déri Miksa Street, an area that has undergone significant development in recent years. The street was reclassified as a pedestrian zone four years ago, resulting in a calmer, more orderly residential environment while maintaining excellent connectivity to the city. Major public transport routes, including tram and bus lines, are within easy reach, and the city centre can be accessed quickly. The surrounding infrastructure is well established, with shops, services, educational institutions, and healthcare facilities all nearby.
The apartment is situated on the fifth floor of a well-maintained residential building and is accessed via a closed stairwell. Entry is provided through a multi-point locking security door, complemented by an additional security gate. The building’s façade was renovated eight years ago, while the elevator underwent full modernization five years ago. The stairwell was repainted at the same time. The vertical gas risers were replaced nine years ago. The rainwater downpipes were renewed in stages, with the works completed three years ago. The roof structure was comprehensively refurbished five years ago, including reinforcement of roof battens and replacement of damaged tiles. The attic space is insulated with 30 cm of mineral wool.
The apartment has a net floor area of 149 square metres and a gross floor area of 164 square metres. Upon entering the property, one arrives in a spacious and exceptionally bright entrance hall, offering an open, Parisian-style outlook. The internal layout is well balanced, with generous circulation areas and clearly defined living spaces.
The apartment comprises four separate rooms, in addition to a large central hall from which the kitchen, sanitary facilities, and other rooms are accessed. Three of the larger rooms face south and south-east, ensuring abundant natural light throughout the day. The fourth, smaller room has a north-western orientation. All rooms are equipped with air conditioning. A west-facing balcony of 13 square metres is attached to the apartment and provides a comfortable outdoor space suitable for relaxation or dining.
The property is in good technical condition and has been consistently maintained. The windows are fitted with electrically operated shutters. The monthly gas flat rate is approximately HUF 14,000. The apartment is free of encumbrances and legal claims and can be taken into possession within a short timeframe.
Due to its size, layout, and location, the property is well suited for larger families. At the same time, it represents an attractive investment opportunity. Given the location and the apartment’s characteristics, it offers strong rental potential and long-term value stability.
ADATKEZELÉS
Ezúton tájékoztatjuk, hogy Ön mint érdeklődő, a hirdetésben megjelölt telefonszám felhívásával hozzájárul személyes adatai – így különösen neve és telefonszáma -, a hirdetést feladó FORTISElit Ingatlan Kft. általi - biztonságos és körültekintő - kezeléséhez, nyilvántartásához. E körben, keresse a FORTISELIT ingatlaniroda weboldalát adatkezelési tájékoztatót.
We hereby inform you that You as an interested party, by calling the phone number mentioned in the advertisement, contribute to be your personal data – especially your name and phone number – handled and recorded safe and circumspectively by FORTISElit Ingatlan Kft as advertiser. Hereby, you can learn our Privacy Policy.
FINANSZÍROZÁS
Adatbázisunkban további több ezer ingatlanból választhat, hívjon bizalommal, hogy megtaláljuk a legmegfelelőbbet!
Hitelre van szüksége? Teljes körű és díjmentes hitel-ügyintézéssel, biztosításkötéssel áll rendelkezésére szakértő kollégánk. Kérje személyre szabott ajánlatunkat!