Eladó Lakás
Hirdetéskód: 9310145

Nagylakos Ingatlanok Kft.

Felújításhoz személyi kölcsönt keres? Kalkuláljon itt! →
38.00 m2
ALAPTERÜLET
3
SZOBASZÁM
Tégla
ÉPÍTÉS
Fan coil
FŰTÉS
  • Belső szintek 2
  • Kilátás Kertre néző
  • Tájolás Délnyugat
  • Ingatlan komfort Összkomfortos
  • Parkolási lehetőség Utcán, közterületen
  • Építés éve 1920
  • Fűtés Fan coil
  • Építőanyag Tégla
  • Erkély, terasz Terasz
  • Kertkapcsolat igen 6.00m2
  • Szigetelt igen
  • Bútorozott igen
  • Akadálymentesített igen
  • Rezsiköltség 40 000 Ft/hó
Energetikai besorolás: Nincs meghatározva
A+++
A++
A+
A
B
C
D
E
F
G
H
I

Az MBH Bank személyi kölcsön ajánlata

Fizetett hirdetés
1 millió Ft
6 évre
20 585 Ft/hó
THM: 14.5%
Részletek →
2 millió Ft
6 évre
41 169 Ft/hó
THM: 14.5%
Részletek →
3 millió Ft
6 évre
61 754 Ft/hó
THM: 14.5%
Részletek →

A tájékoztatás nem teljes körű és nem minősül ajánlattételnek.

Az ingatlan leírása

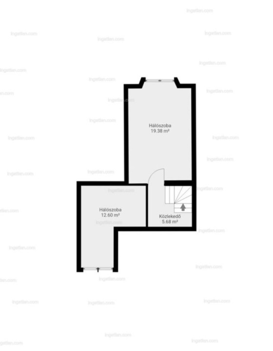
VIII. kerületben, Baross utcában, felújított, rendezett téglaház földszintjén ELADÓ FRISSEN FELÚJÍTOTT, 38 + 38 nm-es BELSŐ KÉTSZINTES, 3 szobás, konyhás, fürdőszobás lakás.
Így a lakás összes alapterülete 76 nm, az emeleten mindkét szobában vannak ablakok, belmagasság 220 cm.
Különlegessége, hogy rusztikus, látszó téglafalak vannak, esztétikus, nagyon különleges.
Fűtése HŰTŐ-FŰTŐ KLÍMA.
A melegvizet villanybojler szolgáltatja.
A lakáshoz egy osztatlan közös kert tartozik, mely a nappaliból közvetlenül megközelíthető.
Ajánlom gyerekeseknek is a kert miatt.
Közlekedése és infrastruktúrája kiváló, 73-as, 80-as trolik, 9-es busz rövid sétával megközelíthető. 
23, 24-es, 62, 28-as villamosok szintén pár perc alatt elérhetőek.
További kérdés esetén várom hívását akár HÉTVÉGÉN is.

Térkép

Ingatlan adásvétel ügyvédi díja
382 500 Ft
a hirdetésben szereplő ár alapján
  • A vételár 0,45%-a
  • Szerződéscsomag teljeskörű képviselettel
  • Ingyenes tulajdoni lap ellenőrzés
  • Az ÁFA-t már tartalmazza
Érdekel az ajánlat →
A tájékoztatás nem teljes körű és nem minősül ajánlattételnek. Minimum díj: 150 000 Ft, maximum díj: 600 000 Ft. A díj kizárólag lakóingatlan adásvételére vonatkozik.

A hirdető elérhetősége

Nagylak Ingatlaniroda

Nagy Jusztina
+36 70 297