Eladó Lakás
Hirdetéskód: 9307097
OTP Ingatlanpont - Budapest IX. ker., Üllői út 21.
Felújításhoz személyi kölcsönt keres? Kalkuláljon itt! →65.00 m2
ALAPTERÜLET2
SZOBASZÁMnincs megadva
ÉPÍTÉSGáz (konvektor)
FŰTÉS- CSOK igénybe vehető nem
- Tetőtér beépíthető nem
- Építés éve 1940
- Fűtés Gáz (konvektor)
- Klíma nem
- Szigetelt nem
A+++
A++
A+
A
B
C
D
E
F
G
H
I
Az ingatlan leírása
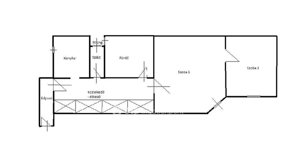
Felújított, bútorozott lakás a Palotanegyedben – Otthon Start alkalmas
Budapest VIII. kerületében, a Nagykörúton belül, a Palotanegyedben található ez a 65 nm-es, 2 szobás, I. emeleti lakás, amely megfelel az Otthon Start Program 3%-os hitelfeltételeinek, így ideális választás első lakásnak vagy befektetésnek is.
Az ingatlan egy rendezett, liftes, polgári társasházban helyezkedik el, csendes, belső udvarra néző fekvéssel. A lakás 2 éve teljes körű felújításon esett át, amely során a villany- és vízhálózat cseréje is megtörtént. A nagy ablakoknak köszönhetően világos, a tágas szobák jól berendezhetők.
A fűtést gázkonvektor, a melegvizet villanybojler biztosítja, a nappaliban klíma került beépítésre. A teljes bútorzat a vételár részét képezi, így az ingatlan azonnal költözhető. A közös költség 19.500 Ft, a rezsi egyedi mérés alapján fizetendő.
A környék infrastruktúrája kiváló: néhány perc sétára található a Nagykörút és a Corvin Plaza, valamint több egyetem – Eötvös Loránd Tudományegyetem, Semmelweis Egyetem, Pázmány Péter Katolikus Egyetem, Óbudai Egyetem – is könnyen elérhető, így kiadásra is kifejezetten alkalmas.
Az ingatlan tehermentes, 1/1 tulajdonú, rövid időn belül birtokba vehető.
Amennyiben egy felújított, kiváló elhelyezkedésű, azonnal költözhető lakást keres, keressen bizalommal.
Referenciaszám: M321482
Budapest VIII. kerületében, a Nagykörúton belül, a Palotanegyedben található ez a 65 nm-es, 2 szobás, I. emeleti lakás, amely megfelel az Otthon Start Program 3%-os hitelfeltételeinek, így ideális választás első lakásnak vagy befektetésnek is.
Az ingatlan egy rendezett, liftes, polgári társasházban helyezkedik el, csendes, belső udvarra néző fekvéssel. A lakás 2 éve teljes körű felújításon esett át, amely során a villany- és vízhálózat cseréje is megtörtént. A nagy ablakoknak köszönhetően világos, a tágas szobák jól berendezhetők.
A fűtést gázkonvektor, a melegvizet villanybojler biztosítja, a nappaliban klíma került beépítésre. A teljes bútorzat a vételár részét képezi, így az ingatlan azonnal költözhető. A közös költség 19.500 Ft, a rezsi egyedi mérés alapján fizetendő.
A környék infrastruktúrája kiváló: néhány perc sétára található a Nagykörút és a Corvin Plaza, valamint több egyetem – Eötvös Loránd Tudományegyetem, Semmelweis Egyetem, Pázmány Péter Katolikus Egyetem, Óbudai Egyetem – is könnyen elérhető, így kiadásra is kifejezetten alkalmas.
Az ingatlan tehermentes, 1/1 tulajdonú, rövid időn belül birtokba vehető.
Amennyiben egy felújított, kiváló elhelyezkedésű, azonnal költözhető lakást keres, keressen bizalommal.
Referenciaszám: M321482