Eladó Lakás
Hirdetéskód: 9274197
OTP Ingatlanpont - Budapest IX. ker., Üllői út 21.
Felújításhoz személyi kölcsönt keres? Kalkuláljon itt! →
Ez a hirdetés megfelelhet a FIX 3%-os programnak.
Tudj meg többet a részletekről itt.
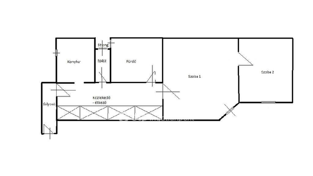
65.00 m2
ALAPTERÜLET2
SZOBASZÁMnincs megadva
ÉPÍTÉSGáz (konvektor)
FŰTÉS- CSOK igénybe vehető nem
- Tetőtér beépíthető nem
- Építés éve 1940
- Fűtés Gáz (konvektor)
- Klíma nem
- Szigetelt nem
A+++
A++
A+
A
B
C
D
E
F
G
H
I
Az ingatlan leírása
***Az Otthon Start Program 3%-os fix kamatozású hitel feltételeinek megfelelő lakás!***
*** Fiatal párok, egyetemisták figyelem!!! ***
Eladó Budapest VIII. kerület, Nagykörúton belül, a Palotanegyedben, egy 65 nm alapterületű, 2 szobás, I. emeleti, szépen felújított, belső udvarra néző, belvárosi, társasházi lakás.
Az ingatlan egy rendezett, liftes, polgári társasházban található. A társasház csendes, biztonságos, szépen karbantartott. A lakóközösség fiatalos és barátságos, emiatt az emberek szeretnek ott élni.
A lakás 2 éve teljeskörű felújításon esett át, aminek köszönhetően a teljes villany-, és vízvezeték csere megtörtént. A lakás nagy ablakainak köszönhetően szép, világos, napfényes. A szobák tágas belső terekkel rendelkeznek, az otthon melegét gázkonvektor biztosítja, a meleg vizet villanybojler állítja elő. A nappaliba légkondicionáló lett felszerelve. A fotókon látható teljes berendezés a vételár részét képezi.
A lakás kiváló adottságokkal rendelkezik, és tökéletes választás lehet fiatalok számára is első otthonnak, illetve főiskolásoknak/egyetemistáknak egyaránt.
A közös költség 19.500,- Ft. A közüzemi számlák egyedi mérőórák alapján kerülnek elszámolásra.
A lakásban minden kézre áll, az új lakó megkapja a kulcsot és már költözhet is, 1/1 tulajdoni hányadú, tehermentes.
A környék rendkívül jó infrastruktúrával rendelkezik: a közelben számos élelmiszerbolt, Corvin Plaza, óvoda, iskola, orvosi rendelő, posta, bank található. Néhány perces sétatávolságon belül több felsőoktatási intézmény is könnyen elérhető (ELTE, SOTE, Pázmány Péter Katolikus Egyetem, SOTE, Óbudai Egyetem). Emiatt befektetőknek is ideális választás lehet, hiszen könnyen, gyorsan kiadható. A Nagykörút 1 perc sétával elérhető.
Kitűnő elhelyezkedésének köszönhetően tömegközlekedéssel (autóbusz, trolibusz, villamos, metró) a város bármely pontja könnyedén elérhető.
Ajánlom ezt a kedves lakást fiatal pároknak, egyetemistáknak első lakásként.
Szükség esetén teljeskörű ügyintézéssel (kedvezményes hitelkonstrukcióval, megbízható ügyvédi közreműködéssel) állok rendelkezésére!
Amennyiben hirdetésem felkeltette az érdeklődését, kérdése van, illetve szeretné megtekinteni a lakást, kérem, hívjon, bizalommal!
Referenciaszám: M321482
*** Fiatal párok, egyetemisták figyelem!!! ***
Eladó Budapest VIII. kerület, Nagykörúton belül, a Palotanegyedben, egy 65 nm alapterületű, 2 szobás, I. emeleti, szépen felújított, belső udvarra néző, belvárosi, társasházi lakás.
Az ingatlan egy rendezett, liftes, polgári társasházban található. A társasház csendes, biztonságos, szépen karbantartott. A lakóközösség fiatalos és barátságos, emiatt az emberek szeretnek ott élni.
A lakás 2 éve teljeskörű felújításon esett át, aminek köszönhetően a teljes villany-, és vízvezeték csere megtörtént. A lakás nagy ablakainak köszönhetően szép, világos, napfényes. A szobák tágas belső terekkel rendelkeznek, az otthon melegét gázkonvektor biztosítja, a meleg vizet villanybojler állítja elő. A nappaliba légkondicionáló lett felszerelve. A fotókon látható teljes berendezés a vételár részét képezi.
A lakás kiváló adottságokkal rendelkezik, és tökéletes választás lehet fiatalok számára is első otthonnak, illetve főiskolásoknak/egyetemistáknak egyaránt.
A közös költség 19.500,- Ft. A közüzemi számlák egyedi mérőórák alapján kerülnek elszámolásra.
A lakásban minden kézre áll, az új lakó megkapja a kulcsot és már költözhet is, 1/1 tulajdoni hányadú, tehermentes.
A környék rendkívül jó infrastruktúrával rendelkezik: a közelben számos élelmiszerbolt, Corvin Plaza, óvoda, iskola, orvosi rendelő, posta, bank található. Néhány perces sétatávolságon belül több felsőoktatási intézmény is könnyen elérhető (ELTE, SOTE, Pázmány Péter Katolikus Egyetem, SOTE, Óbudai Egyetem). Emiatt befektetőknek is ideális választás lehet, hiszen könnyen, gyorsan kiadható. A Nagykörút 1 perc sétával elérhető.
Kitűnő elhelyezkedésének köszönhetően tömegközlekedéssel (autóbusz, trolibusz, villamos, metró) a város bármely pontja könnyedén elérhető.
Ajánlom ezt a kedves lakást fiatal pároknak, egyetemistáknak első lakásként.
Szükség esetén teljeskörű ügyintézéssel (kedvezményes hitelkonstrukcióval, megbízható ügyvédi közreműködéssel) állok rendelkezésére!
Amennyiben hirdetésem felkeltette az érdeklődését, kérdése van, illetve szeretné megtekinteni a lakást, kérem, hívjon, bizalommal!
Referenciaszám: M321482