Eladó Lakás
Hirdetéskód: 9264319
OTP Ingatlanpont - Budapest IX. ker., Üllői út 21.
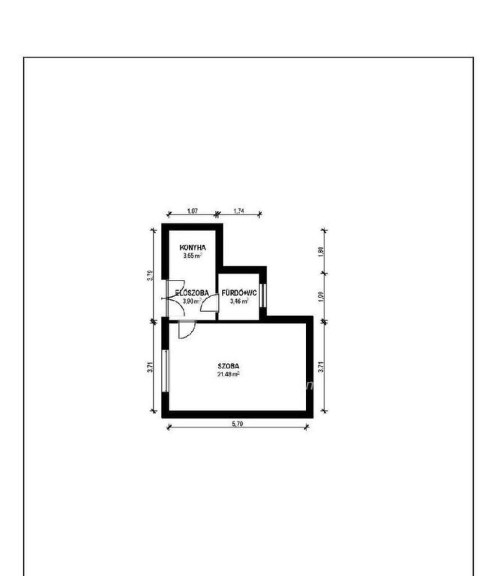
32.00 m2
ALAPTERÜLET1
SZOBASZÁMnincs megadva
ÉPÍTÉSnincs megadva
FŰTÉS- CSOK igénybe vehető nem
- Tetőtér beépíthető nem
- Építés éve 1950
- Klíma nem
- Szigetelt nem
A+++
A++
A+
A
B
C
D
E
F
G
H
I
Az ingatlan leírása
***ÉRTÉKÁLLÓ BEFEKTETÉS***
Budapest VIII. kerületének folyamatosan megújuló részén, a II. János Pál pápa tér közvetlen közelében kínálok megvételre egy 32 nm-es garzonlakást egy rendezett, négyemeletes társasház második szintjén.
A lakás bejárata a körfolyosóról nyílik, a szoba ablakai csendes belső udvarra néznek, így a városi elhelyezkedés ellenére nyugodt életteret biztosít. Az ingatlan felújítandó állapotú, ami kiváló lehetőséget ad arra, hogy az új tulajdonos saját ízlése szerint alakítsa ki otthonát vagy befektetését. Praktikus elosztásának köszönhetően a jelenlegi egy szobás lakásban akár külön hálófülke is kialakítható a konyhából.
Ideális választás első lakást keresőknek, egyetemistáknak, fiatal pároknak, de tökéletes lehet irodának vagy kiadásra is. A környék fejlődése és keresettsége miatt az ingatlan stabil, hosszú távon is jól hasznosítható befektetés.
Minden, ami a mindennapokhoz szükséges, sétatávolságra elérhető. Park, játszótér, futópálya, kutyafuttató, orvosi rendelők, gyógyszertár, posta, piac, kormányablak, LIDL, benzinkút, mozi mind néhány percen belül.
A közlekedés kiváló, éjjel és nappal egyaránt könnyen elérhető a város bármely pontja. 99 és 217E busz, 23, 24, 28, 37 és 62 villamos, valamint az M2, M4 metró és a 4-6 villamos gyors kapcsolatot biztosít.
Az OTP Ingatlanpont teljes körű ügyintézéssel támogatja Önt az ingatlanvásárlás minden lépésében - Otthon Start Hitelprogram, kedvezményes hitelek, CSOK+, falusi CSOK, lakástakarék, megbízható ügyvédi háttér.
A felújításban is szívesen segítek! Több éve együtt dolgozom megbízható szakemberekkel, akik minden munkálatot precízen elvégeznek, a kisebb javításoktól a teljes átalakításig.
Várom megtisztelő hívását - akár hétvégén is!
Budapest VIII. kerületének folyamatosan megújuló részén, a II. János Pál pápa tér közvetlen közelében kínálok megvételre egy 32 nm-es garzonlakást egy rendezett, négyemeletes társasház második szintjén.
A lakás bejárata a körfolyosóról nyílik, a szoba ablakai csendes belső udvarra néznek, így a városi elhelyezkedés ellenére nyugodt életteret biztosít. Az ingatlan felújítandó állapotú, ami kiváló lehetőséget ad arra, hogy az új tulajdonos saját ízlése szerint alakítsa ki otthonát vagy befektetését. Praktikus elosztásának köszönhetően a jelenlegi egy szobás lakásban akár külön hálófülke is kialakítható a konyhából.
Ideális választás első lakást keresőknek, egyetemistáknak, fiatal pároknak, de tökéletes lehet irodának vagy kiadásra is. A környék fejlődése és keresettsége miatt az ingatlan stabil, hosszú távon is jól hasznosítható befektetés.
Minden, ami a mindennapokhoz szükséges, sétatávolságra elérhető. Park, játszótér, futópálya, kutyafuttató, orvosi rendelők, gyógyszertár, posta, piac, kormányablak, LIDL, benzinkút, mozi mind néhány percen belül.
A közlekedés kiváló, éjjel és nappal egyaránt könnyen elérhető a város bármely pontja. 99 és 217E busz, 23, 24, 28, 37 és 62 villamos, valamint az M2, M4 metró és a 4-6 villamos gyors kapcsolatot biztosít.
Az OTP Ingatlanpont teljes körű ügyintézéssel támogatja Önt az ingatlanvásárlás minden lépésében - Otthon Start Hitelprogram, kedvezményes hitelek, CSOK+, falusi CSOK, lakástakarék, megbízható ügyvédi háttér.
A felújításban is szívesen segítek! Több éve együtt dolgozom megbízható szakemberekkel, akik minden munkálatot precízen elvégeznek, a kisebb javításoktól a teljes átalakításig.
Várom megtisztelő hívását - akár hétvégén is!