Eladó Lakás
Hirdetéskód: 9223599

OTP Ingatlanpont - Budapest IX. ker., Üllői út 21.

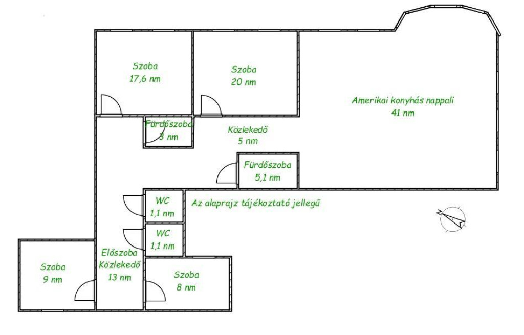
124 m2
ALAPTERÜLET
5
SZOBASZÁM
nincs megadva
ÉPÍTÉS
nincs megadva
FŰTÉS
  • CSOK igénybe vehető nem
  • Tetőtér beépíthető nem
  • Építés éve 1910
  • Klíma nem
  • Szigetelt nem
Energetikai besorolás: Nincs meghatározva
A+++
A++
A+
A
B
C
D
E
F
G
H
I

Az ingatlan leírása

Tágas, exkluzív lakás eladó Erzsébetvárosban! Eladó egy 124 nm-es, teljeskörűen és igényesen felújított lakás egy szép, liftes társasház harmadik emeletén. A minőségi anyagokkal végzett felújítás során a praktikum és az elegancia tökéletes egyensúlyára törekedtek, így egy tágas, világos, jól átgondolt elrendezésű otthon született. A nappali és a konyha egy térben kapott helyet, így kiváló közösségi élményt nyújt, míg a négy külön nyíló hálószoba biztosítja a család minden tagjának a nyugalmat. A korszerű cirkófűtés és a klímaberendezés gondoskodik az otthon kényelméről télen-nyáron. Főbb jellemzők: - 124 nm-es, tágas lakótér - Amerikai konyhás nappali + 4 hálószoba - Cirkó fűtés és klíma - Teljes körű, minőségi felújítás - Szép, rendezett, liftes társasház - Kiváló közlekedés, belvárosi elhelyezkedés Ha exkluzív, mégis otthonos lakást keres Budapesten, ez a lehetőség Önre vár! Ha további kérdése van, vagy szeretné megtekinteni az ingatlant, kérem, keressen a megadott elérhetőségeken!

Térkép

A hirdető elérhetősége

OTP Ingatlanpont - Budapest IX. ker., Üllői út 21.

Antal Enikő
+36 20 371