Eladó Lakás
Hirdetéskód: 9190250
OTP Ingatlanpont - Budapest IX. ker., Üllői út 21.
87 m2
ALAPTERÜLET3
SZOBASZÁMnincs megadva
ÉPÍTÉSnincs megadva
FŰTÉS- CSOK igénybe vehető nem
- Tetőtér beépíthető nem
- Építés éve 1930
- Klíma nem
- Szigetelt nem
A+++
A++
A+
A
B
C
D
E
F
G
H
I
Az ingatlan leírása
RAGYOGÓ LOKÁCIÓ! ÓRIÁSI LEHETŐSÉG!
A nyüzsgő belváros közepén, a Király utcában eladó egy kétszintes, polgári ház második emeletén lévő rendkívül világos, igényes kialakítáősú, ötletesen elosztott, 87 négyzetméteres lakás. Pár percre vagyunk az Oktogontól, az Andrássy úttól.
A lakás, jelenlegi felújításának végéhez közeledik, már csak az egyik hálószoba padlóburkolatának kiválasztása szükséges, illetve a konyha berendezése várat magára, amik már a leendeő tulajdonos ízlését tudják tükrözni. ( A vételár a jelenlegi állapotra vonatkozik.)
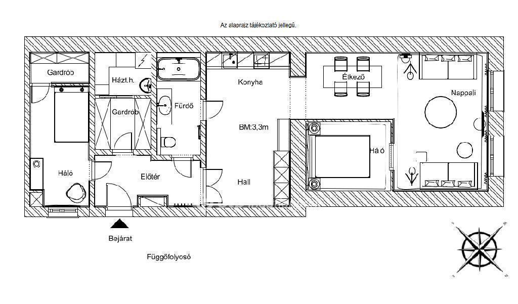
A lakás elosztása: a tágas előszobába lépve jobbra található egy dupla ajtó, ami a hall, nappali, konyha, étkező részbe vezet, ennek nagy ablakai az utcára néznek, ebből a nappaliból lett leválasztva egy hálószoba.
Az előszobában balra indulva van egy belső udvarra néző, nagyon csendes és világos háló, külön kis gardróbszobával. Ugyancsak az előszobából nyílik a bejárattal szemben egy gardróbszoba, ebből egy háztartási helyiség ahol a kondenzációs kazán kapott helyet, valamint van itt kialakított vizes blokk is egy mosdóval. Itt van a mosógép kiállás is.
A tágas, kádas fürdőszoba az előszobából és a hallból is megközelíthető.
A lakáshoz tartozik egy 20 nm-es pince is!
Elrendezéséből adódóan könnyen akár két különálló lakrészre is alakítható, így egy kb. 30nm és egy 50 nm lakótér lehet belőle közös előtérrel. Ezt a fajta átalakítást megkönnyíti, hogy már most két külön villanyóra és vízóra van a lakásban!! Az álmennyezetnek köszönhetően a már meglévő klíma mellé egy másik beltéri egységet is könnyen fel lehet tenni. Be van kötve az éjszakai áramhoz szükséges villanyóra is . A meglévő nagy alapterület lehetővé teszi az új tulajdonos számára az elmélkedést egy pazar kialakítású otthon, vagy egy kiváló üzleti lehetőség kialakítására.
A társasház rendelkezik Airbnb engedéllyel.
A lokáció miatt igencsak kiváló a hely közlekedése. 1-es metró, 4-, 6-os villamos , troli a közelben. A Városliget kb.10 perc sétára található, a Jókai tér, a Liszt Ferenc tér karnyújtásnyira.
A Hunyadi téri fedett vásárcsarnok, piac, patika, háziorvos, szakorvosi rendelők, Penny, játszótér, park mind 100-150 méteres körzetben találhatóak.
Éttermek, gyorséttermek, nemzetközi konyhák, bárok sokasága van elérhető távolságban.
Amit még mi tudunk: Az OTP Ingatlanpont, mint egyetlen közvetlen banki hátterű ingatlanközvetítő társaság teljes körű ügyintézéssel áll eladóik és vevőik rendelkezésére!
Piaci és kedvezményes hitel- valamint lízingkonstrukciókat kínálunk mint Otthon Start, lakásvásárlási hitel, szabad felhasználású hitel, babaváró hitel, CSOK Plusz-intézés, Otthonfelújítási Támogatás, egyéb felújítási hitelek.
Az adásvételi szerződés megkötéséhez igény szerint megbízható ügyvédi közreműködést is biztosítunk.
S ami még hátra van: Megnézni, beleszeretni, megvásárolni!!! Its great!
A nyüzsgő belváros közepén, a Király utcában eladó egy kétszintes, polgári ház második emeletén lévő rendkívül világos, igényes kialakítáősú, ötletesen elosztott, 87 négyzetméteres lakás. Pár percre vagyunk az Oktogontól, az Andrássy úttól.
A lakás, jelenlegi felújításának végéhez közeledik, már csak az egyik hálószoba padlóburkolatának kiválasztása szükséges, illetve a konyha berendezése várat magára, amik már a leendeő tulajdonos ízlését tudják tükrözni. ( A vételár a jelenlegi állapotra vonatkozik.)
A lakás elosztása: a tágas előszobába lépve jobbra található egy dupla ajtó, ami a hall, nappali, konyha, étkező részbe vezet, ennek nagy ablakai az utcára néznek, ebből a nappaliból lett leválasztva egy hálószoba.
Az előszobában balra indulva van egy belső udvarra néző, nagyon csendes és világos háló, külön kis gardróbszobával. Ugyancsak az előszobából nyílik a bejárattal szemben egy gardróbszoba, ebből egy háztartási helyiség ahol a kondenzációs kazán kapott helyet, valamint van itt kialakított vizes blokk is egy mosdóval. Itt van a mosógép kiállás is.
A tágas, kádas fürdőszoba az előszobából és a hallból is megközelíthető.
A lakáshoz tartozik egy 20 nm-es pince is!
Elrendezéséből adódóan könnyen akár két különálló lakrészre is alakítható, így egy kb. 30nm és egy 50 nm lakótér lehet belőle közös előtérrel. Ezt a fajta átalakítást megkönnyíti, hogy már most két külön villanyóra és vízóra van a lakásban!! Az álmennyezetnek köszönhetően a már meglévő klíma mellé egy másik beltéri egységet is könnyen fel lehet tenni. Be van kötve az éjszakai áramhoz szükséges villanyóra is . A meglévő nagy alapterület lehetővé teszi az új tulajdonos számára az elmélkedést egy pazar kialakítású otthon, vagy egy kiváló üzleti lehetőség kialakítására.
A társasház rendelkezik Airbnb engedéllyel.
A lokáció miatt igencsak kiváló a hely közlekedése. 1-es metró, 4-, 6-os villamos , troli a közelben. A Városliget kb.10 perc sétára található, a Jókai tér, a Liszt Ferenc tér karnyújtásnyira.
A Hunyadi téri fedett vásárcsarnok, piac, patika, háziorvos, szakorvosi rendelők, Penny, játszótér, park mind 100-150 méteres körzetben találhatóak.
Éttermek, gyorséttermek, nemzetközi konyhák, bárok sokasága van elérhető távolságban.
Amit még mi tudunk: Az OTP Ingatlanpont, mint egyetlen közvetlen banki hátterű ingatlanközvetítő társaság teljes körű ügyintézéssel áll eladóik és vevőik rendelkezésére!
Piaci és kedvezményes hitel- valamint lízingkonstrukciókat kínálunk mint Otthon Start, lakásvásárlási hitel, szabad felhasználású hitel, babaváró hitel, CSOK Plusz-intézés, Otthonfelújítási Támogatás, egyéb felújítási hitelek.
Az adásvételi szerződés megkötéséhez igény szerint megbízható ügyvédi közreműködést is biztosítunk.
S ami még hátra van: Megnézni, beleszeretni, megvásárolni!!! Its great!