Eladó Lakás
Hirdetéskód: 9186446
OTP Ingatlanpont - Budapest IX. ker., Üllői út 21.
87 m2
ALAPTERÜLET3
SZOBASZÁMnincs megadva
ÉPÍTÉSnincs megadva
FŰTÉS- CSOK igénybe vehető nem
- Tetőtér beépíthető nem
- Építés éve 1930
- Klíma nem
- Szigetelt nem
A+++
A++
A+
A
B
C
D
E
F
G
H
I
Az ingatlan leírása
Ragyogó lokáció, határtalan lehetőségek – különleges lakás a Király utcában!
Budapest belvárosának szívében, a mindig pezsgő Király utcában kínálok eladásra egy rendkívül világos, elegáns, kétszintes polgári ház második emeletén található, 87 négyzetméteres, igényesen kialakított lakást. Az ingatlan pár perc sétára helyezkedik el az Oktogontól és az Andrássy úttól, így tökéletesen ötvözi a nyüzsgő belvárosi életet a meghitt, otthonos hangulattal.
A lakás felújítása a végéhez közeledik: az új tulajdonos ízlésére már csak a hálószoba padlóburkolatának kiválasztása és a konyha berendezése vár. Ez az apró befejezés lehetőséget kínál arra, hogy a jövendőbeli tulajdonos saját stílusát és személyiségét is belevigye ebbe a különleges otthonba.
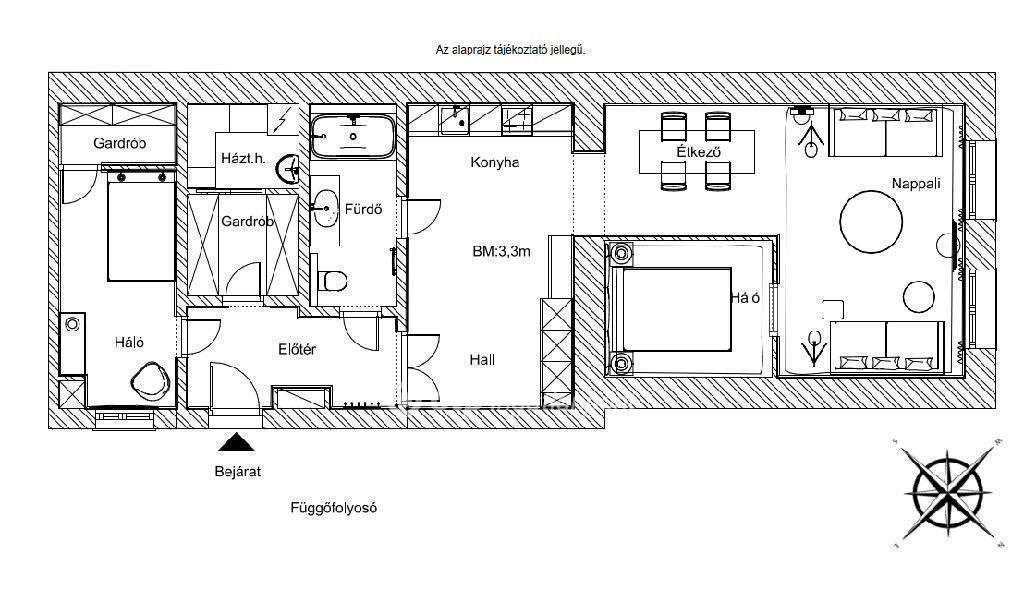
Az ingatlan tágas előszobájából egy impozáns, dupla ajtón keresztül léphetünk be a hall, a nappali, az étkező és a konyha közös terébe, amelynek nagy ablakai az utcára néznek, így a helyiséget természetes fény árasztja el. A nappali egy részéből egy külön hálószoba került kialakításra, míg az előszoba másik irányában egy csendes, udvarra néző hálószoba található saját gardróbszobával. Innen nyílik a háztartási helyiség is, ahol a kondenzációs kazán kapott helyet, valamint mosdó és mosógép-kiállás is rendelkezésre áll. A tágas, kádas fürdőszoba az előszobából és a hallból egyaránt megközelíthető, a lakás kényelmes, jól átgondolt elrendezésének köszönhetően.
A lakáshoz egy 20 négyzetméteres pince is tartozik, amely kiválóan alkalmas tárolásra. Az ingatlan elrendezése lehetővé teszi, hogy akár két különálló lakásként is hasznosítható legyen, hiszen már most két külön víz- és villanyóra található benne. Ez a tulajdonság különösen vonzó lehet befektetők számára, akik akár két kisebb, önálló lakrészt is kialakíthatnak benne. Az álmennyezetnek köszönhetően egy újabb klímaegység beépítése is egyszerűen megoldható.
A társasház Airbnb-engedéllyel rendelkezik, így az ingatlan rövid távú kiadásra is tökéletes választás. A környék infrastruktúrája kiemelkedő: az 1-es metró, a 4-es és 6-os villamos, valamint több trolijárat is pár perc sétával elérhető. A Városliget alig tíz perc gyalog, a Jókai tér, a Liszt Ferenc tér, a Hunyadi téri piac, a parkok, a bevásárlási lehetőségek, éttermek és kávézók pedig közvetlen közelben találhatók.
Ez az ingatlan nem csupán egy lakás, hanem egy lehetőség: lehet belőle pazar, egyedi otthon, exkluzív iroda vagy jövedelmező befektetés. A nagyvonalú terek, a polgári elegancia és a központi elhelyezkedés mind-mind hozzájárulnak ahhoz, hogy ez a lakás valódi ritkaság legyen a pesti belvárosban.
Az OTP Ingatlanpont teljes körű ügyintézéssel, megbízható jogi háttérrel és kedvezményes finanszírozási megoldásokkal segíti Önt az adásvétel teljes folyamatában.
Nincs más hátra: nézze meg, érezzen rá a hangulatára, és szeressen bele ebbe a páratlan belvárosi otthonba!
Referenciaszám: M312019
Budapest belvárosának szívében, a mindig pezsgő Király utcában kínálok eladásra egy rendkívül világos, elegáns, kétszintes polgári ház második emeletén található, 87 négyzetméteres, igényesen kialakított lakást. Az ingatlan pár perc sétára helyezkedik el az Oktogontól és az Andrássy úttól, így tökéletesen ötvözi a nyüzsgő belvárosi életet a meghitt, otthonos hangulattal.
A lakás felújítása a végéhez közeledik: az új tulajdonos ízlésére már csak a hálószoba padlóburkolatának kiválasztása és a konyha berendezése vár. Ez az apró befejezés lehetőséget kínál arra, hogy a jövendőbeli tulajdonos saját stílusát és személyiségét is belevigye ebbe a különleges otthonba.
Az ingatlan tágas előszobájából egy impozáns, dupla ajtón keresztül léphetünk be a hall, a nappali, az étkező és a konyha közös terébe, amelynek nagy ablakai az utcára néznek, így a helyiséget természetes fény árasztja el. A nappali egy részéből egy külön hálószoba került kialakításra, míg az előszoba másik irányában egy csendes, udvarra néző hálószoba található saját gardróbszobával. Innen nyílik a háztartási helyiség is, ahol a kondenzációs kazán kapott helyet, valamint mosdó és mosógép-kiállás is rendelkezésre áll. A tágas, kádas fürdőszoba az előszobából és a hallból egyaránt megközelíthető, a lakás kényelmes, jól átgondolt elrendezésének köszönhetően.
A lakáshoz egy 20 négyzetméteres pince is tartozik, amely kiválóan alkalmas tárolásra. Az ingatlan elrendezése lehetővé teszi, hogy akár két különálló lakásként is hasznosítható legyen, hiszen már most két külön víz- és villanyóra található benne. Ez a tulajdonság különösen vonzó lehet befektetők számára, akik akár két kisebb, önálló lakrészt is kialakíthatnak benne. Az álmennyezetnek köszönhetően egy újabb klímaegység beépítése is egyszerűen megoldható.
A társasház Airbnb-engedéllyel rendelkezik, így az ingatlan rövid távú kiadásra is tökéletes választás. A környék infrastruktúrája kiemelkedő: az 1-es metró, a 4-es és 6-os villamos, valamint több trolijárat is pár perc sétával elérhető. A Városliget alig tíz perc gyalog, a Jókai tér, a Liszt Ferenc tér, a Hunyadi téri piac, a parkok, a bevásárlási lehetőségek, éttermek és kávézók pedig közvetlen közelben találhatók.
Ez az ingatlan nem csupán egy lakás, hanem egy lehetőség: lehet belőle pazar, egyedi otthon, exkluzív iroda vagy jövedelmező befektetés. A nagyvonalú terek, a polgári elegancia és a központi elhelyezkedés mind-mind hozzájárulnak ahhoz, hogy ez a lakás valódi ritkaság legyen a pesti belvárosban.
Az OTP Ingatlanpont teljes körű ügyintézéssel, megbízható jogi háttérrel és kedvezményes finanszírozási megoldásokkal segíti Önt az adásvétel teljes folyamatában.
Nincs más hátra: nézze meg, érezzen rá a hangulatára, és szeressen bele ebbe a páratlan belvárosi otthonba!
Referenciaszám: M312019