Eladó Lakás
Hirdetéskód: 9186443
OTP Ingatlanpont - Budapest IX. ker., Üllői út 21.
41 m2
ALAPTERÜLET2
SZOBASZÁMnincs megadva
ÉPÍTÉSnincs megadva
FŰTÉS- CSOK igénybe vehető nem
- Tetőtér beépíthető nem
- Építés éve 1910
- Klíma nem
- Szigetelt nem
A+++
A++
A+
A
B
C
D
E
F
G
H
I
Az ingatlan leírása
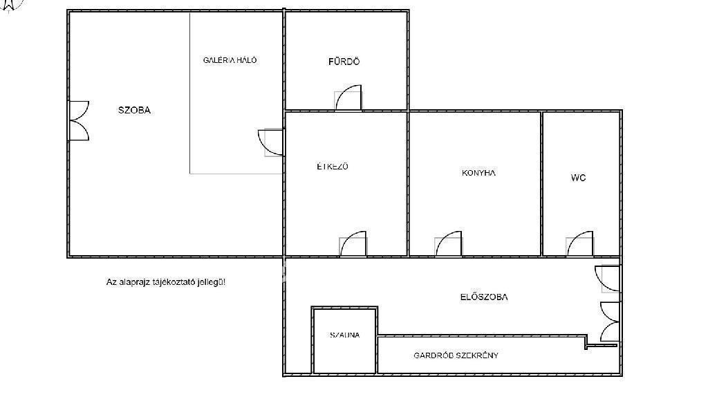
Felújított, galériás belvárosi lakás eladó a New York Kávéház szomszédságában!
Budapest VII. kerületének szívében, Erzsébetváros egyik legkedveltebb részén, a belváros pezsgésének közepén kínálok eladásra egy 41 négyzetméteres, teljeskörűen felújított, I. emeleti lakást, amelyet további 9 négyzetméteres galéria tesz még tágasabbá és otthonosabbá.
A lakás néhány éve teljes műszaki és esztétikai felújításon esett át: minden vezeték újra lett cserélve, a fűtésről és a melegvízről korszerű gáz kombi kazán gondoskodik, a hűtés-fűtés egyaránt modern klímaberendezéssel megoldott. A belső tér kialakítása rendkívül praktikus, minden centiméterét egyedileg tervezett és gyártott bútorokkal használták ki. A galéria intimitást és kényelmet biztosít, így a lakás tökéletes egyedülállóknak vagy fiatal pároknak, akik szeretik a modern, városi életstílust.
Az ablakból páratlan kilátás nyílik a világhírű New York Kávéházra – ez az a pont, ahol a város történelme és modern ritmusa találkozik. A közlekedés kiváló, a környéken minden elérhető néhány perc sétával: üzletek, kávézók, éttermek és a legfontosabb tömegközlekedési csomópontok. Az Önkormányzat épülete mindössze 100 méterre található.
A lakás különlegessége az előszobában elhelyezett infraszauna, amely igény esetén megvásárolható, így a városi élet rohanása után akár otthonában is feltöltődhet.
Az ingatlan jelenlegi irányára 63.500.000 Ft február 13-ig, ezt követően 5 millió forintos áremelés várható.
Ne halogassa a döntést — ez a lakás nemcsak egy otthon, hanem egy különleges lehetőség a belváros szívében! Amennyiben felkeltette érdeklődését, kérem, hívjon bizalommal!
Az ingatlan megvásárlásához kedvező finanszírozási lehetőség is elérhető, amelyhez szakértő pénzügyi segítséget biztosítunk az OTP Ingatlanpont teljes körű ügyintézésével.
Referenciaszám: M296568
Budapest VII. kerületének szívében, Erzsébetváros egyik legkedveltebb részén, a belváros pezsgésének közepén kínálok eladásra egy 41 négyzetméteres, teljeskörűen felújított, I. emeleti lakást, amelyet további 9 négyzetméteres galéria tesz még tágasabbá és otthonosabbá.
A lakás néhány éve teljes műszaki és esztétikai felújításon esett át: minden vezeték újra lett cserélve, a fűtésről és a melegvízről korszerű gáz kombi kazán gondoskodik, a hűtés-fűtés egyaránt modern klímaberendezéssel megoldott. A belső tér kialakítása rendkívül praktikus, minden centiméterét egyedileg tervezett és gyártott bútorokkal használták ki. A galéria intimitást és kényelmet biztosít, így a lakás tökéletes egyedülállóknak vagy fiatal pároknak, akik szeretik a modern, városi életstílust.
Az ablakból páratlan kilátás nyílik a világhírű New York Kávéházra – ez az a pont, ahol a város történelme és modern ritmusa találkozik. A közlekedés kiváló, a környéken minden elérhető néhány perc sétával: üzletek, kávézók, éttermek és a legfontosabb tömegközlekedési csomópontok. Az Önkormányzat épülete mindössze 100 méterre található.
A lakás különlegessége az előszobában elhelyezett infraszauna, amely igény esetén megvásárolható, így a városi élet rohanása után akár otthonában is feltöltődhet.
Az ingatlan jelenlegi irányára 63.500.000 Ft február 13-ig, ezt követően 5 millió forintos áremelés várható.
Ne halogassa a döntést — ez a lakás nemcsak egy otthon, hanem egy különleges lehetőség a belváros szívében! Amennyiben felkeltette érdeklődését, kérem, hívjon bizalommal!
Az ingatlan megvásárlásához kedvező finanszírozási lehetőség is elérhető, amelyhez szakértő pénzügyi segítséget biztosítunk az OTP Ingatlanpont teljes körű ügyintézésével.
Referenciaszám: M296568