Eladó Lakás
Hirdetéskód: 9217978

GDN Ingatlanhálózat - Best Sellers

Felújításhoz személyi kölcsönt keres? Kalkuláljon itt! →
88.00 m2
ALAPTERÜLET
3
SZOBASZÁM
nincs megadva
ÉPÍTÉS
Gáz (konvektor)
FŰTÉS
  • CSOK igénybe vehető nem
  • Tetőtér beépíthető nem
  • Fűtés Gáz (konvektor)
  • Klíma nem
  • Szigetelt nem
Energetikai besorolás: Nincs meghatározva
A+++
A++
A+
A
B
C
D
E
F
G
H
I

Az MBH Bank személyi kölcsön ajánlata

Fizetett hirdetés
1 millió Ft
6 évre
20 585 Ft/hó
THM: 14.5%
Részletek →
2 millió Ft
6 évre
41 169 Ft/hó
THM: 14.5%
Részletek →
3 millió Ft
6 évre
61 754 Ft/hó
THM: 14.5%
Részletek →

A tájékoztatás nem teljes körű és nem minősül ajánlattételnek.

Az ingatlan leírása

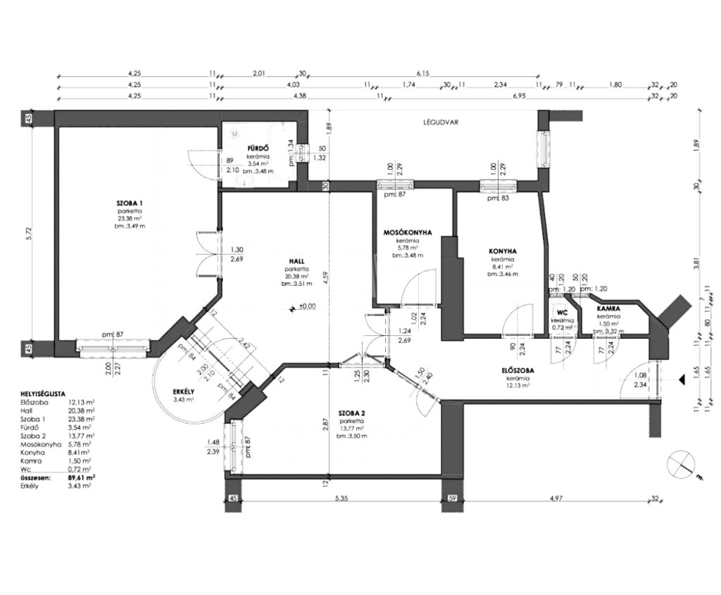
Eladásra kínálunk egy felújítandó állapotú, téglaépítésű lakást Budapest Hernád utcájában.
A lakás 92 négyzetméteres, helyet kapott benne 3 szoba, konyha, fürdőszoba, WC külön helyiségben, kamra előszoba, 3,5 m beltéri magassággal, nagy nyílászárókkal. Az ingatlanhoz tartozik egy 4 négyzetméteres erkély is, amely utcai kilátást nyújt.
A lakóegység a ház 3. emeletén található körfolyosóról nyílik, a házban lift biztosítja a kényelmes közlekedést.
A társasház egy impozáns épület, kívülről felújításra szorul, a lépcsőház új bejárati ajtóval, szépen felújított ikonikus mozaikcsempével díszített, tiszta lépcsőház.
A fűtésről gázkonvektorok, a melegvízről villanybojler gondoskodik.
Boltok közelben.
Közlekedés jó.
A környék csendes és nyugodt, egyirányú forgalom a ház előtt, ideális választás lehet azok számára, akik nyugalmat keresnek.
ID.389923 ...TOVÁBBI, TÖBBEZRES INGATLAN KÍNÁLAT: - GDN azonosító: 389923

Térkép

Ingatlan adásvétel ügyvédi díja
551 475 Ft
a hirdetésben szereplő ár alapján
  • A vételár 0,45%-a
  • Szerződéscsomag teljeskörű képviselettel
  • Ingyenes tulajdoni lap ellenőrzés
  • Az ÁFA-t már tartalmazza
Érdekel az ajánlat →
A tájékoztatás nem teljes körű és nem minősül ajánlattételnek. Minimum díj: 150 000 Ft, maximum díj: 600 000 Ft. A díj kizárólag lakóingatlan adásvételére vonatkozik.

A hirdető elérhetősége

GDN Ingatlanhálózat - Best Sellers

Csiszér Jolán
+36 30 894