Eladó Lakás
Hirdetéskód: 9236573

Budapest II. kerület Szépvölgyi út 2 - OTP Ingatlanpont Iroda

Felújításhoz személyi kölcsönt keres? Kalkuláljon itt! →
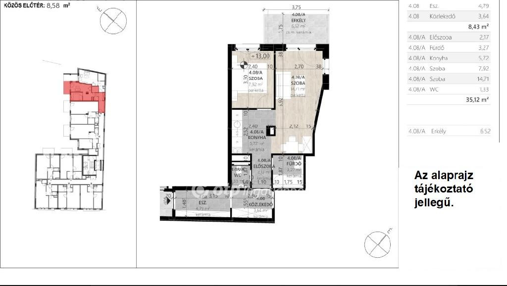
41.00 m2
ALAPTERÜLET
2
SZOBASZÁM
nincs megadva
ÉPÍTÉS
Egyéb fűtés
FŰTÉS
  • CSOK igénybe vehető nem
  • Tetőtér beépíthető nem
  • Építés éve 2025
  • Fűtés Egyéb fűtés
  • Klíma nem
  • Szigetelt nem
Energetikai besorolás: Nincs meghatározva
A+++
A++
A+
A
B
C
D
E
F
G
H
I

Az MBH Bank személyi kölcsön ajánlata

Fizetett hirdetés
1 millió Ft
6 évre
20 585 Ft/hó
THM: 14.5%
Részletek →
2 millió Ft
6 évre
41 169 Ft/hó
THM: 14.5%
Részletek →
3 millió Ft
6 évre
61 754 Ft/hó
THM: 14.5%
Részletek →

A tájékoztatás nem teljes körű és nem minősül ajánlattételnek.

Az ingatlan leírása

ÉRTÉKÁLLÓSÁG, KORSZERŰSÉG, GAZDASÁGOSSÁG, KIVÁLÓ BEFEKTETÉS. Könnyű megközelíthetőséggel, kiváló infrastruktúra mellett a 7. kerületben Erzsébetváros szívében kínálunk újépítésű, kiemelkedő minőségű 2, - 3 szobás, teraszos lakásokat. Hőszivattyúss fűtés/hűtés rendszerű a társasház, itt a rezsiárak emelkedése nem befolyásolja a fűtési díjat.. Ezeket a lakásokat azoknak ajánljuk, akiknek fontos az energiatakarékosság és a környezetkímélő élet. A belvárosi élet kedvelőinek ideális lakhatási lehetőséget kínál, túristáknak remek szálláslehetőség, így értékálló befektetésnek is remek választás. Köszönöm megtisztelő figyelmét. Amennyiben jelenlegi ingatlana értékesítésében is segítségére lehetek, illetve az OTP teljes ingatlankínálatával kapcsolatban kérem forduljon hozzám bizalommal. Az OTP Ingatlanpont, mint egyetlen közvetlen banki hátterű ingatlanközvetítő társaság teljes körű ügyintézéssel áll eladóik és vevőik rendelkezésére! Piaci és kedvezményes hitel- valamint lízingkonstrukciókat kínálunk mint lakásvásárlási hitel, szabad felhasználású hitel, babaváró hitel, CSOK Plusz-intézés, Otthonfelújítási Támogatás, egyéb felújítási hitelek. Az adásvételi szerződés megkötéséhez igény szerint megbízható ügyvédi közreműködést is biztosítunk. Ha felkeltettem érdeklődését, ne habozzon keresni a hét bármely napján reggel 9 és este 9 között. Ügyfeleinknek minden szolgáltatásunk (valóban) díjmentes. WE SPEAK ENGLISH, FEEL FREE TO CALL ME!

Térkép

Ingatlan adásvétel ügyvédi díja
365 138 Ft
a hirdetésben szereplő ár alapján
  • A vételár 0,45%-a
  • Szerződéscsomag teljeskörű képviselettel
  • Ingyenes tulajdoni lap ellenőrzés
  • Az ÁFA-t már tartalmazza
Érdekel az ajánlat →
A tájékoztatás nem teljes körű és nem minősül ajánlattételnek. Minimum díj: 150 000 Ft, maximum díj: 600 000 Ft. A díj kizárólag lakóingatlan adásvételére vonatkozik.

A hirdető elérhetősége

Budapest II. kerület Szépvölgyi út 2 - OTP Ingatlanpont Iroda

Szalontai Zsuzsanna
+36 70 355