Eladó Lakás
Hirdetéskód: 9316037
OTP Ingatlanpont - Takács Zsuzsanna
Felújításhoz személyi kölcsönt keres? Kalkuláljon itt! →41.00 m2
ALAPTERÜLET1
SZOBASZÁMnincs megadva
ÉPÍTÉSGáz (cirkó)
FŰTÉS- CSOK igénybe vehető nem
- Tetőtér beépíthető nem
- Építés éve 1890
- Fűtés Gáz (cirkó)
- Klíma nem
- Szigetelt nem
A+++
A++
A+
A
B
C
D
E
F
G
H
I
Az ingatlan leírása
Eladó egy kiváló lakás prémium bútorokkal közel 4 méteres belmagassággal a Dohány utcában!
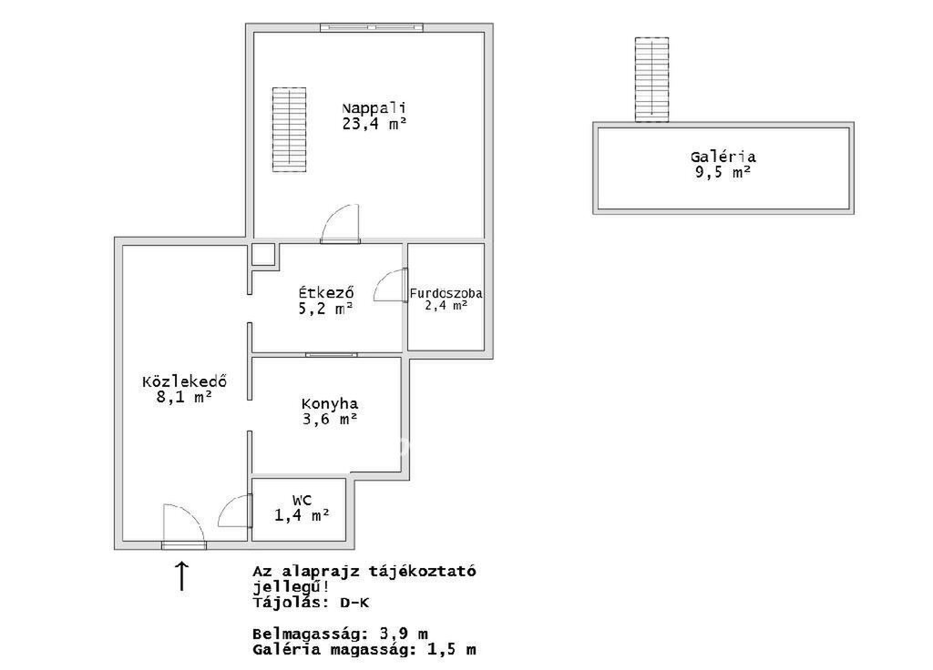
Ez a nagypolgári stílusban épült lakás a tulajdoni lapon 41 m2-es lakás a valóságban viszont 44 m2 alapterületű! Az ingatlanoz egy kényelmes méretű galéria is tartozik, így a hasznos élettér ennél is nagyobb. A lakás asztalos által tervezett bútorokkal berendezett, amelyek a vételár részét képezik. Egy egyszerű tisztasági festés után szinte teljesen új állapotú otthont kapunk, az ingatlan gondosan karbantartott és azonnal költözhető.
A közel 4 méteres belmagasság tágas, levegős érzetet biztosít, a galéria kiválóan használható hálórészként vagy dolgozósarokként, így a nappali teljes értékű élettér marad. A DK-i tájolásnak köszönhetően a lakás kifejezetten világos és napfényes, ami egész nap kellemes hangulatot teremt.
A bejáraton belépve egy kényelmes közlekedő fogad, ahonnan külön nyílik a konyha, a külön WC és az étkező. Az étkező tovább vezet a tágas nappaliba, amely a lakás központi tere, itt található a galériára vezető lépcső is. A fürdőszoba szintén külön helyiség, jól elkülönül a lakótértől. Az elrendezés nagy előnye, hogy a funkciók nincsenek egymásra zsúfolva, minden helyiség jól használható és természetes módon kapcsolódik a másikhoz.
A Dohány utca Budapest egyik legközpontibb része, ahol szinte minden gyalogosan elérhető. A tömegközlekedés kiváló, néhány perc sétára található az M2 metró Astoria és Blaha Lujza tér megállója, valamint számos busz és villamosjárat, így a város bármely pontja gyorsan megközelíthető. A környéken éttermek, kávézók, üzletek, egyetemek, kulturális és szórakozási lehetőségek széles választéka található.
Ha szereti a belváros pezsgését, de hazaérve egy nyugodt környezetre vágyik, akkor ez a lakás teljes mértékben megfelelő az ön igényeinek.
Ha szeretné megtekinteni a lakást keressen bizalommal!
M323028
Az OTP Ingatlanpont, mint egyetlen közvetlen banki hátterű ingatlanközvetítő társaság teljes körű ügyintézéssel áll az eladók és a vevők rendelkezésére! A kínálatunkból választott ingatlan finanszírozásához minősített fogyasztóbarát, piaci és kedvezményes hitel- és lízingkonstrukciókat kínálunk (lakásvásárlási hitel, CSOK plusz, szabad felhasználású hitel, babaváró hitel, céges hitelek, pályázatok, amennyiben az ügyfél és az ingatlan megfelel a feltételeknek). Az adásvételi szerződés megkötéséhez igény szerint megbízható ügyvédi közreműködést biztosítunk, és segítséget nyújtunk az adásvételhez kapcsolódó egyéb ügyek intézéséhez.
Ha az új ingatlana megvásárlásához a jelenlegi ingatlanát el kell adnia, abban is szívesen segítünk.
Ez a nagypolgári stílusban épült lakás a tulajdoni lapon 41 m2-es lakás a valóságban viszont 44 m2 alapterületű! Az ingatlanoz egy kényelmes méretű galéria is tartozik, így a hasznos élettér ennél is nagyobb. A lakás asztalos által tervezett bútorokkal berendezett, amelyek a vételár részét képezik. Egy egyszerű tisztasági festés után szinte teljesen új állapotú otthont kapunk, az ingatlan gondosan karbantartott és azonnal költözhető.
A közel 4 méteres belmagasság tágas, levegős érzetet biztosít, a galéria kiválóan használható hálórészként vagy dolgozósarokként, így a nappali teljes értékű élettér marad. A DK-i tájolásnak köszönhetően a lakás kifejezetten világos és napfényes, ami egész nap kellemes hangulatot teremt.
A bejáraton belépve egy kényelmes közlekedő fogad, ahonnan külön nyílik a konyha, a külön WC és az étkező. Az étkező tovább vezet a tágas nappaliba, amely a lakás központi tere, itt található a galériára vezető lépcső is. A fürdőszoba szintén külön helyiség, jól elkülönül a lakótértől. Az elrendezés nagy előnye, hogy a funkciók nincsenek egymásra zsúfolva, minden helyiség jól használható és természetes módon kapcsolódik a másikhoz.
A Dohány utca Budapest egyik legközpontibb része, ahol szinte minden gyalogosan elérhető. A tömegközlekedés kiváló, néhány perc sétára található az M2 metró Astoria és Blaha Lujza tér megállója, valamint számos busz és villamosjárat, így a város bármely pontja gyorsan megközelíthető. A környéken éttermek, kávézók, üzletek, egyetemek, kulturális és szórakozási lehetőségek széles választéka található.
Ha szereti a belváros pezsgését, de hazaérve egy nyugodt környezetre vágyik, akkor ez a lakás teljes mértékben megfelelő az ön igényeinek.
Ha szeretné megtekinteni a lakást keressen bizalommal!
M323028
Az OTP Ingatlanpont, mint egyetlen közvetlen banki hátterű ingatlanközvetítő társaság teljes körű ügyintézéssel áll az eladók és a vevők rendelkezésére! A kínálatunkból választott ingatlan finanszírozásához minősített fogyasztóbarát, piaci és kedvezményes hitel- és lízingkonstrukciókat kínálunk (lakásvásárlási hitel, CSOK plusz, szabad felhasználású hitel, babaváró hitel, céges hitelek, pályázatok, amennyiben az ügyfél és az ingatlan megfelel a feltételeknek). Az adásvételi szerződés megkötéséhez igény szerint megbízható ügyvédi közreműködést biztosítunk, és segítséget nyújtunk az adásvételhez kapcsolódó egyéb ügyek intézéséhez.
Ha az új ingatlana megvásárlásához a jelenlegi ingatlanát el kell adnia, abban is szívesen segítünk.