Eladó Lakás
Hirdetéskód: 9306253
OTP Ingatlanpont - Takács Zsuzsanna
Felújításhoz személyi kölcsönt keres? Kalkuláljon itt! →95.00 m2
ALAPTERÜLET2
SZOBASZÁMnincs megadva
ÉPÍTÉSGáz (konvektor)
FŰTÉS- CSOK igénybe vehető nem
- Tetőtér beépíthető nem
- Építés éve 1896
- Fűtés Gáz (konvektor)
- Klíma nem
- Szigetelt nem
A+++
A++
A+
A
B
C
D
E
F
G
H
I
Az ingatlan leírása
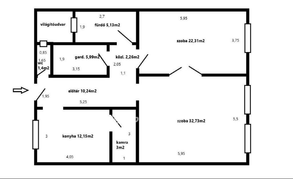
Budapest VII. kerületében, Ligetvárosban 95 m2-es lakás ELADÓ!
A VII. kerület közkedvelt részen, a Damjanich utcában kínálunk eladásra egy magasföldszinti, 95 m2-es lakást.
Az ingatlan egy téglaépítésű, liftes társasház magasföldszintjén helyezkedik el, a ház kívül-belül rendkívül jó állapotú, rendszeresen karbantartott, jó lakóközösséggel és közös képviselettel rendelkezik.
A lakás jelenleg 2 szobás, azonban könnyen 3 szobássá alakítható, ezzel is növelve az életteret. Minden helyisége tágas, külön nyíló.
Állapotát tekintve felújításra szorul, új tulajdonosa saját ízlése szerint alakíthatja.
Utcai nézetének és K-i tájolásának köszönhetően kimondottan világos.
Mind saját, mind befektetési céllal jó választás lehet, hiszen a környék kimondottan jó infrastruktúrával rendelkezik. Az utcában több bevásárlási lehetőség, étterem is található.
Pár perc séta távolságon belül több tömeg közlekedni eszköz is elérhető, buszmegálló, troli.
A Városliget is csupán 10 perc sétára található.
Tehermentes, 1/1-es tulajdonjogú.
M320126
Az OTP Ingatlanpont, mint egyetlen közvetlen banki hátterű ingatlanközvetítő társaság teljes körű ügyintézéssel áll az eladók és a vevők rendelkezésére! A kínálatunkból választott ingatlan finanszírozásához minősített fogyasztóbarát, piaci és kedvezményes hitel- és lízingkonstrukciókat kínálunk (lakásvásárlási hitel, CSOK plusz, szabad felhasználású hitel, babaváró hitel, céges hitelek, pályázatok, amennyiben az ügyfél és az ingatlan megfelel a feltételeknek). Az adásvételi szerződés megkötéséhez igény szerint megbízható ügyvédi közreműködést biztosítunk, és segítséget nyújtunk az adásvételhez kapcsolódó egyéb ügyek intézéséhez.
Ha az új ingatlana megvásárlásához a jelenlegi ingatlanát el kell adnia, abban is szívesen segítünk.
A VII. kerület közkedvelt részen, a Damjanich utcában kínálunk eladásra egy magasföldszinti, 95 m2-es lakást.
Az ingatlan egy téglaépítésű, liftes társasház magasföldszintjén helyezkedik el, a ház kívül-belül rendkívül jó állapotú, rendszeresen karbantartott, jó lakóközösséggel és közös képviselettel rendelkezik.
A lakás jelenleg 2 szobás, azonban könnyen 3 szobássá alakítható, ezzel is növelve az életteret. Minden helyisége tágas, külön nyíló.
Állapotát tekintve felújításra szorul, új tulajdonosa saját ízlése szerint alakíthatja.
Utcai nézetének és K-i tájolásának köszönhetően kimondottan világos.
Mind saját, mind befektetési céllal jó választás lehet, hiszen a környék kimondottan jó infrastruktúrával rendelkezik. Az utcában több bevásárlási lehetőség, étterem is található.
Pár perc séta távolságon belül több tömeg közlekedni eszköz is elérhető, buszmegálló, troli.
A Városliget is csupán 10 perc sétára található.
Tehermentes, 1/1-es tulajdonjogú.
M320126
Az OTP Ingatlanpont, mint egyetlen közvetlen banki hátterű ingatlanközvetítő társaság teljes körű ügyintézéssel áll az eladók és a vevők rendelkezésére! A kínálatunkból választott ingatlan finanszírozásához minősített fogyasztóbarát, piaci és kedvezményes hitel- és lízingkonstrukciókat kínálunk (lakásvásárlási hitel, CSOK plusz, szabad felhasználású hitel, babaváró hitel, céges hitelek, pályázatok, amennyiben az ügyfél és az ingatlan megfelel a feltételeknek). Az adásvételi szerződés megkötéséhez igény szerint megbízható ügyvédi közreműködést biztosítunk, és segítséget nyújtunk az adásvételhez kapcsolódó egyéb ügyek intézéséhez.
Ha az új ingatlana megvásárlásához a jelenlegi ingatlanát el kell adnia, abban is szívesen segítünk.