Eladó Lakás
Hirdetéskód: 9305833
OTP Ingatlanpont - Takács Zsuzsanna
Felújításhoz személyi kölcsönt keres? Kalkuláljon itt! →61.00 m2
ALAPTERÜLET1
SZOBASZÁMnincs megadva
ÉPÍTÉSnincs megadva
FŰTÉS- CSOK igénybe vehető nem
- Tetőtér beépíthető nem
- Építés éve 1920
- Klíma nem
- Szigetelt nem
A+++
A++
A+
A
B
C
D
E
F
G
H
I
Az ingatlan leírása
Eladásra kínálok egy 2017-ben teljes körűen, belsőépítész bevonásával modernizált, fiatalos stílusban kialakított lakást Budapest VI. kerületében, a Vörösmarty utcában.
Az ingatlan elhelyezkedése elsőrangú, hiszen a közlekedési csomópontok (Oktogon, Nyugati tér a pályaudvarral, valamint a 4-6-os villamos, illetve az 1-es, 2-es és 3-as metró vonalai) könnyedén elérhetők, továbbá a szórakozási és bevásárlási lehetőségek (Westend bevásárlóközpont, a híres Andrássy út, valamint számos kávézó és étterem) is mindössze pár perc sétára találhatók.
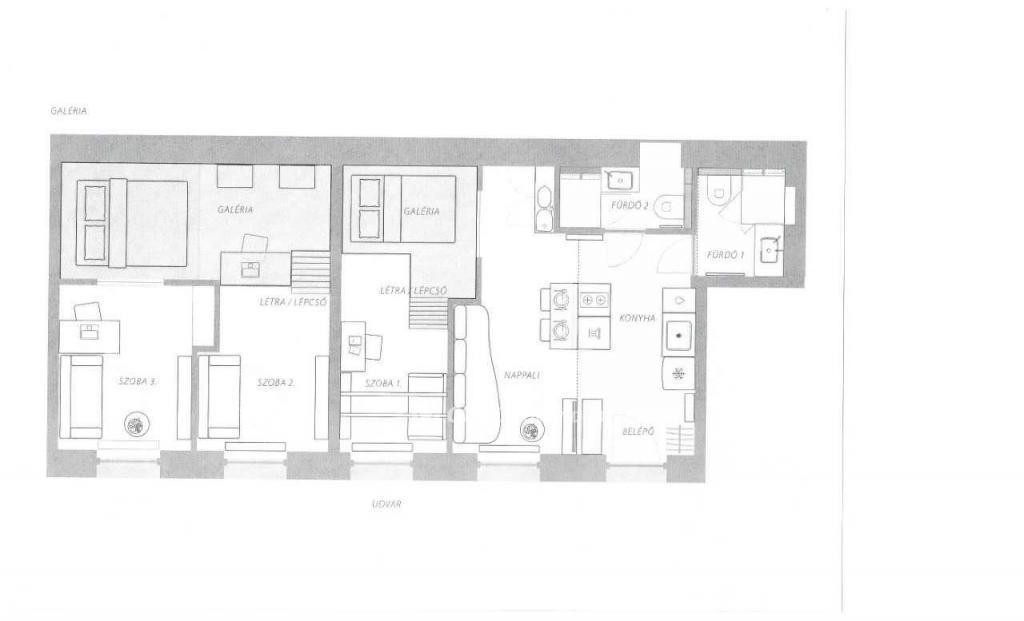
A tulajdoni lap szerint 71 nm-es alapterület a nagy belmagasság révén galériás megoldásokkal bővült.
Az amerikai konyhás nappali mellett három, külön bejáratú, jól kihasználható méretű hálószoba kapott helyet (egyenként 11, 15 és 12 nm-esek), valamint két fürdőszoba is rendelkezésre áll. Mindkettőben található WC, mosdó és zuhanyzó, az egyik helyiségben pedig mosó- és szárítógép is beépítésre került.
Az ablakok a nyugodt belső udvarra néznek, ahol a kerékpárok tárolása biztonságosan megoldott.
A lakás teljes mértékben gépesített és berendezett: beépített sütő, indukciós főzőlap, mosogatógép, hűtő fagyasztóval, nagy méretű televízió több száz csatornával, valamint üvegszálas, nagy sebességű internetkapcsolat is biztosított.
Legyen szó egy hangulatos belvárosi otthonról vagy jövedelmező befektetésről, ez az ingatlan mindkettőnek ideális választás.
Jelenleg is bérbe van adva szobánként 160.000 Ft-ért.
M313869
Az OTP Ingatlanpont, mint egyetlen közvetlen banki hátterű ingatlanközvetítő társaság teljes körű ügyintézéssel áll az eladók és a vevők rendelkezésére! A kínálatunkból választott ingatlan finanszírozásához minősített fogyasztóbarát, piaci és kedvezményes hitel- és lízingkonstrukciókat kínálunk (lakásvásárlási hitel, CSOK plusz, szabad felhasználású hitel, babaváró hitel, céges hitelek, pályázatok, amennyiben az ügyfél és az ingatlan megfelel a feltételeknek). Az adásvételi szerződés megkötéséhez igény szerint megbízható ügyvédi közreműködést biztosítunk, és segítséget nyújtunk az adásvételhez kapcsolódó egyéb ügyek intézéséhez.
Ha az új ingatlana megvásárlásához a jelenlegi ingatlanát el kell adnia, abban is szívesen segítünk.
Az ingatlan elhelyezkedése elsőrangú, hiszen a közlekedési csomópontok (Oktogon, Nyugati tér a pályaudvarral, valamint a 4-6-os villamos, illetve az 1-es, 2-es és 3-as metró vonalai) könnyedén elérhetők, továbbá a szórakozási és bevásárlási lehetőségek (Westend bevásárlóközpont, a híres Andrássy út, valamint számos kávézó és étterem) is mindössze pár perc sétára találhatók.
A tulajdoni lap szerint 71 nm-es alapterület a nagy belmagasság révén galériás megoldásokkal bővült.
Az amerikai konyhás nappali mellett három, külön bejáratú, jól kihasználható méretű hálószoba kapott helyet (egyenként 11, 15 és 12 nm-esek), valamint két fürdőszoba is rendelkezésre áll. Mindkettőben található WC, mosdó és zuhanyzó, az egyik helyiségben pedig mosó- és szárítógép is beépítésre került.
Az ablakok a nyugodt belső udvarra néznek, ahol a kerékpárok tárolása biztonságosan megoldott.
A lakás teljes mértékben gépesített és berendezett: beépített sütő, indukciós főzőlap, mosogatógép, hűtő fagyasztóval, nagy méretű televízió több száz csatornával, valamint üvegszálas, nagy sebességű internetkapcsolat is biztosított.
Legyen szó egy hangulatos belvárosi otthonról vagy jövedelmező befektetésről, ez az ingatlan mindkettőnek ideális választás.
Jelenleg is bérbe van adva szobánként 160.000 Ft-ért.
M313869
Az OTP Ingatlanpont, mint egyetlen közvetlen banki hátterű ingatlanközvetítő társaság teljes körű ügyintézéssel áll az eladók és a vevők rendelkezésére! A kínálatunkból választott ingatlan finanszírozásához minősített fogyasztóbarát, piaci és kedvezményes hitel- és lízingkonstrukciókat kínálunk (lakásvásárlási hitel, CSOK plusz, szabad felhasználású hitel, babaváró hitel, céges hitelek, pályázatok, amennyiben az ügyfél és az ingatlan megfelel a feltételeknek). Az adásvételi szerződés megkötéséhez igény szerint megbízható ügyvédi közreműködést biztosítunk, és segítséget nyújtunk az adásvételhez kapcsolódó egyéb ügyek intézéséhez.
Ha az új ingatlana megvásárlásához a jelenlegi ingatlanát el kell adnia, abban is szívesen segítünk.