Eladó Lakás
Hirdetéskód: 9235582
Duna House Óbuda
45.00 m2
ALAPTERÜLET3
SZOBASZÁMnincs megadva
ÉPÍTÉSnincs megadva
FŰTÉS- CSOK igénybe vehető nem
- Tetőtér beépíthető nem
- Építés éve 2024
- Klíma nem
- Szigetelt nem
A+++
A++
A+
A
B
C
D
E
F
G
H
I
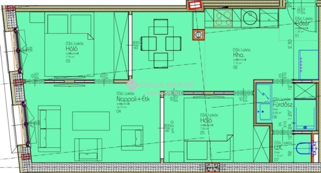
Az ingatlan leírása
Új építésű, energiatakarékos lakások Budapest VI. kerületében – kiváló lokációval
Budapest VI. kerületében, néhány perc sétára a Nyugati pályaudvartól, kiváló elhelyezkedéssel kínálunk eladásra új építésű, energiatakarékos lakásokat. Az ingatlanok egy meglévő társasház ráépítésével kerültek kialakításra, lift kialakításával, modern műszaki tartalommal.
Az összesen 19 lakásból álló projekt a mai kor elvárásainak minden szempontból megfelel: korszerű kialakítás, jól használható belső terek és kimagasló ár-érték arány jellemzi.
Főbb jellemzők
Új építésű, energiatakarékos lakások
Összesen 19 lakásos társasházi projekt
Ráépítéssel kialakított épület -lift kiépítésével
Modern alaprajzok, jól élhető belső terek
4 lakáshoz nagyméretű tetőterasz tartozik
Különböző alapterületű lakások -kisebb méretűek is elérhetők
Mennyezeti hűtés–fűtés, padlófűtéssel kiegészítve
Kiemelkedő ár/érték arány
Komfort & Műszaki tartalom
A lakások fűtése és hűtése korszerű, mennyezeti rendszerrel történik, amelyet padlófűtés egészít ki a maximális komfort érdekében. Ezek a megoldások nemcsak kényelmesek, hanem hosszú távon energiahatékony és költségtakarékos üzemeltetést is biztosítanak.
Lokáció & Befektetési potenciál
A VI. kerület ezen része kiemelten keresett a Nyugati pályaudvar közelsége, a kiváló tömegközlekedés és a belvárosi infrastruktúra miatt.
Az ingatlanok saját célra és befektetésre egyaránt kiválóan alkalmasak.
Új építésű lakásból ebben a kerületben rendkívül korlátozott a kínálat, így a kereslet folyamatosan magas.
Várható átadás: Folyamatosan
Részletes információkért és az elérhető lakások listájáért keressen bizalommal!
Budapest VI. kerületében, néhány perc sétára a Nyugati pályaudvartól, kiváló elhelyezkedéssel kínálunk eladásra új építésű, energiatakarékos lakásokat. Az ingatlanok egy meglévő társasház ráépítésével kerültek kialakításra, lift kialakításával, modern műszaki tartalommal.
Az összesen 19 lakásból álló projekt a mai kor elvárásainak minden szempontból megfelel: korszerű kialakítás, jól használható belső terek és kimagasló ár-érték arány jellemzi.
Főbb jellemzők
Új építésű, energiatakarékos lakások
Összesen 19 lakásos társasházi projekt
Ráépítéssel kialakított épület -lift kiépítésével
Modern alaprajzok, jól élhető belső terek
4 lakáshoz nagyméretű tetőterasz tartozik
Különböző alapterületű lakások -kisebb méretűek is elérhetők
Mennyezeti hűtés–fűtés, padlófűtéssel kiegészítve
Kiemelkedő ár/érték arány
Komfort & Műszaki tartalom
A lakások fűtése és hűtése korszerű, mennyezeti rendszerrel történik, amelyet padlófűtés egészít ki a maximális komfort érdekében. Ezek a megoldások nemcsak kényelmesek, hanem hosszú távon energiahatékony és költségtakarékos üzemeltetést is biztosítanak.
Lokáció & Befektetési potenciál
A VI. kerület ezen része kiemelten keresett a Nyugati pályaudvar közelsége, a kiváló tömegközlekedés és a belvárosi infrastruktúra miatt.
Az ingatlanok saját célra és befektetésre egyaránt kiválóan alkalmasak.
Új építésű lakásból ebben a kerületben rendkívül korlátozott a kínálat, így a kereslet folyamatosan magas.
Várható átadás: Folyamatosan
Részletes információkért és az elérhető lakások listájáért keressen bizalommal!