
199 000 000 Ft
Kalkulált € ár: 507 653 €2 726 027 Ft/m2

Mutasd a képeket
Eladó Lakás
Hirdetéskód: 9188723
Tipp Ingatlan Kft
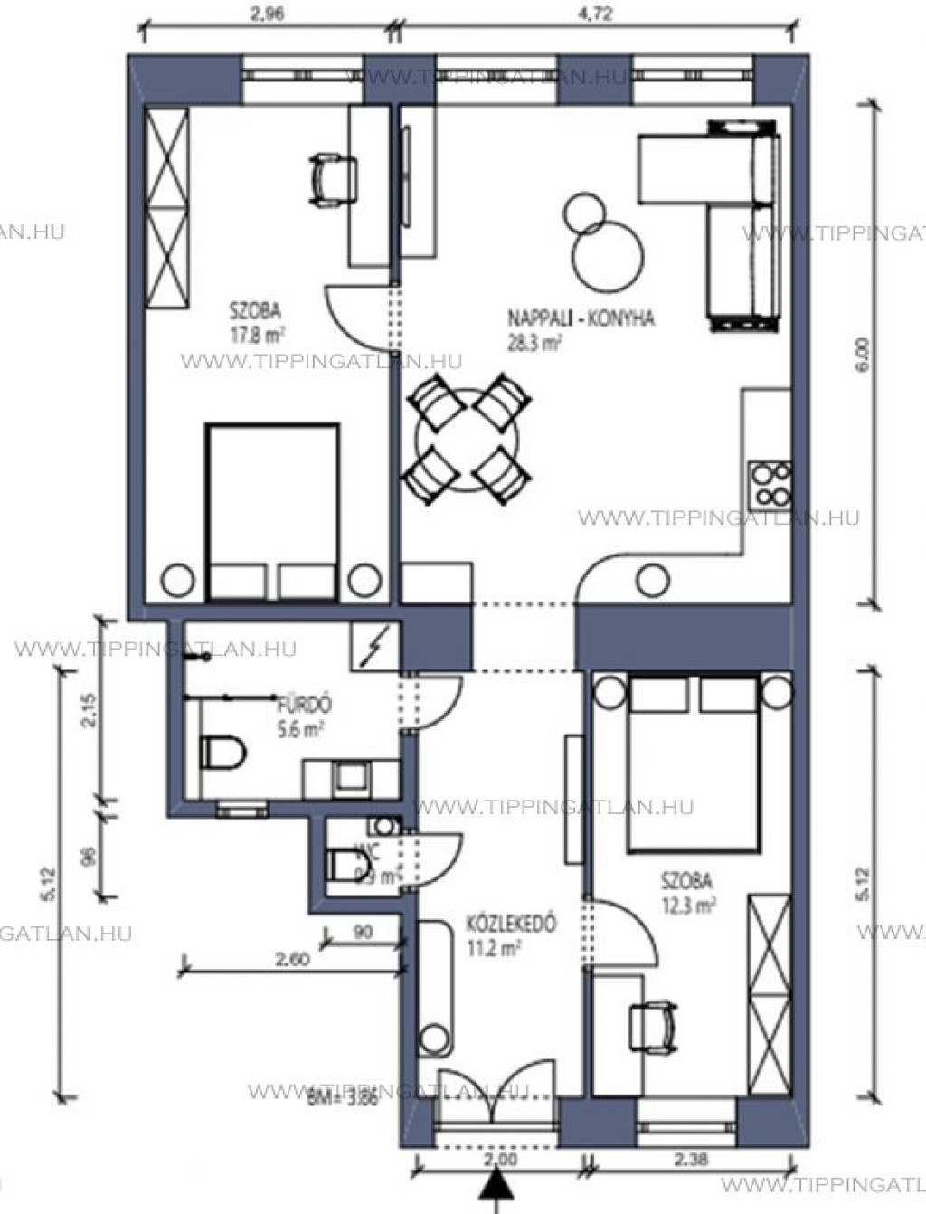
73 m2
ALAPTERÜLET3
SZOBASZÁMnincs megadva
ÉPÍTÉSGáz (cirkó)
FŰTÉS- CSOK igénybe vehető nem
- Tetőtér beépíthető nem
- Fűtés Gáz (cirkó)
- Klíma nem
- Szigetelt nem
A+++
A++
A+
A
B
C
D
E
F
G
H
I
Az ingatlan leírása
LISZT FERENC tér legszebb társasháza, a belső udvarban szökőkúttal.
Vadonatúj, gyönyörűen felújított, 2 háló + nappalis, 2. emeleti, Liszt
Ferenc térre néző lakás.
* 73 m2
* 2. emelet
* Lift van
* Tervező által megálmodott, teljesen berendezett
* Új cirkófűtés design radiátorokkal
* Klimatizált
Térkép




































