Eladó Lakás
Hirdetéskód: 9281793

Alberlet.hu Ingatlan Kft.

Felújításhoz személyi kölcsönt keres? Kalkuláljon itt! →
FIX 3% Program

Ez a hirdetés megfelelhet a FIX 3%-os programnak.
Tudj meg többet a részletekről itt.

66.00 m2
ALAPTERÜLET
2
SZOBASZÁM
nincs megadva
ÉPÍTÉS
Gáz (cirkó)
FŰTÉS
  • CSOK igénybe vehető nem
  • Belső szintek 3
  • Tetőtér beépíthető nem
  • Fűtés Gáz (cirkó)
  • Klíma nem
  • Szigetelt nem

Energetikai besorolás: C

A+++
A++
A+
A
B
C
D
E
F
G
H
I

Az MBH Bank személyi kölcsön ajánlata

Fizetett hirdetés
1 millió Ft
6 évre
20 585 Ft/hó
THM: 14.5%
Részletek →
2 millió Ft
6 évre
41 169 Ft/hó
THM: 14.5%
Részletek →
3 millió Ft
6 évre
61 754 Ft/hó
THM: 14.5%
Részletek →

A tájékoztatás nem teljes körű és nem minősül ajánlattételnek.

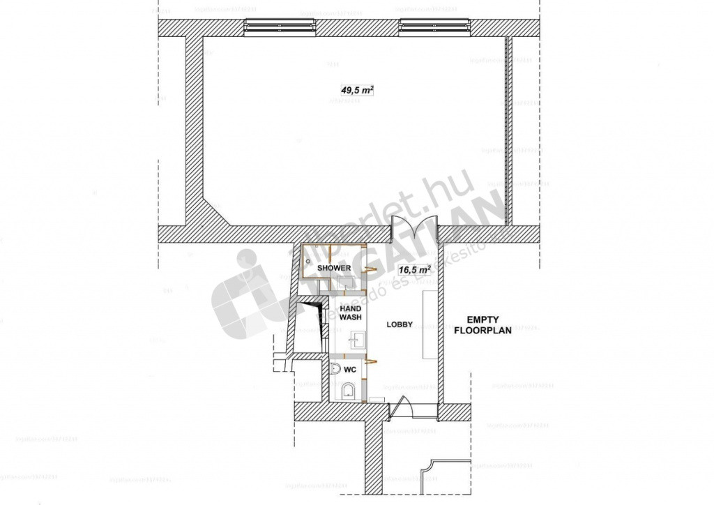
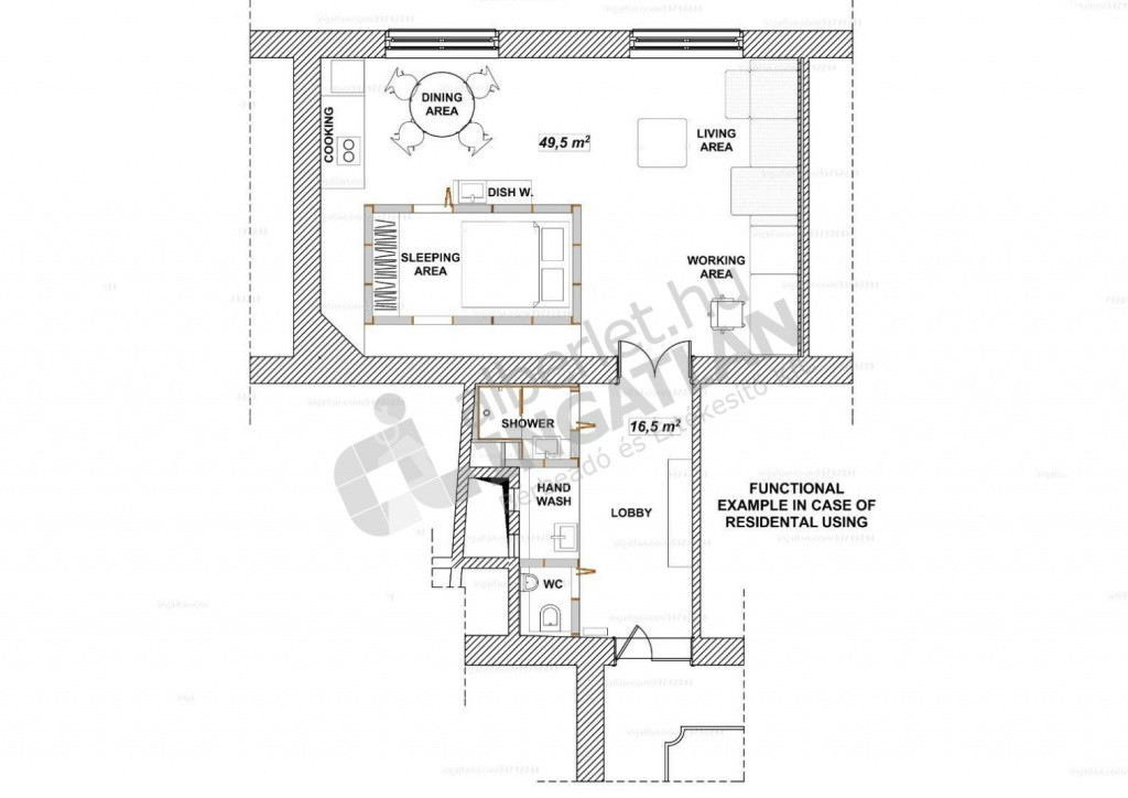
Az ingatlan leírása

Felső Erdősor utcában eladó egy teljeskörűen felújított lakás.

A lakás a LOFT lakáskultúra elveit és kialakítását követi, és a természetes anyaghasználatában a skandináv design köszön vissza.
Működését tekintve: Az egységes anyaghasználatú és egyedi bútorozása lehetővé teszi a rugalmas funkcionális átcsoportosítást, számos különböző alaprajzi elrendezés alakítható ki gyorsan és könnyedén. Ezzel időben és térben dinamikusan képes változni, úgy, hogy klasszikus építési tevékenységre nincs szükség.
E mellett viszont a gépészeti, elektromos és egyéb rendszerei úgy van kialakítva, hogy igény esetén mégis a klasszikus kétszobás állapotra alakítható legyen.

Irodának is tökéletes.

Cirkó fűtés, hűtő-fűtő klíma.

További információk telefonon.

Térkép

Ingatlan adásvétel ügyvédi díja
441 000 Ft
a hirdetésben szereplő ár alapján
  • A vételár 0,45%-a
  • Szerződéscsomag teljeskörű képviselettel
  • Ingyenes tulajdoni lap ellenőrzés
  • Az ÁFA-t már tartalmazza
Érdekel az ajánlat →
A tájékoztatás nem teljes körű és nem minősül ajánlattételnek. Minimum díj: 150 000 Ft, maximum díj: 600 000 Ft. A díj kizárólag lakóingatlan adásvételére vonatkozik.

A hirdető elérhetősége

Alberlet.hu Ingatlan Kft.

Miró András
+36 70 984