Eladó Lakás
Hirdetéskód: 9184898
GDN Ingatlanhálózat - Érdi Ingatlaniroda
Felújításhoz személyi kölcsönt keres? Kalkuláljon itt! →107.00 m2
ALAPTERÜLET4
SZOBASZÁMnincs megadva
ÉPÍTÉSGáz (cirkó)
FŰTÉS- CSOK igénybe vehető nem
- Tetőtér beépíthető nem
- Fűtés Gáz (cirkó)
- Klíma nem
- Szigetelt nem
A+++
A++
A+
A
B
C
D
E
F
G
H
I
Az ingatlan leírása
Eladó elegáns, felújított nagypolgári lakás Budapest szívében
Budapest belvárosában, a VI. kerület egyik legkedveltebb részén kínálunk megvételre egy ízlésesen felújított, 1. emeleti, tágas polgári lakást.
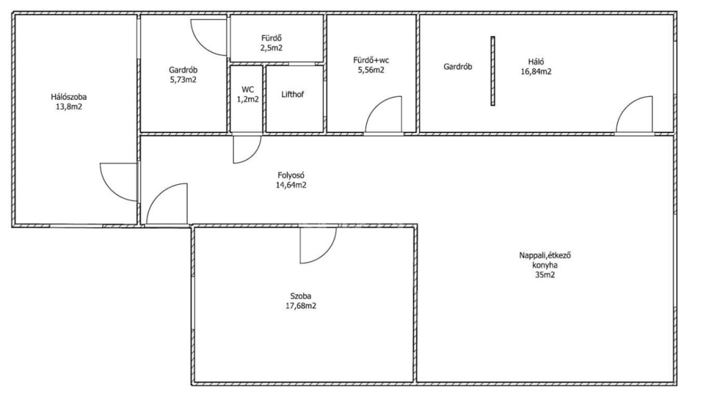
Az ingatlan 107 négyzetméteres, nappalival és 3 külön nyíló szobával rendelkezik, így ideális családok, befektetők vagy akár irodai célra is.
A lakás teljes körű felújításon esett át, modern burkolatokkal, minőségi anyagokkal és harmonikus színvilággal. A terek világosak, jól tagoltak, a klasszikus polgári hangulat és a modern kényelem tökéletes összhangban van.
A társasház rendezett, a környék kiváló infrastruktúrával rendelkezik – néhány perc sétára található az Andrássy út, éttermek, kávézók, kulturális központok és tömegközlekedési csomópontok.
Főbb jellemzők:
Alapterület: 107 m²
Emelet: 1.
Elrendezés: nappali + 3 külön nyíló szoba
Teljeskörű felújítás
Igényes, modern kialakítás
Kiváló lokáció a belváros szívében
Ez a lakás igazi ritkaság a piacon — egyedülálló lehetőség, ha eleganciát és kényelmet keres Budapest központjában! ...TOVÁBBI, TÖBBEZRES INGATLAN KÍNÁLAT: - GDN azonosító: 388284
Budapest belvárosában, a VI. kerület egyik legkedveltebb részén kínálunk megvételre egy ízlésesen felújított, 1. emeleti, tágas polgári lakást.
Az ingatlan 107 négyzetméteres, nappalival és 3 külön nyíló szobával rendelkezik, így ideális családok, befektetők vagy akár irodai célra is.
A lakás teljes körű felújításon esett át, modern burkolatokkal, minőségi anyagokkal és harmonikus színvilággal. A terek világosak, jól tagoltak, a klasszikus polgári hangulat és a modern kényelem tökéletes összhangban van.
A társasház rendezett, a környék kiváló infrastruktúrával rendelkezik – néhány perc sétára található az Andrássy út, éttermek, kávézók, kulturális központok és tömegközlekedési csomópontok.
Főbb jellemzők:
Alapterület: 107 m²
Emelet: 1.
Elrendezés: nappali + 3 külön nyíló szoba
Teljeskörű felújítás
Igényes, modern kialakítás
Kiváló lokáció a belváros szívében
Ez a lakás igazi ritkaság a piacon — egyedülálló lehetőség, ha eleganciát és kényelmet keres Budapest központjában! ...TOVÁBBI, TÖBBEZRES INGATLAN KÍNÁLAT: - GDN azonosító: 388284