Eladó Lakás
Hirdetéskód: 9309029
OTP Ingatlanpont - Takács Zsuzsanna
Felújításhoz személyi kölcsönt keres? Kalkuláljon itt! →80.00 m2
ALAPTERÜLET2
SZOBASZÁMnincs megadva
ÉPÍTÉSElektromos
FŰTÉS- CSOK igénybe vehető nem
- Tetőtér beépíthető nem
- Építés éve 1896
- Fűtés Elektromos
- Klíma nem
- Szigetelt nem
A+++
A++
A+
A
B
C
D
E
F
G
H
I
Az ingatlan leírása
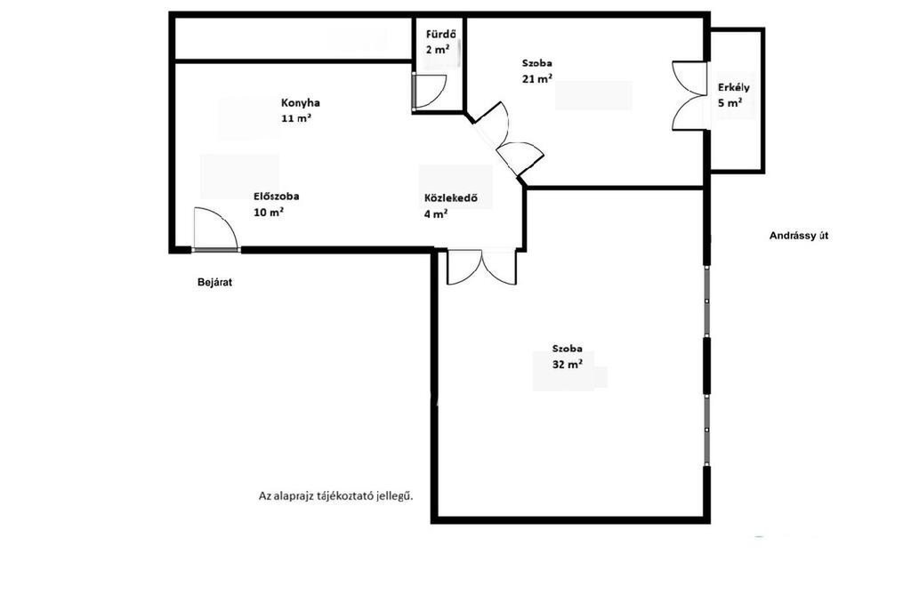
Eladó patinás lakás az Andrássy úton, az Operához közel.
Az Andrássy út frekventált szakaszán kínálunk megvételre egy 80 nm-es, első emeleti lakást egy liftes, gyönyörűen karbantartott polgári házban.
Az ingatlanhoz egy 5 nm-es erkély tartozik, amely közvetlenül az Andrássy útra néz, tovább növelve a lakás presztízsértékét.
A jelenlegi elrendezés szerint a lakás két tágas szobával és külön konyhával rendelkezik. Világos terei, nagy belmagassága és klasszikus hangulata igazán időtálló értéket képvisel.
Elhelyezkedése és adottságai révén lakásként, irodaként vagy orvosi rendelőként is kiválóan hasznosítható.
Az ingatlan besorolása: iroda, de lakásként hirdetjük, viszont lakáscélú hitelt NEM lehet felvenni rá.
Reprezentatív környezet, kiváló közlekedés, ikonikus lokáció ritka lehetőség az Andrássy úton.
M321536
Az OTP Ingatlanpont, mint egyetlen közvetlen banki hátterű ingatlanközvetítő társaság teljes körű ügyintézéssel áll az eladók és a vevők rendelkezésére! A kínálatunkból választott ingatlan finanszírozásához minősített fogyasztóbarát, piaci és kedvezményes hitel- és lízingkonstrukciókat kínálunk (lakásvásárlási hitel, CSOK plusz, szabad felhasználású hitel, babaváró hitel, céges hitelek, pályázatok, amennyiben az ügyfél és az ingatlan megfelel a feltételeknek). Az adásvételi szerződés megkötéséhez igény szerint megbízható ügyvédi közreműködést biztosítunk, és segítséget nyújtunk az adásvételhez kapcsolódó egyéb ügyek intézéséhez.
Ha az új ingatlana megvásárlásához a jelenlegi ingatlanát el kell adnia, abban is szívesen segítünk.
Az Andrássy út frekventált szakaszán kínálunk megvételre egy 80 nm-es, első emeleti lakást egy liftes, gyönyörűen karbantartott polgári házban.
Az ingatlanhoz egy 5 nm-es erkély tartozik, amely közvetlenül az Andrássy útra néz, tovább növelve a lakás presztízsértékét.
A jelenlegi elrendezés szerint a lakás két tágas szobával és külön konyhával rendelkezik. Világos terei, nagy belmagassága és klasszikus hangulata igazán időtálló értéket képvisel.
Elhelyezkedése és adottságai révén lakásként, irodaként vagy orvosi rendelőként is kiválóan hasznosítható.
Az ingatlan besorolása: iroda, de lakásként hirdetjük, viszont lakáscélú hitelt NEM lehet felvenni rá.
Reprezentatív környezet, kiváló közlekedés, ikonikus lokáció ritka lehetőség az Andrássy úton.
M321536
Az OTP Ingatlanpont, mint egyetlen közvetlen banki hátterű ingatlanközvetítő társaság teljes körű ügyintézéssel áll az eladók és a vevők rendelkezésére! A kínálatunkból választott ingatlan finanszírozásához minősített fogyasztóbarát, piaci és kedvezményes hitel- és lízingkonstrukciókat kínálunk (lakásvásárlási hitel, CSOK plusz, szabad felhasználású hitel, babaváró hitel, céges hitelek, pályázatok, amennyiben az ügyfél és az ingatlan megfelel a feltételeknek). Az adásvételi szerződés megkötéséhez igény szerint megbízható ügyvédi közreműködést biztosítunk, és segítséget nyújtunk az adásvételhez kapcsolódó egyéb ügyek intézéséhez.
Ha az új ingatlana megvásárlásához a jelenlegi ingatlanát el kell adnia, abban is szívesen segítünk.