Eladó Lakás
Hirdetéskód: 9190246
OTP Ingatlanpont - Budapest IX. ker., Üllői út 21.
51 m2
ALAPTERÜLET1
SZOBASZÁMnincs megadva
ÉPÍTÉSnincs megadva
FŰTÉS- CSOK igénybe vehető nem
- Tetőtér beépíthető nem
- Építés éve 1920
- Klíma nem
- Szigetelt nem
A+++
A++
A+
A
B
C
D
E
F
G
H
I
Az ingatlan leírása
Budapest ikonikus sugárútján, az Andrássy úton, melyet gyakran a magyar Champs-Élysées-ként emlegetnek , a Cseh Nagykövetség közvetlen közelében kínálunk eladásra egy magasföldszinti ingatlant.
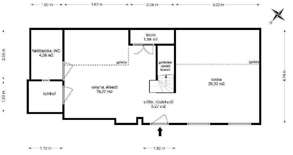
A tulajdoni lapon 51 nm alapterület szerepel, azonban a kialakított 18 nm-es galériával és a kizárólagos használatú, 4 nm-es lichthof területtel együtt összesen 73 nm hasznos élettérrel rendelkezik.
Az ingatlan teljes körűen felújított, műszakilag és esztétikailag egyaránt kifogástalan állapotban van.
2017-ben alakították át jelenlegi formájára lakberendező bevonásával, prémium színvonalon.
Az átalakítás során teljes gépészeti rendszer- és vezetékhálózat-csere történt, modern padlófűtés, új szaniterek és beépített bútorok kerültek beépítésre.
Az alaprajzot teljes mértékben újragondolták. Az ablakok korszerű, hőszigetelt üvegezést kaptak, a fűtésről és a melegvízről kondenzációs gázkazán gondoskodik. A tágas belmagasság lehetővé tette egy 18 nm-es galéria kialakítását. Az enteriőrt a 19. századi Andrássy útról készült képek, valamint eredeti, felújított díszítőelemek, például korlátok és lámpatartók, teszik egyedivé, megőrizve a klasszikus hangulatot.
Az ingatlan belső terei átgondoltan, praktikus elrendezéssel készültek.
A bejáraton belépve egy előtér fogad, amely közvetlen összeköttetésben áll a balra található konyha-étkező résszel, illetve a jobbra eső nappalival. A földszinten mindenhol padlófűtés működik. A nappaliban egy térdfallal leválasztott dolgozósarok is helyet kapott. A galériára vezető lépcsővel szemben egy 2 nm-es háztartási helyiség található, a lépcső alatti részek pedig tárolóként lettek hasznosítva.
A fürdőszoba, amely a konyha felől közelíthető meg, zuhanyzóval és toalettel került kialakításra. Ugyanezen a részen található a lakáshoz kizárólagosan tartozó, intim jellegű, 4 nm-es lichthof is, melyet hangulatos, kivilágított pihenősarokká alakítottak.
A galéria két részre tagolódik: a nappali felett egy kb. 9 nm-es, radiátoros fűtéssel felszerelt, ajtóval szeparált hálófülke kapott helyet, melyhez franciaerkély nyílik, rálátással a nappalira. A konyha fölött egy szintén kb. 9 nm-es, nyitott, üvegkorláttal határolt galéria áll rendelkezésre, amelyen vendégágy és gardróbszekrény is elfért.
A felújítás során külön mosókonyha került kialakításra mosó- és szárítógéppel, valamint modern, teljesen gépesített konyha (beépített sütő, indukciós főzőlap, mosogatógép, fagyasztós hűtő). A biztonságról riasztórendszer, a komfortérzetről pedig hűtő-fűtő klíma gondoskodik.
Kiváló elhelyezkedésének és adottságainak köszönhetően az ingatlan befektetésként is remek lehetőség. Jelenleg is bérbe van adva, havi 420.000 Ft bérleti díjért.
A tulajdoni lapon 51 nm alapterület szerepel, azonban a kialakított 18 nm-es galériával és a kizárólagos használatú, 4 nm-es lichthof területtel együtt összesen 73 nm hasznos élettérrel rendelkezik.
Az ingatlan teljes körűen felújított, műszakilag és esztétikailag egyaránt kifogástalan állapotban van.
2017-ben alakították át jelenlegi formájára lakberendező bevonásával, prémium színvonalon.
Az átalakítás során teljes gépészeti rendszer- és vezetékhálózat-csere történt, modern padlófűtés, új szaniterek és beépített bútorok kerültek beépítésre.
Az alaprajzot teljes mértékben újragondolták. Az ablakok korszerű, hőszigetelt üvegezést kaptak, a fűtésről és a melegvízről kondenzációs gázkazán gondoskodik. A tágas belmagasság lehetővé tette egy 18 nm-es galéria kialakítását. Az enteriőrt a 19. századi Andrássy útról készült képek, valamint eredeti, felújított díszítőelemek, például korlátok és lámpatartók, teszik egyedivé, megőrizve a klasszikus hangulatot.
Az ingatlan belső terei átgondoltan, praktikus elrendezéssel készültek.
A bejáraton belépve egy előtér fogad, amely közvetlen összeköttetésben áll a balra található konyha-étkező résszel, illetve a jobbra eső nappalival. A földszinten mindenhol padlófűtés működik. A nappaliban egy térdfallal leválasztott dolgozósarok is helyet kapott. A galériára vezető lépcsővel szemben egy 2 nm-es háztartási helyiség található, a lépcső alatti részek pedig tárolóként lettek hasznosítva.
A fürdőszoba, amely a konyha felől közelíthető meg, zuhanyzóval és toalettel került kialakításra. Ugyanezen a részen található a lakáshoz kizárólagosan tartozó, intim jellegű, 4 nm-es lichthof is, melyet hangulatos, kivilágított pihenősarokká alakítottak.
A galéria két részre tagolódik: a nappali felett egy kb. 9 nm-es, radiátoros fűtéssel felszerelt, ajtóval szeparált hálófülke kapott helyet, melyhez franciaerkély nyílik, rálátással a nappalira. A konyha fölött egy szintén kb. 9 nm-es, nyitott, üvegkorláttal határolt galéria áll rendelkezésre, amelyen vendégágy és gardróbszekrény is elfért.
A felújítás során külön mosókonyha került kialakításra mosó- és szárítógéppel, valamint modern, teljesen gépesített konyha (beépített sütő, indukciós főzőlap, mosogatógép, fagyasztós hűtő). A biztonságról riasztórendszer, a komfortérzetről pedig hűtő-fűtő klíma gondoskodik.
Kiváló elhelyezkedésének és adottságainak köszönhetően az ingatlan befektetésként is remek lehetőség. Jelenleg is bérbe van adva, havi 420.000 Ft bérleti díjért.