Eladó Lakás
Hirdetéskód: 9208910
Duna House Óbuda
75 m2
ALAPTERÜLET2
SZOBASZÁMnincs megadva
ÉPÍTÉSnincs megadva
FŰTÉS- CSOK igénybe vehető nem
- Tetőtér beépíthető nem
- Építés éve 1880
- Klíma nem
- Szigetelt nem
A+++
A++
A+
A
B
C
D
E
F
G
H
I
Az ingatlan leírása
Eladó luxus lakás Budapest szívében!
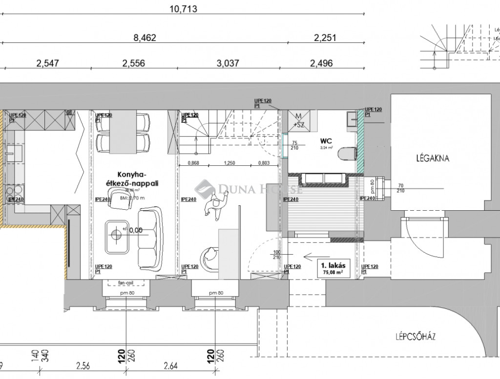
Egy 75 m²-es, belső kétszintes design otthon a Városház utcában!*******A LAKÁS ELKÉSZÜLT ÉS KÖLTÖZHETŐ!*******Teljesen újjáépített és berendezett lakás Budapest V. kerületének egyik legszebb, műemlékvédelem alatt álló épületében, a patinás Városház utcában pár lépésre a Szervita tértől, csendes, mégis kiválóan megközelíthető lokációban.Kialakítás és hangulatA lakást belsőépítész által megálmodott koncepció alapján újították fel. A kétszintes kialakításnak köszönhetően tágas, jól átgondolt életterek várják az új tulajdonost, a természetes fény és a prémium anyaghasználat elegáns, nyugodt atmoszférát teremt. Nappali, konyha-étkező, 2 hálószoba, 2 fürdőszoba, háztartási helyiség Teljes értékű belmagasság: alsó szint 275 cm, emelet 265 cm A lakás a tágas belső udvarra néz, amely biztosítja a természetes fényt és a csendetMűszaki tartalom és extrák Gépészet: Hőszivattyús fűtés-hűtés (Wi-Fi-vel vezérelhető), Inova fan-coil hőleadók, helyiségenként szabályozható Burkolatok: Svájci rétegelt fa parketta, olasz márványhatású gres lapok (Marca Corona Scultorea) Konyha: Egyedi gyártású U alakú, kvarcit kő munkapulttal, AEG beépített gépekkel, Hansgrohe csapteleppel Világítás: Stukkóba rejtett LED világítás, fényerőszabályzóval, dizájn világítótestek Fürdők: Teljesen felszerelt, vízhőmérséklet-kijelzős csaptelepek, LED tükrök, esőztető zuhany Nyílászárók: Új, hőszigetelt ablakok műemléki engedéllyel, 88 mm vastag fa kivitel az emeleten Biztonság: Tűz- és füstérzékelő, betörésjelző rendszerA lakás teljes berendezéssel kerül átadásra: Design ülőgarnitúra, étkezőasztal bársony székekkel, TV-szekrény, gardrób, hálószobai bútorzat, dekorációk Minden ablakon fényáteresztő függöny Teljes értékű, berendezett háztartási helyiség. Ideális választás: Belvárosi luxus otthont keresőknek Üzletembereknek, diplomatáknak.
Kiváló befektetés hosszú távú kiadásra (albérletként vagy céges használatra)További információ, alaprajz és részletes műszaki dokumentáció kérésre elérhető. A mellette lévő 94nm-es lakás is eladó!
Keressen bizalommal, ha egy igazán különleges belvárosi lakást keres kulcsrakészen, kompromisszumok nélkül.
Egy 75 m²-es, belső kétszintes design otthon a Városház utcában!*******A LAKÁS ELKÉSZÜLT ÉS KÖLTÖZHETŐ!*******Teljesen újjáépített és berendezett lakás Budapest V. kerületének egyik legszebb, műemlékvédelem alatt álló épületében, a patinás Városház utcában pár lépésre a Szervita tértől, csendes, mégis kiválóan megközelíthető lokációban.Kialakítás és hangulatA lakást belsőépítész által megálmodott koncepció alapján újították fel. A kétszintes kialakításnak köszönhetően tágas, jól átgondolt életterek várják az új tulajdonost, a természetes fény és a prémium anyaghasználat elegáns, nyugodt atmoszférát teremt. Nappali, konyha-étkező, 2 hálószoba, 2 fürdőszoba, háztartási helyiség Teljes értékű belmagasság: alsó szint 275 cm, emelet 265 cm A lakás a tágas belső udvarra néz, amely biztosítja a természetes fényt és a csendetMűszaki tartalom és extrák Gépészet: Hőszivattyús fűtés-hűtés (Wi-Fi-vel vezérelhető), Inova fan-coil hőleadók, helyiségenként szabályozható Burkolatok: Svájci rétegelt fa parketta, olasz márványhatású gres lapok (Marca Corona Scultorea) Konyha: Egyedi gyártású U alakú, kvarcit kő munkapulttal, AEG beépített gépekkel, Hansgrohe csapteleppel Világítás: Stukkóba rejtett LED világítás, fényerőszabályzóval, dizájn világítótestek Fürdők: Teljesen felszerelt, vízhőmérséklet-kijelzős csaptelepek, LED tükrök, esőztető zuhany Nyílászárók: Új, hőszigetelt ablakok műemléki engedéllyel, 88 mm vastag fa kivitel az emeleten Biztonság: Tűz- és füstérzékelő, betörésjelző rendszerA lakás teljes berendezéssel kerül átadásra: Design ülőgarnitúra, étkezőasztal bársony székekkel, TV-szekrény, gardrób, hálószobai bútorzat, dekorációk Minden ablakon fényáteresztő függöny Teljes értékű, berendezett háztartási helyiség. Ideális választás: Belvárosi luxus otthont keresőknek Üzletembereknek, diplomatáknak.
Kiváló befektetés hosszú távú kiadásra (albérletként vagy céges használatra)További információ, alaprajz és részletes műszaki dokumentáció kérésre elérhető. A mellette lévő 94nm-es lakás is eladó!
Keressen bizalommal, ha egy igazán különleges belvárosi lakást keres kulcsrakészen, kompromisszumok nélkül.