Eladó Lakás
Hirdetéskód: 9302999
GDN Ingatlanhálózat - Harmónia
Felújításhoz személyi kölcsönt keres? Kalkuláljon itt! →79.00 m2
ALAPTERÜLET2
SZOBASZÁMnincs megadva
ÉPÍTÉSGáz (cirkó)
FŰTÉS- CSOK igénybe vehető nem
- Tetőtér beépíthető nem
- Fűtés Gáz (cirkó)
- Klíma nem
- Szigetelt nem
A+++
A++
A+
A
B
C
D
E
F
G
H
I
Az ingatlan leírása
Világos, csendes lakás a Nagykörút közelében – azonnali hozammal!
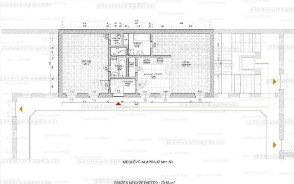
Eladó egy 79 m²-es, udvari, világos ingatlan, amely jelenleg két teljes értékű lakásra osztott, külön bejárattal, így akár bérlőkkel együtt, azonnali hozamot biztosítva.
--- For English, scroll down ----
✅ Lakás – pontos m²-adatok:
Közös előtér: 3,94 m²
1. lakás:
Szoba: 26,66 m²
Fürdőszoba: 2,86 m²
Konyhafülke: 1,24 m²
2. lakás:
Szoba: 26,41 m²
Konyha: 11,56 m²
Fürdőszoba: 6,33 m²
Kamra: 1,27 m²
✅ Kiváló lokáció – a Vígszínház és a Jászai Mari tér között, csendes, világos lakás, a 4. emeleten, ideális befektetésre.
✅ Történelmi és építészeti érték – a házat a Haggenmacher család építtette, terveit Hubert József (1846–1916) készítette. Az épület 1897–1898-ban épült, eklektikus stílusban, négyemeletes, magastetős, belső udvaros bérház.
Utcai homlokzat: héttengelyes, ikerablakokkal a szélső tengelyekben
Zárterkély a II–III. emeleten, kőkonzolokkal, kovácsoltvas korláttal a IV. emeleten
Portál diadalív-motívummal, oroszlánfej díszítéssel
Belső udvar: téglalap alakú, kovácsoltvas korlátos körfolyosó
Híres lakói: Somlay Artúr (1883–1951), Sándor Kálmán (1903–1962)
✅ Gazdaságos üzemeltetés – átlagos rezsi ~20.000 Ft/hó, közös költség 25.280 Ft/hó.
✅ Befektetők álma – azonnal kiadható, hosszú távon értékálló.
Ár: 105,5 millió Ft
✅ Környék és közlekedés:
Közeli látványosságok: Margitsziget, Parlament, Vígszínház
Üzletek, kávézók, éttermek, szórakozási lehetőségek a közelben
Iskolák, óvodák gyalogosan elérhetők
Kiváló közlekedés: villamos- és buszmegállók pár perc sétára, M1/M2 metró a közelben, gyors elérés pályaudvarokhoz és a Belvároshoz
5. kerület, Budapest szívében
--- English ---
✅ Bright, quiet apartment near the Nagykörút – immediate rental income!
For sale: a 79 m², courtyard-facing, bright apartment, currently divided into two fully functional units, each with separate entrances, providing immediate rental income if purchased with tenants.
✅ Flexible layout – exact sizes:
Shared entrance: 3.94 m²
1st apartment:
Room: 26.66 m²
Bathroom: 2.86 m²
Kitchenette: 1.24 m²
2nd apartment:
Room: 26.41 m²
Kitchen: 11.56 m²
Bathroom: 6.33 m²
Pantry: 1.27 m²
✅ Excellent location – between Vígszínház and Jászai Mari Square, quiet and bright, on the 4th floor, ideal for investors.
✅ Historical and architectural value – the building was commissioned by the Haggenmacher family, designed by József Hubert (1846–1916). Built in 1897–1898 in eclectic style, it is a four-story, pitched-roof, courtyard-facing apartment building.
Street façade: seven axes with twin windows on the outer axes
Enclosed balconies on the 2nd–3rd floors, supported by stone consoles, with wrought-iron railings on the 4th floor
Portal with triumphal arch motif and lion head decoration
Inner courtyard: rectangular, surrounded by wrought-iron rail balcony corridors
Famous former residents: Artúr Somlay (1883–1951), Kálmán Sándor (1903–1962)
✅ Cost-effective operation – average utility costs ~20,000 HUF/month, common costs 25,280 HUF/month.
✅ Investor’s dream – immediately rentable, long-term value.
Price: 105.5 million HUF
✅ Neighborhood and transport:
Nearby attractions: Margaret Island, Parliament, Vígszínház
Shops, cafes, restaurants, entertainment options nearby
Schools and kindergartens within walking distance
Excellent transport connections: tram and bus stops just a few minutes away, M1/M2 metro nearby, quick access to train stations and the city center
Located in District V, the heart of Budapest ...TOVÁBBI, TÖBBEZRES INGATLAN KÍNÁLAT: - GDN azonosító: 393730
Eladó egy 79 m²-es, udvari, világos ingatlan, amely jelenleg két teljes értékű lakásra osztott, külön bejárattal, így akár bérlőkkel együtt, azonnali hozamot biztosítva.
--- For English, scroll down ----
✅ Lakás – pontos m²-adatok:
Közös előtér: 3,94 m²
1. lakás:
Szoba: 26,66 m²
Fürdőszoba: 2,86 m²
Konyhafülke: 1,24 m²
2. lakás:
Szoba: 26,41 m²
Konyha: 11,56 m²
Fürdőszoba: 6,33 m²
Kamra: 1,27 m²
✅ Kiváló lokáció – a Vígszínház és a Jászai Mari tér között, csendes, világos lakás, a 4. emeleten, ideális befektetésre.
✅ Történelmi és építészeti érték – a házat a Haggenmacher család építtette, terveit Hubert József (1846–1916) készítette. Az épület 1897–1898-ban épült, eklektikus stílusban, négyemeletes, magastetős, belső udvaros bérház.
Utcai homlokzat: héttengelyes, ikerablakokkal a szélső tengelyekben
Zárterkély a II–III. emeleten, kőkonzolokkal, kovácsoltvas korláttal a IV. emeleten
Portál diadalív-motívummal, oroszlánfej díszítéssel
Belső udvar: téglalap alakú, kovácsoltvas korlátos körfolyosó
Híres lakói: Somlay Artúr (1883–1951), Sándor Kálmán (1903–1962)
✅ Gazdaságos üzemeltetés – átlagos rezsi ~20.000 Ft/hó, közös költség 25.280 Ft/hó.
✅ Befektetők álma – azonnal kiadható, hosszú távon értékálló.
Ár: 105,5 millió Ft
✅ Környék és közlekedés:
Közeli látványosságok: Margitsziget, Parlament, Vígszínház
Üzletek, kávézók, éttermek, szórakozási lehetőségek a közelben
Iskolák, óvodák gyalogosan elérhetők
Kiváló közlekedés: villamos- és buszmegállók pár perc sétára, M1/M2 metró a közelben, gyors elérés pályaudvarokhoz és a Belvároshoz
5. kerület, Budapest szívében
--- English ---
✅ Bright, quiet apartment near the Nagykörút – immediate rental income!
For sale: a 79 m², courtyard-facing, bright apartment, currently divided into two fully functional units, each with separate entrances, providing immediate rental income if purchased with tenants.
✅ Flexible layout – exact sizes:
Shared entrance: 3.94 m²
1st apartment:
Room: 26.66 m²
Bathroom: 2.86 m²
Kitchenette: 1.24 m²
2nd apartment:
Room: 26.41 m²
Kitchen: 11.56 m²
Bathroom: 6.33 m²
Pantry: 1.27 m²
✅ Excellent location – between Vígszínház and Jászai Mari Square, quiet and bright, on the 4th floor, ideal for investors.
✅ Historical and architectural value – the building was commissioned by the Haggenmacher family, designed by József Hubert (1846–1916). Built in 1897–1898 in eclectic style, it is a four-story, pitched-roof, courtyard-facing apartment building.
Street façade: seven axes with twin windows on the outer axes
Enclosed balconies on the 2nd–3rd floors, supported by stone consoles, with wrought-iron railings on the 4th floor
Portal with triumphal arch motif and lion head decoration
Inner courtyard: rectangular, surrounded by wrought-iron rail balcony corridors
Famous former residents: Artúr Somlay (1883–1951), Kálmán Sándor (1903–1962)
✅ Cost-effective operation – average utility costs ~20,000 HUF/month, common costs 25,280 HUF/month.
✅ Investor’s dream – immediately rentable, long-term value.
Price: 105.5 million HUF
✅ Neighborhood and transport:
Nearby attractions: Margaret Island, Parliament, Vígszínház
Shops, cafes, restaurants, entertainment options nearby
Schools and kindergartens within walking distance
Excellent transport connections: tram and bus stops just a few minutes away, M1/M2 metro nearby, quick access to train stations and the city center
Located in District V, the heart of Budapest ...TOVÁBBI, TÖBBEZRES INGATLAN KÍNÁLAT: - GDN azonosító: 393730