Eladó Lakás
Hirdetéskód: 9299075
Alberlet.hu Ingatlan Kft.
Felújításhoz személyi kölcsönt keres? Kalkuláljon itt! →79.00 m2
ALAPTERÜLET2
SZOBASZÁMnincs megadva
ÉPÍTÉSKözponti fűtés
FŰTÉS- CSOK igénybe vehető nem
- Belső szintek 5
- Tetőtér beépíthető nem
- Építés éve 1922
- Fűtés Központi fűtés
- Klíma nem
- Szigetelt nem
Energetikai besorolás: C
A+++
A++
A+
A
B
C
D
E
F
G
H
I
Az ingatlan leírása
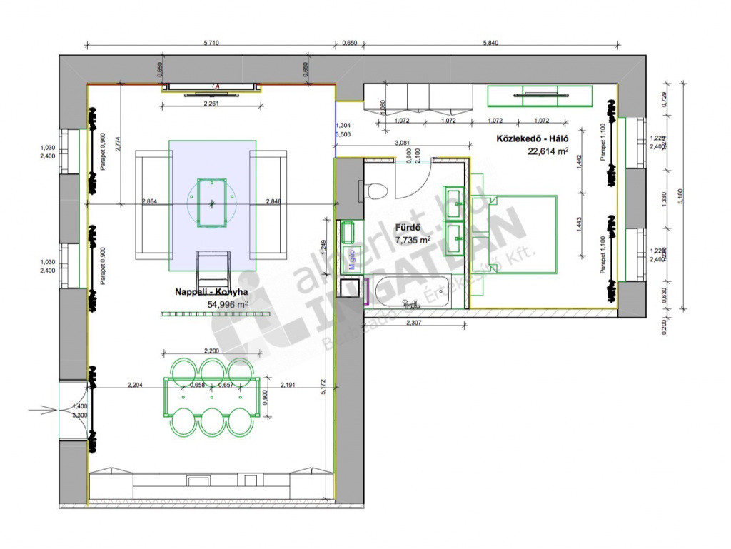
Budapest egyik legpatinásabb és legkeresettebb városrészében, Szemere utában, az V. kerület szívében, Lipótváros elegáns utcájában kínálunk megvételre egy 79 m²-es, felújított, 2 szobás polgári lakást.
Az 1922-ben épült, klasszikus hangulatú, liftes társasház 2. emeletén található ingatlan különleges atmoszféráját a 4,2 méteres belmagasság, a tágas terek és a polgári építészet eleganciája adja. A lakás déli tájolású, utcai nézetű, ugyanakkor kifejezetten csendes, így a belvárosi elhelyezkedés mellett nyugodt lakókörnyezetet biztosít.
A lakás igényesen felújított, modern gépesítéssel és berendezéssel rendelkezik, így új tulajdonosa számára akár azonnal költözhető állapotban van. A komfortot padlófűtés, légkondicionáló, valamint gépesített konyha biztosítja. A konyha elszívóval és ablakkal is rendelkezik, ami ritkaság a belvárosi lakásoknál. A fürdőszobában kád található, a WC külön helyiségben került kialakításra.
A lakás elrendezése praktikus: a tágas szobák, így a tér jól átlátható és élhető. A magas belmagasság további térérzetet biztosít, és akár galéria kialakítására is lehetőséget ad.
A környék infrastruktúrája kiváló: sétatávolságra található a Parlament, a Duna-part, a Szabadság tér, valamint számos étterem, kávézó és szolgáltatás, így a lakás ideális választás saját otthonnak, reprezentatív belvárosi lakásnak vagy befektetésnek egyaránt.
Főbb jellemzők:
79 m² alapterület
2 szoba
4,2 m belmagasság
felújított állapot
padlófűtés
Hűtő-fűtő légkondicionáló
gépesített, berendezett lakás
liftes ház
Irányár: 158 millió Ft
Ha egy elegáns, klasszikus belvárosi lakást keres, amely ötvözi a polgári hangulatot a modern kényelemmel, ez az ingatlan kiváló választás lehet.
Az 1922-ben épült, klasszikus hangulatú, liftes társasház 2. emeletén található ingatlan különleges atmoszféráját a 4,2 méteres belmagasság, a tágas terek és a polgári építészet eleganciája adja. A lakás déli tájolású, utcai nézetű, ugyanakkor kifejezetten csendes, így a belvárosi elhelyezkedés mellett nyugodt lakókörnyezetet biztosít.
A lakás igényesen felújított, modern gépesítéssel és berendezéssel rendelkezik, így új tulajdonosa számára akár azonnal költözhető állapotban van. A komfortot padlófűtés, légkondicionáló, valamint gépesített konyha biztosítja. A konyha elszívóval és ablakkal is rendelkezik, ami ritkaság a belvárosi lakásoknál. A fürdőszobában kád található, a WC külön helyiségben került kialakításra.
A lakás elrendezése praktikus: a tágas szobák, így a tér jól átlátható és élhető. A magas belmagasság további térérzetet biztosít, és akár galéria kialakítására is lehetőséget ad.
A környék infrastruktúrája kiváló: sétatávolságra található a Parlament, a Duna-part, a Szabadság tér, valamint számos étterem, kávézó és szolgáltatás, így a lakás ideális választás saját otthonnak, reprezentatív belvárosi lakásnak vagy befektetésnek egyaránt.
Főbb jellemzők:
79 m² alapterület
2 szoba
4,2 m belmagasság
felújított állapot
padlófűtés
Hűtő-fűtő légkondicionáló
gépesített, berendezett lakás
liftes ház
Irányár: 158 millió Ft
Ha egy elegáns, klasszikus belvárosi lakást keres, amely ötvözi a polgári hangulatot a modern kényelemmel, ez az ingatlan kiváló választás lehet.