Eladó Lakás
Hirdetéskód: 9320846
Fővállalkozó Balla és Balla Kft
Felújításhoz személyi kölcsönt keres? Kalkuláljon itt! →66.00 m2
ALAPTERÜLET2
SZOBASZÁMnincs megadva
ÉPÍTÉSEgyéb fűtés
FŰTÉS- CSOK igénybe vehető nem
- Tetőtér beépíthető nem
- Építés éve 2018
- Fűtés Egyéb fűtés
- Klíma nem
- Szigetelt nem
A+++
A++
A+
A
B
C
D
E
F
G
H
I
Az ingatlan leírása
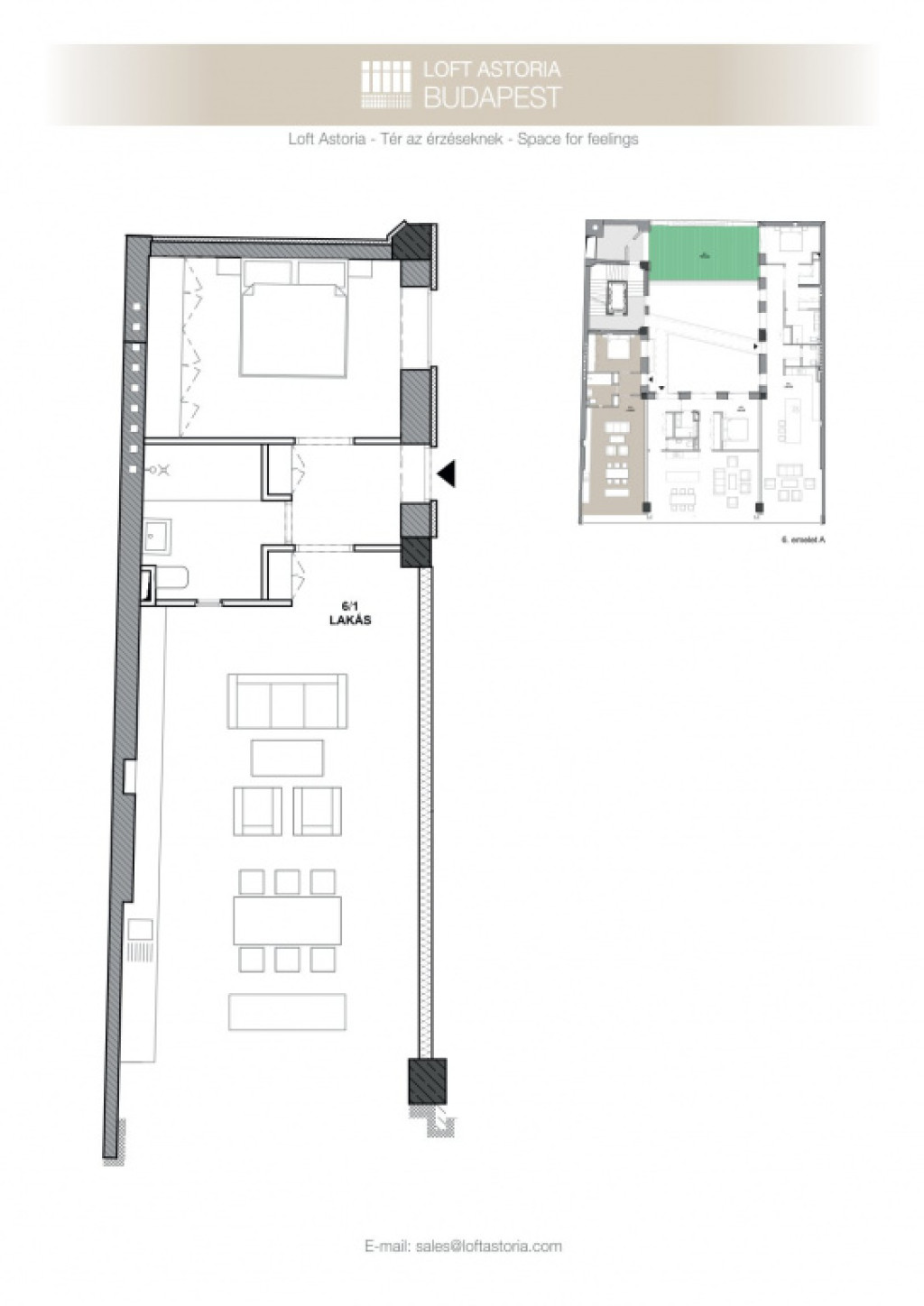
Eladó Astoriánál 66 m2-es, exkluzív ingatlan.
A házat 2018-ban álmodták meg a korábban itt fekvő ipari épület helyén és kihasználva az adottságokat industrial stílusban alkották újra.
A stílusra jellemző az acélszerkezetek, a nyers beton és a kezeletlen fa használata, ezek visszaköszönnek az itt létrejött lakásokban.
Az eladó ingatlan egy hatalmas nappali, konyhából, tágas fürdőszobából walk-in zuhanyzóval és nagy méretű hálóból áll. A közlekedőben beépített szekrények vannak. A lakás különlegessége a közel 5 méteres faltól-falig húzódó ablak, ahonnan a belvárosra láthatunk rá, a hatalmas belső terek és az osztott, fémkeretes ablakok, ajtók, amelyekkel elválasztják ezt a teret.
Fűtése, hűtése fan-coil rendszerrel megoldott, kiegészítve padlófűtéssel.
A lakás elhelyezkedése verhetetlen: a Belváros szívében, ahonnan könnyedén elérhető a város bármely pontja.
A magas emelet garantálja a nyugalmat.
A lakást korábban rövid távú kiadással hasznosították, a képek ezt az állapotot tükrözik, jelenleg azonban teljesen üresen várja új tulajdonosát.
A házat 2018-ban álmodták meg a korábban itt fekvő ipari épület helyén és kihasználva az adottságokat industrial stílusban alkották újra.
A stílusra jellemző az acélszerkezetek, a nyers beton és a kezeletlen fa használata, ezek visszaköszönnek az itt létrejött lakásokban.
Az eladó ingatlan egy hatalmas nappali, konyhából, tágas fürdőszobából walk-in zuhanyzóval és nagy méretű hálóból áll. A közlekedőben beépített szekrények vannak. A lakás különlegessége a közel 5 méteres faltól-falig húzódó ablak, ahonnan a belvárosra láthatunk rá, a hatalmas belső terek és az osztott, fémkeretes ablakok, ajtók, amelyekkel elválasztják ezt a teret.
Fűtése, hűtése fan-coil rendszerrel megoldott, kiegészítve padlófűtéssel.
A lakás elhelyezkedése verhetetlen: a Belváros szívében, ahonnan könnyedén elérhető a város bármely pontja.
A magas emelet garantálja a nyugalmat.
A lakást korábban rövid távú kiadással hasznosították, a képek ezt az állapotot tükrözik, jelenleg azonban teljesen üresen várja új tulajdonosát.