Eladó Lakás
Hirdetéskód: 9209655
GDN Ingatlanhálózat - Best Sellers
Felújításhoz személyi kölcsönt keres? Kalkuláljon itt! →96.00 m2
ALAPTERÜLET2
SZOBASZÁMnincs megadva
ÉPÍTÉSGáz (cirkó)
FŰTÉS- CSOK igénybe vehető nem
- Tetőtér beépíthető nem
- Fűtés Gáz (cirkó)
- Klíma nem
- Szigetelt nem
A+++
A++
A+
A
B
C
D
E
F
G
H
I
Az ingatlan leírása
Egyedi, kétszintes luxusotthon a Bazilika szomszédságában – kifinomult elegancia Budapest szívében!
Budapest történelmi központjában, a Szent István Bazilika mellett kínálunk megvételre egy egyedülálló, belső kétszintes luxuslakást, amelyben a nagypolgári stílus és a kortárs design harmonikusan találkozik.
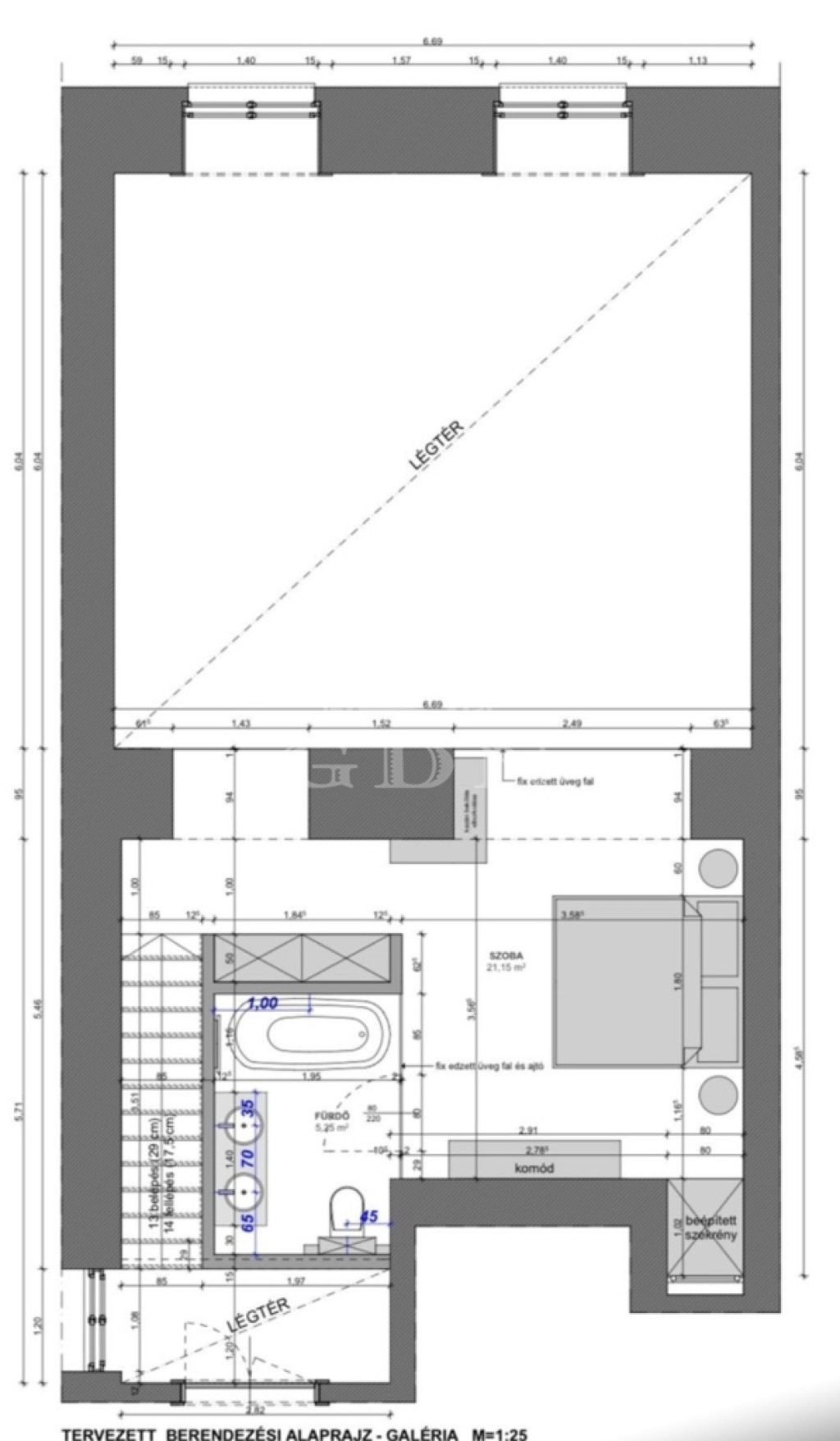
A 96 m²-es lakás tágas terekkel, modern megoldásokkal és gondosan megtervezett részletekkel várja új tulajdonosát. Az alsó szinten világos nappali nyílik az amerikai konyhával és látványos, kerámiaburkolatú konyhaszigettel, továbbá egy hálószoba, zuhanyzós fürdő és nagyméretű előtér található beépített szekrényekkel.
A felső szintre elegáns lépcső vezet, ahol egy privát hálószoba saját fürdővel, vitrines gardróbfal és galériaszerű közlekedő kapott helyet.
A két szintet 20 cm vastag vasbeton födém választja el, így a lakás nemcsak esztétikailag, hanem műszakilag is kifogástalan. A 4,65 méteres belmagasság tágas, levegős atmoszférát teremt, amelyet a gondosan megválasztott anyagok és színek tovább fokoznak.
A teljeskörű felújítás során kizárólag prémium anyagokat alkalmaztak: olasz és spanyol design burkolatok, Roberto Cavalli tapéták, különleges díszítő falfelületek, minőségi diófa bútorok, valamint modern hang- és fényrendszer teszi különlegessé az enteriőrt.
A kényelmet padlófűtés, rejtett klímarendszer (hűtés-fűtés-szellőztetés), 3 rétegű nyílászárók és energiatakarékos LED világítás biztosítják.
A nappali központi eleme a Scavolini konyha és a látványos médiafal, amely tökéletesen illeszkedik az otthon kifinomult stílusához.
A rendezett, patinás társasházban található lakás a főváros egyik legjobb elhelyezkedésével büszkélkedhet: pár lépésre a Bazilika, az Opera, a Duna-part és a belváros legjobb éttermei, kávézói.
Ez az otthon azoknak szól, akik a belvárosi eleganciát, a modern kényelmet és a minőséget keresik egyetlen, stílusos térben.
Kivételes lehetőség Budapest egyik legértékesebb környékén.
Jöjjön el, nézze meg és tegyen ajánlatot!
ID:389567 ...TOVÁBBI, TÖBBEZRES INGATLAN KÍNÁLAT: - GDN azonosító: 389567
Budapest történelmi központjában, a Szent István Bazilika mellett kínálunk megvételre egy egyedülálló, belső kétszintes luxuslakást, amelyben a nagypolgári stílus és a kortárs design harmonikusan találkozik.
A 96 m²-es lakás tágas terekkel, modern megoldásokkal és gondosan megtervezett részletekkel várja új tulajdonosát. Az alsó szinten világos nappali nyílik az amerikai konyhával és látványos, kerámiaburkolatú konyhaszigettel, továbbá egy hálószoba, zuhanyzós fürdő és nagyméretű előtér található beépített szekrényekkel.
A felső szintre elegáns lépcső vezet, ahol egy privát hálószoba saját fürdővel, vitrines gardróbfal és galériaszerű közlekedő kapott helyet.
A két szintet 20 cm vastag vasbeton födém választja el, így a lakás nemcsak esztétikailag, hanem műszakilag is kifogástalan. A 4,65 méteres belmagasság tágas, levegős atmoszférát teremt, amelyet a gondosan megválasztott anyagok és színek tovább fokoznak.
A teljeskörű felújítás során kizárólag prémium anyagokat alkalmaztak: olasz és spanyol design burkolatok, Roberto Cavalli tapéták, különleges díszítő falfelületek, minőségi diófa bútorok, valamint modern hang- és fényrendszer teszi különlegessé az enteriőrt.
A kényelmet padlófűtés, rejtett klímarendszer (hűtés-fűtés-szellőztetés), 3 rétegű nyílászárók és energiatakarékos LED világítás biztosítják.
A nappali központi eleme a Scavolini konyha és a látványos médiafal, amely tökéletesen illeszkedik az otthon kifinomult stílusához.
A rendezett, patinás társasházban található lakás a főváros egyik legjobb elhelyezkedésével büszkélkedhet: pár lépésre a Bazilika, az Opera, a Duna-part és a belváros legjobb éttermei, kávézói.
Ez az otthon azoknak szól, akik a belvárosi eleganciát, a modern kényelmet és a minőséget keresik egyetlen, stílusos térben.
Kivételes lehetőség Budapest egyik legértékesebb környékén.
Jöjjön el, nézze meg és tegyen ajánlatot!
ID:389567 ...TOVÁBBI, TÖBBEZRES INGATLAN KÍNÁLAT: - GDN azonosító: 389567