Eladó Lakás
Hirdetéskód: 9246196
Domus Plusz Partner Kft. (OC)
Felújításhoz személyi kölcsönt keres? Kalkuláljon itt! →66.00 m2
ALAPTERÜLET3
SZOBASZÁMnincs megadva
ÉPÍTÉSnincs megadva
FŰTÉS- CSOK igénybe vehető nem
- Tetőtér beépíthető nem
- Építés éve 1900
- Klíma nem
- Szigetelt nem
A+++
A++
A+
A
B
C
D
E
F
G
H
I
Az ingatlan leírása
Az ingatlan azonnal költözhető, teljes bútorzattal és berendezéssel kerül értékesítésre, így ideális választás saját részre vagy prémium befektetésként.
Alapadatok:
-V.kerület, Garibaldi utca
-2. emelet
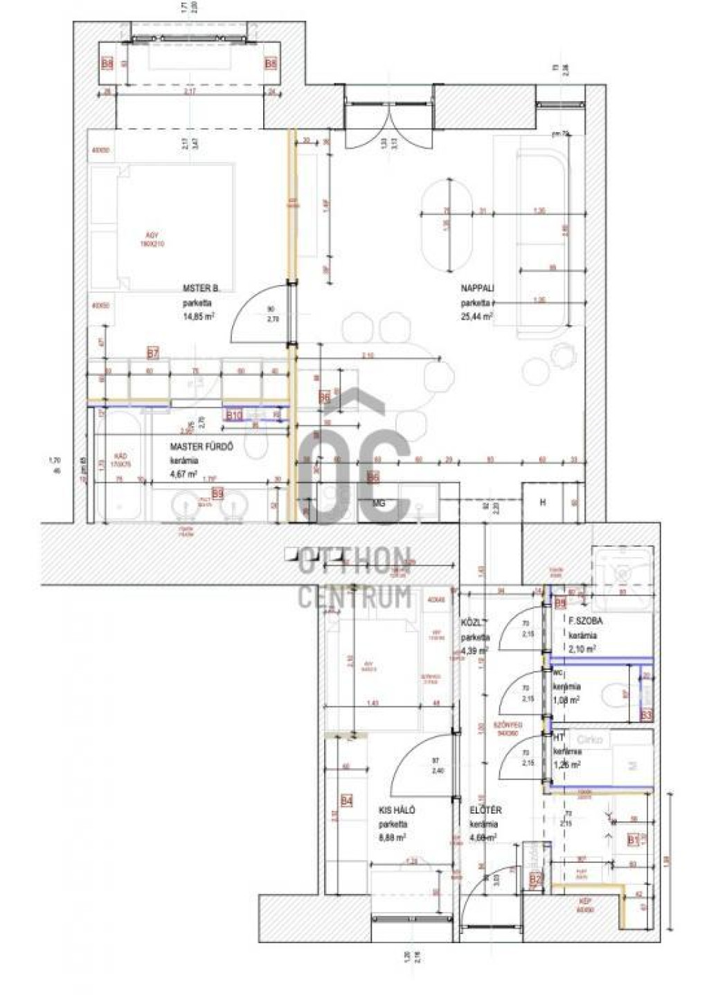
-Alapterület: 67 m²
-Elosztás: amerikai konyhás nappali + 2 hálószoba + 2 fürdő, gardrób, háztartási helyiség
-Épület: szép, karbantartott, liftes, téglaépítésű társasház
Minőség és kialakítás:
-Az ingatlan magas műszaki és esztétikai színvonalon került kialakításra, kizárólag prémium anyagok felhasználásával. A belső tér átgondolt, funkcionális, ugyanakkor elegáns és időtálló.
-Egyedi tervezésű, teljesen felszerelt konyha Bosch gépekkel
-Prémium tölgyfa parketta
-Beépített, egyedileg gyártott bútorok
-Klímaberendezés minden helyiségben
-Elektromos redőnyök
-Bio ethanol kandalló
-Szigetelt fa nyílászárók
-Új beltéri ajtók
-Modern kombi cirkó fűtés
A teljes berendezés a vételár részét képezi, így az ingatlan befektetés nélkül, azonnal használható vagy kiadható.
Elhelyezkedés:
A lakás Budapest egyik legjobb belvárosi utcájában található.
A Duna-part, a Parlament, tömegközlekedési csomópontok, éttermek, kávézók, üzletek és kulturális intézmények néhány perc sétával elérhetők.
Ez a lokáció hosszú távon is kiemelkedően értékálló, bérbeadás esetén pedig magas hozamot biztosít.
Ez az ingatlan ideális választás azok számára, akik:
-kompromisszummentes minőséget keresnek,
-azonnal költözhető, reprezentatív otthont szeretnének,
-vagy biztos, prémium befektetést keresnek Budapest legjobb részén.
Megtekintés és további információk miatt kérem, keressen bizalommal telefonon.
Egyedi igényekre szabott lakáshitelekkel állunk rendelkezésére.
Bankfüggetlen Hitelcentrumunk az országban elérhető összes bank és hitelintézet ajánlatát versenyezteti az Ön számára díjmentesen.
Munkatársaink nagy szakmai tapasztalattal, teljes körű CSOK PLUSZ és OTTHON START PROGRAM ügyintézéssel várják Önt előre egyeztetett időpontban akár a normál munkaidő után is.
Alapadatok:
-V.kerület, Garibaldi utca
-2. emelet
-Alapterület: 67 m²
-Elosztás: amerikai konyhás nappali + 2 hálószoba + 2 fürdő, gardrób, háztartási helyiség
-Épület: szép, karbantartott, liftes, téglaépítésű társasház
Minőség és kialakítás:
-Az ingatlan magas műszaki és esztétikai színvonalon került kialakításra, kizárólag prémium anyagok felhasználásával. A belső tér átgondolt, funkcionális, ugyanakkor elegáns és időtálló.
-Egyedi tervezésű, teljesen felszerelt konyha Bosch gépekkel
-Prémium tölgyfa parketta
-Beépített, egyedileg gyártott bútorok
-Klímaberendezés minden helyiségben
-Elektromos redőnyök
-Bio ethanol kandalló
-Szigetelt fa nyílászárók
-Új beltéri ajtók
-Modern kombi cirkó fűtés
A teljes berendezés a vételár részét képezi, így az ingatlan befektetés nélkül, azonnal használható vagy kiadható.
Elhelyezkedés:
A lakás Budapest egyik legjobb belvárosi utcájában található.
A Duna-part, a Parlament, tömegközlekedési csomópontok, éttermek, kávézók, üzletek és kulturális intézmények néhány perc sétával elérhetők.
Ez a lokáció hosszú távon is kiemelkedően értékálló, bérbeadás esetén pedig magas hozamot biztosít.
Ez az ingatlan ideális választás azok számára, akik:
-kompromisszummentes minőséget keresnek,
-azonnal költözhető, reprezentatív otthont szeretnének,
-vagy biztos, prémium befektetést keresnek Budapest legjobb részén.
Megtekintés és további információk miatt kérem, keressen bizalommal telefonon.
Egyedi igényekre szabott lakáshitelekkel állunk rendelkezésére.
Bankfüggetlen Hitelcentrumunk az országban elérhető összes bank és hitelintézet ajánlatát versenyezteti az Ön számára díjmentesen.
Munkatársaink nagy szakmai tapasztalattal, teljes körű CSOK PLUSZ és OTTHON START PROGRAM ügyintézéssel várják Önt előre egyeztetett időpontban akár a normál munkaidő után is.