Eladó Lakás
Hirdetéskód: 9166217
Gold House Ingatlan- és Hitelcentrum
Felújításhoz személyi kölcsönt keres? Kalkuláljon itt! →101.00 m2
ALAPTERÜLET3
SZOBASZÁMnincs megadva
ÉPÍTÉSHázközponti
FŰTÉS- CSOK igénybe vehető nem
- Belső szintek 6
- Tetőtér beépíthető nem
- Fűtés Házközponti
- Klíma nem
- Szigetelt nem
A+++
A++
A+
A
B
C
D
E
F
G
H
I
Az ingatlan leírása
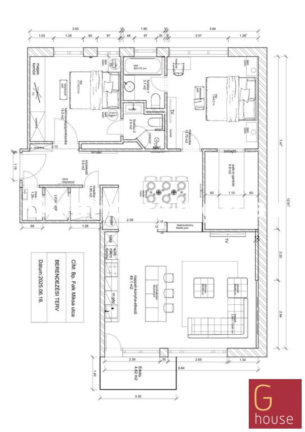
Eladó Budapest V. kerületének közkedvelt részén a Parlamenthez és Duna-parthoz közel, eladó egy 101 m2 nagyságú, 4,5m2 erkélyes, teljesen felújított, minőségi bútorokkal berendezett 3 szobás, mosókonyhás, gardrób szobás lakás!
A lakás 4. emeleti, liftes házban, teljes körűen és kiváló minőségben felújított. Kiváló minőségű egyedileg tervezett és beépített bútorokkal berendezett.
Nappali, 2 háló, 2 fürdő, vendég WC, az egyik hálóból nyíló gardrób szoba, mosókonyha került kialakításra.
A főbb helyiségek utca frontra néznek, a háló helyiségek belső udvarra, mely miatt ezek rendkívül csendesek.
Minőségi Kömmering hő és hangszigetelő nyílászárók,
elektromos redőny,
hőszivattyús klíma minden helyiségben,
Laufen, Hüppe, Grohe szaniterek lettek beépítve a vizes helyiségekben,
a mosókonyhában AEG mosó-, szárítógép,
a konyhában beépített AEG sütő, főzőlap, elszívó, mosogatógép, hűtő van. A konyha olasz prémium bútorokat gyártó cég terméke.
A többi helyiség is kiváló minőségű egyedi és stílusos bútorokkal berendezett.
Padlófűtéses, kondenzációs gázkazánnal, távolról vezérelhető termosztáttal.
A riasztó rendszer ki van építve.
A vételár tartalmazza a teljes bútorzatot, konyhagépeket, mosó-szárító gépet.
A HÁZ
1930-as években épült, igényes és folyamatosan karban tartott külső homlokzattal rendelkezik.
Lifttel rendelkezik.
Van bicikli tárolására is lehetőség.
Barátságos lakóközösség.
A KÖRNYÉK
Budapest központjában, az 5. kerület egyik ikonikus és legszebb utcája.
Hangulatát a múlt és jelen kulturális örökségeit, valamint tárgyi és művészeti értékeit összegyűjtő galériák, üzletek fűszerezik.
A Parlament és a Duna-part séta távolságra, Metró 400m távolságra található.
Galériák, éttermek, kávézók, egyéb szolgáltatás is sétatávolságra találhatók.
Bevásárlási lehetőségek a közelben,
Több park, játszótér is található a közelben.
Kiváló lehetőség akár befektetésnek, kiadásra mind saját használatra, gyermekkel rendelkező családoknak is.
A lakás 4. emeleti, liftes házban, teljes körűen és kiváló minőségben felújított. Kiváló minőségű egyedileg tervezett és beépített bútorokkal berendezett.
Nappali, 2 háló, 2 fürdő, vendég WC, az egyik hálóból nyíló gardrób szoba, mosókonyha került kialakításra.
A főbb helyiségek utca frontra néznek, a háló helyiségek belső udvarra, mely miatt ezek rendkívül csendesek.
Minőségi Kömmering hő és hangszigetelő nyílászárók,
elektromos redőny,
hőszivattyús klíma minden helyiségben,
Laufen, Hüppe, Grohe szaniterek lettek beépítve a vizes helyiségekben,
a mosókonyhában AEG mosó-, szárítógép,
a konyhában beépített AEG sütő, főzőlap, elszívó, mosogatógép, hűtő van. A konyha olasz prémium bútorokat gyártó cég terméke.
A többi helyiség is kiváló minőségű egyedi és stílusos bútorokkal berendezett.
Padlófűtéses, kondenzációs gázkazánnal, távolról vezérelhető termosztáttal.
A riasztó rendszer ki van építve.
A vételár tartalmazza a teljes bútorzatot, konyhagépeket, mosó-szárító gépet.
A HÁZ
1930-as években épült, igényes és folyamatosan karban tartott külső homlokzattal rendelkezik.
Lifttel rendelkezik.
Van bicikli tárolására is lehetőség.
Barátságos lakóközösség.
A KÖRNYÉK
Budapest központjában, az 5. kerület egyik ikonikus és legszebb utcája.
Hangulatát a múlt és jelen kulturális örökségeit, valamint tárgyi és művészeti értékeit összegyűjtő galériák, üzletek fűszerezik.
A Parlament és a Duna-part séta távolságra, Metró 400m távolságra található.
Galériák, éttermek, kávézók, egyéb szolgáltatás is sétatávolságra találhatók.
Bevásárlási lehetőségek a közelben,
Több park, játszótér is található a közelben.
Kiváló lehetőség akár befektetésnek, kiadásra mind saját használatra, gyermekkel rendelkező családoknak is.