Eladó Lakás
Hirdetéskód: 9256729
Szi-We Otthona Kft.
Felújításhoz személyi kölcsönt keres? Kalkuláljon itt! →77.00 m2
ALAPTERÜLET3
SZOBASZÁMnincs megadva
ÉPÍTÉSElektromos
FŰTÉS- CSOK igénybe vehető nem
- Tetőtér beépíthető nem
- Építés éve 1920
- Fűtés Elektromos
- Klíma nem
- Szigetelt nem
A+++
A++
A+
A
B
C
D
E
F
G
H
I
Az ingatlan leírása
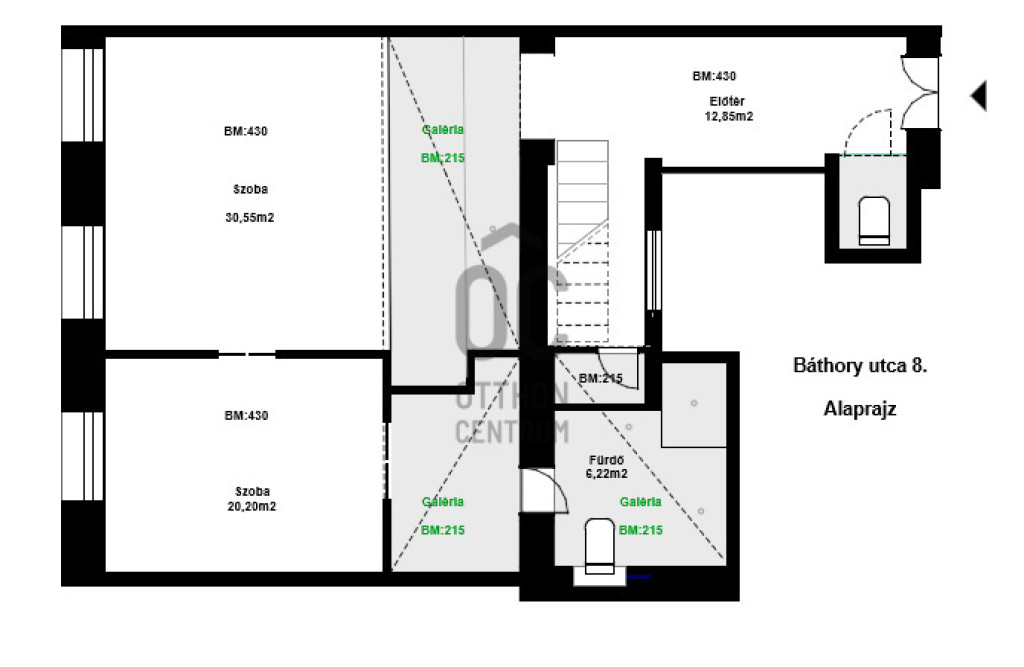
Presztízs és potenciál Lipótváros szívében – galériázható polgári lakás a Báthory utcában
Budapest V. kerületében, Lipótváros elegáns részén, a Báthory utcában eladó egy 77 m²-es, 2 szobás, felújítandó, galériázható lakás klasszikus polgári, liftes társas ház 2. emeletén. Az ingatlan 430 cm belmagassággal rendelkezik, amely kiváló alapot biztosít egy loft jellegű, galériás otthon kialakításához.
A lakás jelenlegi állapotában félkész, további ráfordítást igényel, ugyanakkor az adottságai és az elhelyezkedése miatt komoly értéknövekedési potenciált rejt. Az utcai nézet, a polgári környezet és a belvárosi elhelyezkedés ritka kombinációt alkot.
Az épület historizáló stílusban, 1895 körül épült, patinás homlokzattal és közös terekkel. Az elhelyezkedés központi, mégis nyugodt, minden fontos szolgáltatás, tömegközlekedés, üzletek és kulturális lehetőségek néhány perces sétával elérhetők.
Az ingatlan ideális választás saját otthonnak, home office kialakítására vagy befektetésnek egyaránt.
További információért és megtekintésért várom hívását!
Budapest V. kerületében, Lipótváros elegáns részén, a Báthory utcában eladó egy 77 m²-es, 2 szobás, felújítandó, galériázható lakás klasszikus polgári, liftes társas ház 2. emeletén. Az ingatlan 430 cm belmagassággal rendelkezik, amely kiváló alapot biztosít egy loft jellegű, galériás otthon kialakításához.
A lakás jelenlegi állapotában félkész, további ráfordítást igényel, ugyanakkor az adottságai és az elhelyezkedése miatt komoly értéknövekedési potenciált rejt. Az utcai nézet, a polgári környezet és a belvárosi elhelyezkedés ritka kombinációt alkot.
Az épület historizáló stílusban, 1895 körül épült, patinás homlokzattal és közös terekkel. Az elhelyezkedés központi, mégis nyugodt, minden fontos szolgáltatás, tömegközlekedés, üzletek és kulturális lehetőségek néhány perces sétával elérhetők.
Az ingatlan ideális választás saját otthonnak, home office kialakítására vagy befektetésnek egyaránt.
További információért és megtekintésért várom hívását!