Eladó Lakás
Hirdetéskód: 9252340
Domus Plusz Partner Kft. (OC)
Felújításhoz személyi kölcsönt keres? Kalkuláljon itt! →
Ez a hirdetés megfelelhet a FIX 3%-os programnak.
Tudj meg többet a részletekről itt.
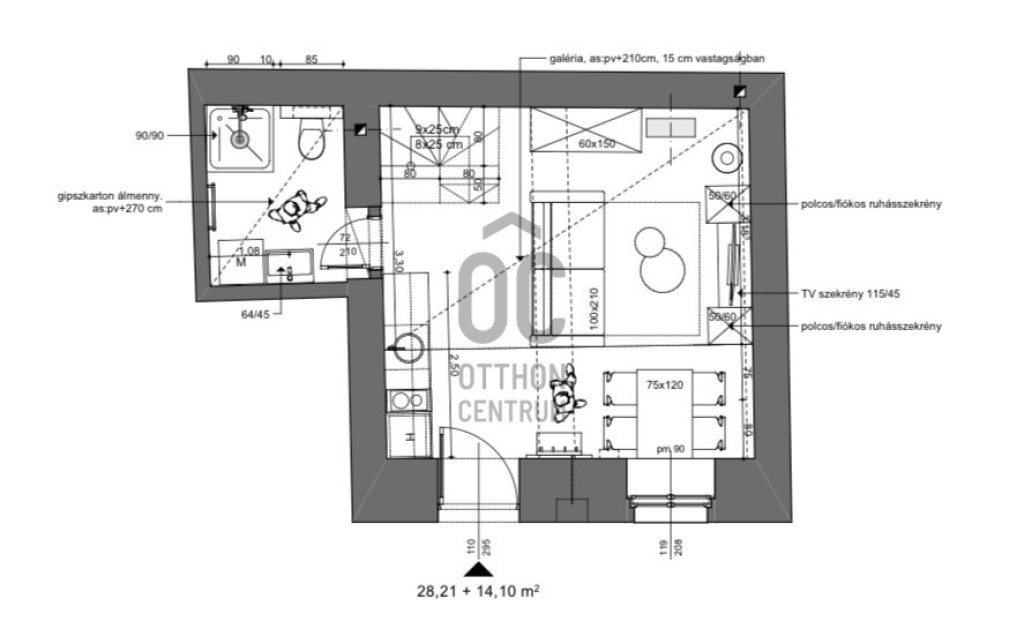
46.00 m2
ALAPTERÜLET1
SZOBASZÁMnincs megadva
ÉPÍTÉSGáz (konvektor)
FŰTÉS- CSOK igénybe vehető nem
- Tetőtér beépíthető nem
- Építés éve 1940
- Fűtés Gáz (konvektor)
- Klíma nem
- Szigetelt nem
A+++
A++
A+
A
B
C
D
E
F
G
H
I
Az ingatlan leírása
Fedezze fel Budapest Lipótvárosában található, kivételes lehetőségeket kínáló, használt lakásunkat, amely tökéletes választás lehet akár első otthonának, akár befektetési céllal történő vásárlásra.
Az ingatlan ,28négyzetméteres alapterületével +18nm állógalériával, ideális választás egyedülállóknak vagy pároknak, akik egy kényelmes, mégis praktikus életteret keresnek a főváros vibráló központjában.
A tulajdoni lapon 28nm.
A lakás egy tágas szobával és egy jól felszerelt fürdőszobával rendelkezik, amely a modern életvitel minden igényét kielégíti.
A lakás állapota kiváló, így azonnal költözhető, a gázkonvektoros fűtés pedig biztosítja a kellemes hőmérsékletet a téli hónapokban is.
Az ingatlan elhelyezkedése páratlan, hiszen a Belváros kulturális és gazdasági központja közelében található, ahol számos étterem, kávézó és üzlet várja Önt.
A környék csendes, biztonságos, így ideális környezetet biztosít a mindennapokhoz.
A közlekedési lehetőségek rendkívül kedvezőek: a közeli tömegközlekedési csomópontoknak köszönhetően könnyedén elérheti Budapest bármely pontját. Legyen szó a metró, busz vagy villamos használatáról, a közlekedés zökkenőmentes és gyors, így Ön mindig időben érkezhet a munkahelyére vagy a szabadidős programjaira.
A lakás a belvárosban, az V. kerületben, a Podmaniczky tér, a Nyugati tér, Szent István Krt., Honvéd tér, bíróságok és minisztériumok közelében helyezkedik el, de a Kossuth tér a Parlament és a Westend is csak néhány percnyi sétára vannak.
BKK megállók a közelben
Villamos: 2,2B,23
Busz:5,7,8E,15,107,108E,110,112,133E
Metró:M1
Éjszakai:907,908,908,908A,956,973,973A
Ez a lakás nem csupán egy ingatlan, hanem egy lehetőség, hogy a főváros szívében élvezhesse a városi élet minden előnyét. A folyamatosan fejlődő környezete, a kulturális programok és a gazdasági lehetőségek teszik ezt a helyet rendkívül vonzóvá.
Befektetési potenciál:
Frekventált elhelyezkedés
Gyorsan kiadható
Értékálló, bármikor gyorsan eladható,
Ajánlom:
Fiatal pároknak, első lakás vásárlóknak
Egyetemistáknak, diákoknak
A befektetőknek is tiszta szívből ajánlom.
Az ingatlan1/1-es tulajdonban van, tehermentes, gyorsan birtokba vehető.
Egyedi igényekre szabott lakáshitelekkel állunk rendelkezésére.
Bankfüggetlen hitelcentrumunk az országban elérhető összes bank és hitelintézet ajánlatát versenyezteti az Ön számára díjmentesen.
Munkatársaink nagy szakmai tapasztalattal várják Önt az előre egyeztetett időpontban akár a normál munkaidő után is.
Bővebb információért és a megtekintéssel kapcsolatban hívjon bizalommal, munkaidő után vagy akár hétvégén
Az energetikai tanúsítvány készítése folyamatban van, amint rendelkezésre áll, úgy azzal a hirdetés frissítésre kerül.
Az ingatlan ,28négyzetméteres alapterületével +18nm állógalériával, ideális választás egyedülállóknak vagy pároknak, akik egy kényelmes, mégis praktikus életteret keresnek a főváros vibráló központjában.
A tulajdoni lapon 28nm.
A lakás egy tágas szobával és egy jól felszerelt fürdőszobával rendelkezik, amely a modern életvitel minden igényét kielégíti.
A lakás állapota kiváló, így azonnal költözhető, a gázkonvektoros fűtés pedig biztosítja a kellemes hőmérsékletet a téli hónapokban is.
Az ingatlan elhelyezkedése páratlan, hiszen a Belváros kulturális és gazdasági központja közelében található, ahol számos étterem, kávézó és üzlet várja Önt.
A környék csendes, biztonságos, így ideális környezetet biztosít a mindennapokhoz.
A közlekedési lehetőségek rendkívül kedvezőek: a közeli tömegközlekedési csomópontoknak köszönhetően könnyedén elérheti Budapest bármely pontját. Legyen szó a metró, busz vagy villamos használatáról, a közlekedés zökkenőmentes és gyors, így Ön mindig időben érkezhet a munkahelyére vagy a szabadidős programjaira.
A lakás a belvárosban, az V. kerületben, a Podmaniczky tér, a Nyugati tér, Szent István Krt., Honvéd tér, bíróságok és minisztériumok közelében helyezkedik el, de a Kossuth tér a Parlament és a Westend is csak néhány percnyi sétára vannak.
BKK megállók a közelben
Villamos: 2,2B,23
Busz:5,7,8E,15,107,108E,110,112,133E
Metró:M1
Éjszakai:907,908,908,908A,956,973,973A
Ez a lakás nem csupán egy ingatlan, hanem egy lehetőség, hogy a főváros szívében élvezhesse a városi élet minden előnyét. A folyamatosan fejlődő környezete, a kulturális programok és a gazdasági lehetőségek teszik ezt a helyet rendkívül vonzóvá.
Befektetési potenciál:
Frekventált elhelyezkedés
Gyorsan kiadható
Értékálló, bármikor gyorsan eladható,
Ajánlom:
Fiatal pároknak, első lakás vásárlóknak
Egyetemistáknak, diákoknak
A befektetőknek is tiszta szívből ajánlom.
Az ingatlan1/1-es tulajdonban van, tehermentes, gyorsan birtokba vehető.
Egyedi igényekre szabott lakáshitelekkel állunk rendelkezésére.
Bankfüggetlen hitelcentrumunk az országban elérhető összes bank és hitelintézet ajánlatát versenyezteti az Ön számára díjmentesen.
Munkatársaink nagy szakmai tapasztalattal várják Önt az előre egyeztetett időpontban akár a normál munkaidő után is.
Bővebb információért és a megtekintéssel kapcsolatban hívjon bizalommal, munkaidő után vagy akár hétvégén
Az energetikai tanúsítvány készítése folyamatban van, amint rendelkezésre áll, úgy azzal a hirdetés frissítésre kerül.