Eladó Lakás
Hirdetéskód: 9314241
Domus Plusz Partner Kft. (OC)
Felújításhoz személyi kölcsönt keres? Kalkuláljon itt! →40.00 m2
ALAPTERÜLET1
SZOBASZÁMnincs megadva
ÉPÍTÉSHázközponti
FŰTÉS- CSOK igénybe vehető nem
- Tetőtér beépíthető nem
- Építés éve 1980
- Fűtés Házközponti
- Klíma nem
- Szigetelt nem
A+++
A++
A+
A
B
C
D
E
F
G
H
I
Az ingatlan leírása
Képzeld el, hogy valaki jobbat tervezett mint amit kitalálnál. Minden új, minden szép és minden készen van. Csak arra vár, hogy birtokba vedd. Tévedsz ha azt gondolod, hogy eladásra készült, akkor nem költöttek volna rá ennyit. Da van olyan, hogy az élet másként alakul,és ez teremti a különleges lehetőségeket.
Lehet hogy Te leszel az, akinek 40 m2-en is van elegendő tárolóhelye? Akinek egyedi tervek alapján készült bútorai lesznek? Aki érzi hogy az egész lakását körülöleli az ergonómia,a színek harmóniája és a kényelem. Ahová jó megérkezni , de ha elmész otthonról, akkor is minden közel van. A Dunapart, a bevásárlás, a közlekedés, vagy a szórakozás.
És mindezt egy liftes, rendezett ház 7. emeletén találod, ahol a magasság csendet, fényt és egy kis plusz panorámát is jelent. A lakás így nemcsak komfortos, hanem kimondottan kellemes hangulatú .
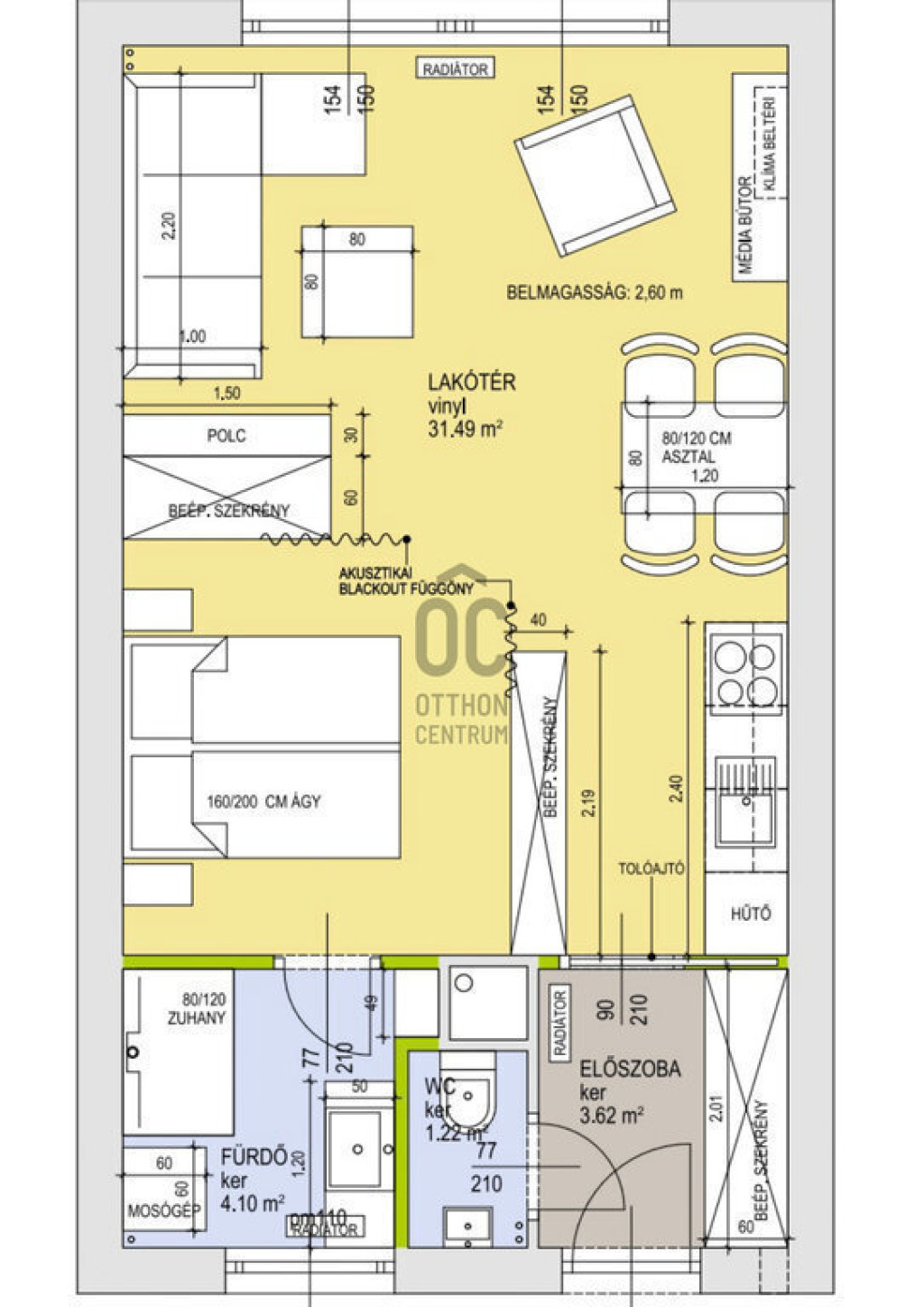
Az előszobába lépve hatalmas tükrös gardrob fogad, ami nemcsak befogad minden kabátot és cipőt, hanem tágas térérzetet ad mindjárt a megérkezéskor. Balra a mosdó aminek hangulatos design csempéje üde színeket ad a helyiségnek. Szemben tovább haladva a gépesített konyhába érkezünk , amely az egész lakás egyedileg gyártott bútoraihoz hasonlóan törtfehér és finom zöld színekben lett kialakítva. A lakás tulajdonképpen egyterű, de a belsőépítész által tervezett bútorok körbehatárolják a konyhát, illetve egy hálószobát, ahol a hatalmas, 180 cm széles kényelmes ágy kapott helyet. A hálóból nyílik a zuhanyzós és ablakos fürdőszoba , ahol mosó-szárítógép is helyet kapott, melynek segítségével nem kell a lakásban ruhaszárítót kerülgetni. Aki már lakott kis lakásban, tudja milyen fontos ez.
A nappaliban kényelmes kanapé, led világításos könyvespolc, melynek hátsó oldala a háló gardróbja , és kényelmes méretű étkezőasztal kapott helyet.
A lakás klimatizált.A közös költség mindössze 28.000 Ft, amely magában foglalja a fűtést, valamint a hideg- és melegvíz-fogyasztást is.
A megjelölt vételáron felül a bútorzat és háztartási gépek ára 7M Ft,melyek a lakással együtt kerülnek értékesítésre.
Ha a belvárosba költöznél, vagy csak kell egy hely a belvárosban is, amivel nincs gond, ami mindenben a kényelmedre törekszik és ahová tényleg csak a bőröndödet kell hozni,hívj és nézzük meg együtt!
Lehet hogy Te leszel az, akinek 40 m2-en is van elegendő tárolóhelye? Akinek egyedi tervek alapján készült bútorai lesznek? Aki érzi hogy az egész lakását körülöleli az ergonómia,a színek harmóniája és a kényelem. Ahová jó megérkezni , de ha elmész otthonról, akkor is minden közel van. A Dunapart, a bevásárlás, a közlekedés, vagy a szórakozás.
És mindezt egy liftes, rendezett ház 7. emeletén találod, ahol a magasság csendet, fényt és egy kis plusz panorámát is jelent. A lakás így nemcsak komfortos, hanem kimondottan kellemes hangulatú .
Az előszobába lépve hatalmas tükrös gardrob fogad, ami nemcsak befogad minden kabátot és cipőt, hanem tágas térérzetet ad mindjárt a megérkezéskor. Balra a mosdó aminek hangulatos design csempéje üde színeket ad a helyiségnek. Szemben tovább haladva a gépesített konyhába érkezünk , amely az egész lakás egyedileg gyártott bútoraihoz hasonlóan törtfehér és finom zöld színekben lett kialakítva. A lakás tulajdonképpen egyterű, de a belsőépítész által tervezett bútorok körbehatárolják a konyhát, illetve egy hálószobát, ahol a hatalmas, 180 cm széles kényelmes ágy kapott helyet. A hálóból nyílik a zuhanyzós és ablakos fürdőszoba , ahol mosó-szárítógép is helyet kapott, melynek segítségével nem kell a lakásban ruhaszárítót kerülgetni. Aki már lakott kis lakásban, tudja milyen fontos ez.
A nappaliban kényelmes kanapé, led világításos könyvespolc, melynek hátsó oldala a háló gardróbja , és kényelmes méretű étkezőasztal kapott helyet.
A lakás klimatizált.A közös költség mindössze 28.000 Ft, amely magában foglalja a fűtést, valamint a hideg- és melegvíz-fogyasztást is.
A megjelölt vételáron felül a bútorzat és háztartási gépek ára 7M Ft,melyek a lakással együtt kerülnek értékesítésre.
Ha a belvárosba költöznél, vagy csak kell egy hely a belvárosban is, amivel nincs gond, ami mindenben a kényelmedre törekszik és ahová tényleg csak a bőröndödet kell hozni,hívj és nézzük meg együtt!