Eladó Lakás
Hirdetéskód: 9307259
OTP Ingatlanpont - Takács Zsuzsanna
Felújításhoz személyi kölcsönt keres? Kalkuláljon itt! →
Ez a hirdetés megfelelhet a FIX 3%-os programnak.
Tudj meg többet a részletekről itt.
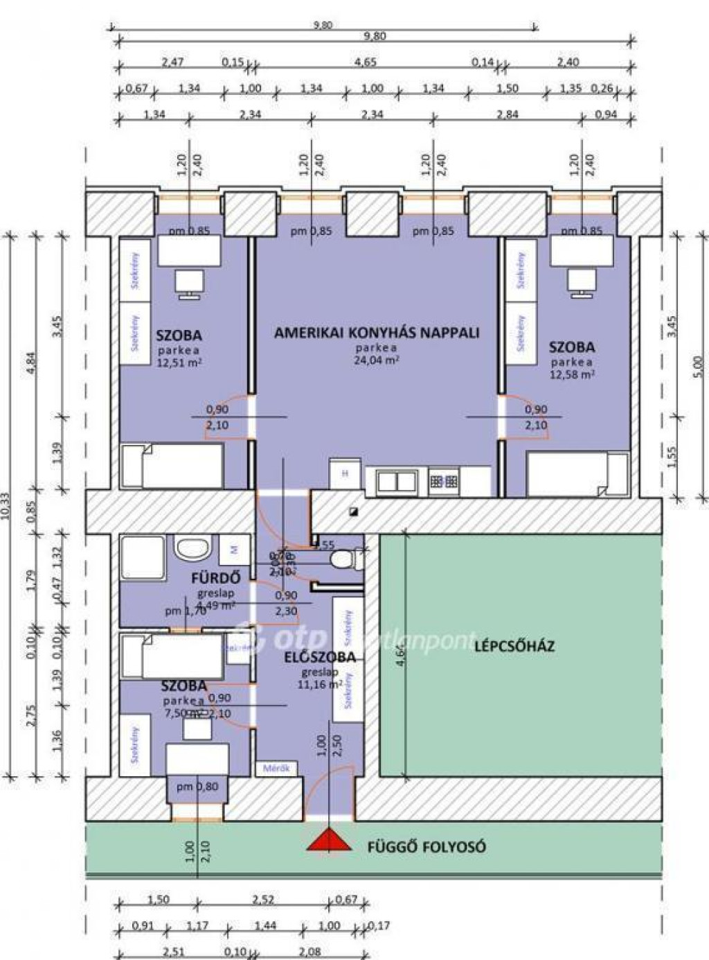
69.00 m2
ALAPTERÜLET3
SZOBASZÁMnincs megadva
ÉPÍTÉSGáz (cirkó)
FŰTÉS- CSOK igénybe vehető nem
- Tetőtér beépíthető nem
- Építés éve 1920
- Fűtés Gáz (cirkó)
- Klíma nem
- Szigetelt nem
A+++
A++
A+
A
B
C
D
E
F
G
H
I
Az ingatlan leírása
Eladó lakás a Kálvin tér közelében - polgári hangulat, tágas terek!!!
Budapest szívében, a Kálvin tér közvetlen közelében eladó egy 72 nm-es, téglaépítésű, polgári lakás, amely a múlt század eleganciáját ötvözi a modern kényelmi megoldásokkal.
A lakás 3 egész szobával és 1 félszobával rendelkezik, a 4,5 méteres belmagasságnak köszönhetően rendkívül tágas és világos tereket biztosít.
A lakás duplakomfortos, gáz-cirkó fűtéssel felszerelt, belső és külső állapota is jó, így azonnal költözhető. Az ingatlan teljesen bútorozott és berendezett.
Nagy előny: jelenleg is megbízható bérlők lakják, akik szívesen maradnának, amennyiben új tulajdonosa befektetési célból vásárolja meg a lakást. Ez biztos, azonnali és folyamatos hozamot jelenthet a leendő befektető számára.
A társasház rendezett, zárt lépcsőházzal rendelkezik, a közös költség mindössze 15.000 Ft. Parkolás közterületen, fizetős zónában lehetséges.
Főbb jellemzők:
72 nm-es téglaépítésű lakás
3 szoba + 1 félszoba
4,5 nm-es belmagasság, polgári hangulat
Duplakomfort, gáz-cirkó fűtés
Bútorozott, azonnal költözhető
Jó állapotban, rendezett társasház
Stabil, bent lakó bérlők, biztos hozam befektetőknek
Kiváló közlekedés, Kálvin tér pár perc sétára
Ez a lakás igazi ritkaság a belvárosban: tágas, napfényes, polgári stílusú otthon, amely befektetőknek és saját célra vásárlóknak egyaránt ideális választás.
M313394
Az OTP Ingatlanpont, mint egyetlen közvetlen banki hátterű ingatlanközvetítő társaság teljes körű ügyintézéssel áll az eladók és a vevők rendelkezésére! A kínálatunkból választott ingatlan finanszírozásához minősített fogyasztóbarát, piaci és kedvezményes hitel- és lízingkonstrukciókat kínálunk (lakásvásárlási hitel, CSOK plusz, szabad felhasználású hitel, babaváró hitel, céges hitelek, pályázatok, amennyiben az ügyfél és az ingatlan megfelel a feltételeknek). Az adásvételi szerződés megkötéséhez igény szerint megbízható ügyvédi közreműködést biztosítunk, és segítséget nyújtunk az adásvételhez kapcsolódó egyéb ügyek intézéséhez.
Ha az új ingatlana megvásárlásához a jelenlegi ingatlanát el kell adnia, abban is szívesen segítünk.
Budapest szívében, a Kálvin tér közvetlen közelében eladó egy 72 nm-es, téglaépítésű, polgári lakás, amely a múlt század eleganciáját ötvözi a modern kényelmi megoldásokkal.
A lakás 3 egész szobával és 1 félszobával rendelkezik, a 4,5 méteres belmagasságnak köszönhetően rendkívül tágas és világos tereket biztosít.
A lakás duplakomfortos, gáz-cirkó fűtéssel felszerelt, belső és külső állapota is jó, így azonnal költözhető. Az ingatlan teljesen bútorozott és berendezett.
Nagy előny: jelenleg is megbízható bérlők lakják, akik szívesen maradnának, amennyiben új tulajdonosa befektetési célból vásárolja meg a lakást. Ez biztos, azonnali és folyamatos hozamot jelenthet a leendő befektető számára.
A társasház rendezett, zárt lépcsőházzal rendelkezik, a közös költség mindössze 15.000 Ft. Parkolás közterületen, fizetős zónában lehetséges.
Főbb jellemzők:
72 nm-es téglaépítésű lakás
3 szoba + 1 félszoba
4,5 nm-es belmagasság, polgári hangulat
Duplakomfort, gáz-cirkó fűtés
Bútorozott, azonnal költözhető
Jó állapotban, rendezett társasház
Stabil, bent lakó bérlők, biztos hozam befektetőknek
Kiváló közlekedés, Kálvin tér pár perc sétára
Ez a lakás igazi ritkaság a belvárosban: tágas, napfényes, polgári stílusú otthon, amely befektetőknek és saját célra vásárlóknak egyaránt ideális választás.
M313394
Az OTP Ingatlanpont, mint egyetlen közvetlen banki hátterű ingatlanközvetítő társaság teljes körű ügyintézéssel áll az eladók és a vevők rendelkezésére! A kínálatunkból választott ingatlan finanszírozásához minősített fogyasztóbarát, piaci és kedvezményes hitel- és lízingkonstrukciókat kínálunk (lakásvásárlási hitel, CSOK plusz, szabad felhasználású hitel, babaváró hitel, céges hitelek, pályázatok, amennyiben az ügyfél és az ingatlan megfelel a feltételeknek). Az adásvételi szerződés megkötéséhez igény szerint megbízható ügyvédi közreműködést biztosítunk, és segítséget nyújtunk az adásvételhez kapcsolódó egyéb ügyek intézéséhez.
Ha az új ingatlana megvásárlásához a jelenlegi ingatlanát el kell adnia, abban is szívesen segítünk.