Eladó Lakás
Hirdetéskód: 9256717
Szi-We Otthona Kft.
83.00 m2
ALAPTERÜLET3
SZOBASZÁMnincs megadva
ÉPÍTÉSnincs megadva
FŰTÉS- CSOK igénybe vehető nem
- Tetőtér beépíthető nem
- Építés éve 1900
- Klíma nem
- Szigetelt nem
A+++
A++
A+
A
B
C
D
E
F
G
H
I
Az ingatlan leírása
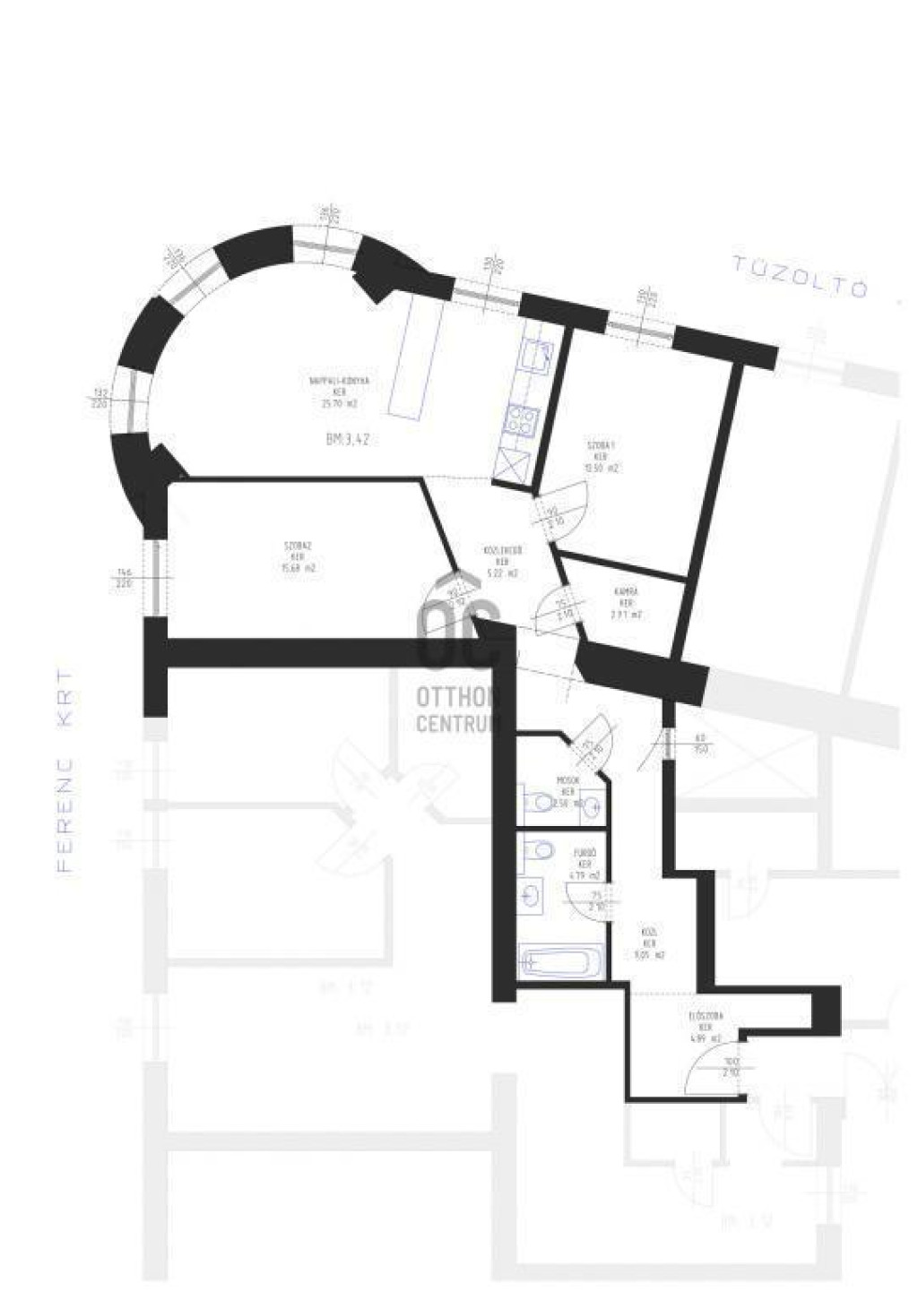
Budapest IX. kerület – Felújított nagypolgári lakás a Ferenc körúton, 83 m², 2 háló + amerikai konyhás nappali
Budapest IX. kerületében, a Ferenc körút egyik legszebb, liftes, 1893-ban épült historizáló bérházának 4. emeletén eladó egy 83 m²-es, teljes körűen felújított lakás. Az utcai nézetű ingatlan 2 hálószobát, amerikai konyhás nappalit, fürdőt és külön mosdót kínál, 330 cm-es belmagassággal és világos terekkel.
Felújítás során prémium anyagok és modern technológia került beépítésre: 3 rétegű üvegezésű műanyag nyílászárók, motoros redőnyök, új gépészet, elektromos hőszivattyús padlófűtés-hűtés, teljesen felszerelt konyha.
A ház historizáló stílusú, liftes, rendezett közösséggel, a közös költség kb. 15.000 Ft.
Kiváló elhelyezkedés: 4-6-os villamos a ház előtt, M3 és M4 metró, számos villamos- és buszjárat, Corvinus, ELTE, BME és SOTE egyetemek közelében. A Duna-part, Ráday utca, Corvin-negyed és Nagy Vásárcsarnok pár perc sétára található.
Ez a lakás nagypolgári eleganciát, modern kényelmet és belvárosi életstílust kínál otthonnak vagy befektetésnek.
Érdeklődés esetén hívjon bizalommal!
Budapest IX. kerületében, a Ferenc körút egyik legszebb, liftes, 1893-ban épült historizáló bérházának 4. emeletén eladó egy 83 m²-es, teljes körűen felújított lakás. Az utcai nézetű ingatlan 2 hálószobát, amerikai konyhás nappalit, fürdőt és külön mosdót kínál, 330 cm-es belmagassággal és világos terekkel.
Felújítás során prémium anyagok és modern technológia került beépítésre: 3 rétegű üvegezésű műanyag nyílászárók, motoros redőnyök, új gépészet, elektromos hőszivattyús padlófűtés-hűtés, teljesen felszerelt konyha.
A ház historizáló stílusú, liftes, rendezett közösséggel, a közös költség kb. 15.000 Ft.
Kiváló elhelyezkedés: 4-6-os villamos a ház előtt, M3 és M4 metró, számos villamos- és buszjárat, Corvinus, ELTE, BME és SOTE egyetemek közelében. A Duna-part, Ráday utca, Corvin-negyed és Nagy Vásárcsarnok pár perc sétára található.
Ez a lakás nagypolgári eleganciát, modern kényelmet és belvárosi életstílust kínál otthonnak vagy befektetésnek.
Érdeklődés esetén hívjon bizalommal!