Eladó Lakás
Hirdetéskód: 9256711
Szi-We Otthona Kft.
155.00 m2
ALAPTERÜLET6
SZOBASZÁMnincs megadva
ÉPÍTÉSnincs megadva
FŰTÉS- CSOK igénybe vehető nem
- Tetőtér beépíthető nem
- Építés éve 1900
- Klíma nem
- Szigetelt nem
A+++
A++
A+
A
B
C
D
E
F
G
H
I
Az ingatlan leírása
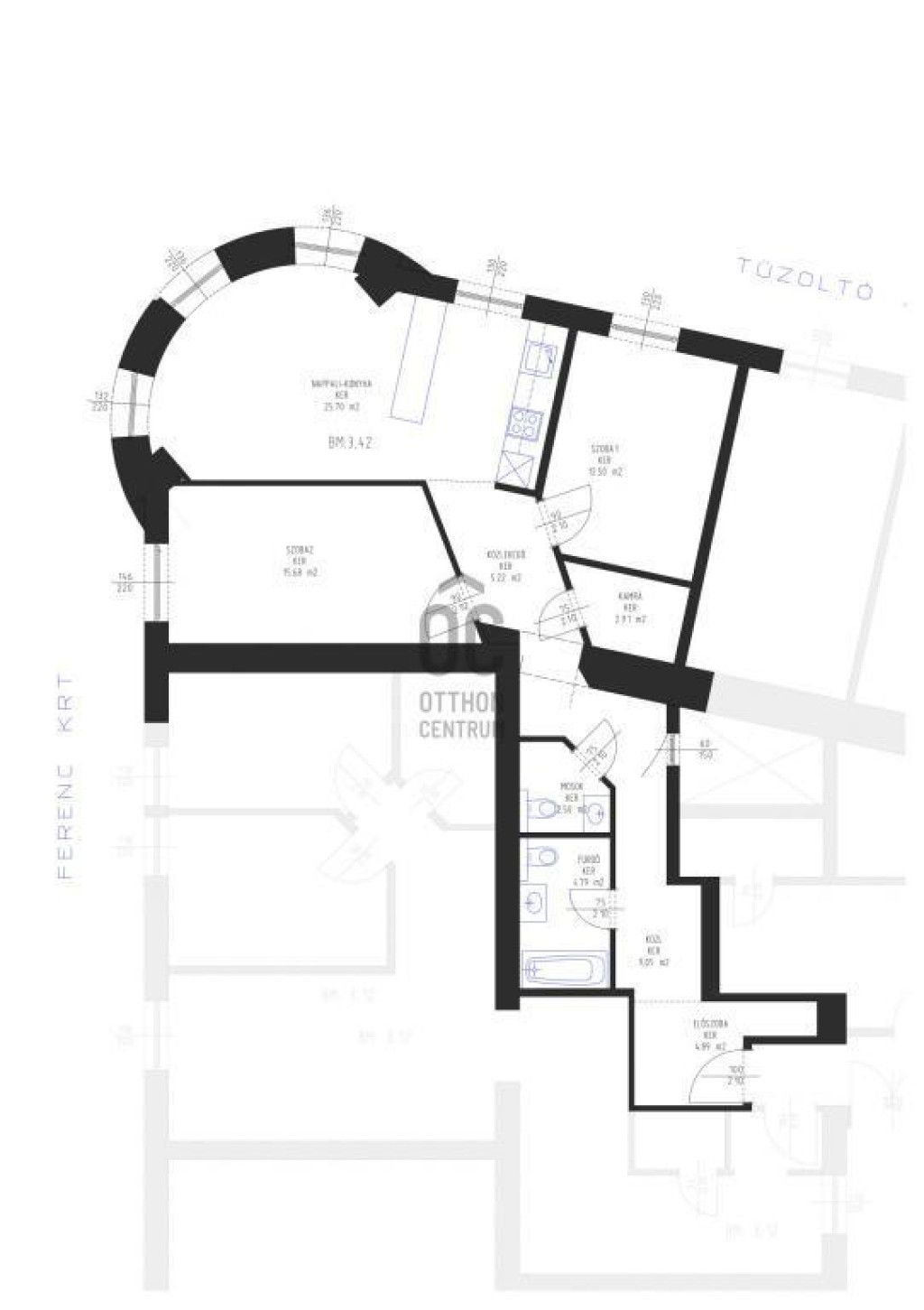
Különleges lehetőség a Ferenc körúton – 155 m², 4 szoba, 2 nappali, két bejárat
Budapest IX. kerületében, a Ferenc körút egyik legszebb, liftes, 1893-ban épült ház 4. emeletén eladó egy 155 m²-es, utcai nézetű, saroklakás, amely két különálló, de könnyen egybenyitható lakásból áll. A lakás 4 hálószobát, 2 amerikai konyhás nappalit, valamint több fürdőt és mellékhelyiséget foglal magában, ideális nagycsaládoknak, kétgenerációs otthonnak vagy prémium befektetésnek.
A lakások teljes körűen felújítottak, 330 cm belmagasság, nagy ablakok, sarokelhelyezkedés. Prémium minőségű anyagok, modern gépészet, hőszivattyús padlófűtés, teljesen gépesített konyhák és motoros redőnyök biztosítják a kényelmet.
A ház historizáló stílusú, 19. századi, jól karbantartott, rendezett közösséggel. A közlekedés kiváló: 4-6-os villamos a ház előtt, M3-M4 metró, számos busz- és trolijárat, a Duna-part, Corvin-negyed és egyetemek 10-15 perc sétára.
Ez az ingatlan ritka kombináció: klasszikus nagypolgári hangulat, modern felújítás és kiemelkedő lokáció.
Érdeklődés esetén hívjon bizalommal!
Budapest IX. kerületében, a Ferenc körút egyik legszebb, liftes, 1893-ban épült ház 4. emeletén eladó egy 155 m²-es, utcai nézetű, saroklakás, amely két különálló, de könnyen egybenyitható lakásból áll. A lakás 4 hálószobát, 2 amerikai konyhás nappalit, valamint több fürdőt és mellékhelyiséget foglal magában, ideális nagycsaládoknak, kétgenerációs otthonnak vagy prémium befektetésnek.
A lakások teljes körűen felújítottak, 330 cm belmagasság, nagy ablakok, sarokelhelyezkedés. Prémium minőségű anyagok, modern gépészet, hőszivattyús padlófűtés, teljesen gépesített konyhák és motoros redőnyök biztosítják a kényelmet.
A ház historizáló stílusú, 19. századi, jól karbantartott, rendezett közösséggel. A közlekedés kiváló: 4-6-os villamos a ház előtt, M3-M4 metró, számos busz- és trolijárat, a Duna-part, Corvin-negyed és egyetemek 10-15 perc sétára.
Ez az ingatlan ritka kombináció: klasszikus nagypolgári hangulat, modern felújítás és kiemelkedő lokáció.
Érdeklődés esetén hívjon bizalommal!