Eladó Lakás
Hirdetéskód: 9258899

GDN Ingatlanhálózat - Harmónia

Felújításhoz személyi kölcsönt keres? Kalkuláljon itt! →
FIX 3% Program

Ez a hirdetés megfelelhet a FIX 3%-os programnak.
Tudj meg többet a részletekről itt.

84.00 m2
ALAPTERÜLET
3
SZOBASZÁM
nincs megadva
ÉPÍTÉS
Gáz (cirkó)
FŰTÉS
  • CSOK igénybe vehető nem
  • Tetőtér beépíthető nem
  • Fűtés Gáz (cirkó)
  • Klíma nem
  • Szigetelt nem
Energetikai besorolás: Nincs meghatározva
A+++
A++
A+
A
B
C
D
E
F
G
H
I

Az MBH Bank személyi kölcsön ajánlata

Fizetett hirdetés
1 millió Ft
6 évre
20 585 Ft/hó
THM: 14.5%
Részletek →
2 millió Ft
6 évre
41 169 Ft/hó
THM: 14.5%
Részletek →
3 millió Ft
6 évre
61 754 Ft/hó
THM: 14.5%
Részletek →

A tájékoztatás nem teljes körű és nem minősül ajánlattételnek.

Az ingatlan leírása

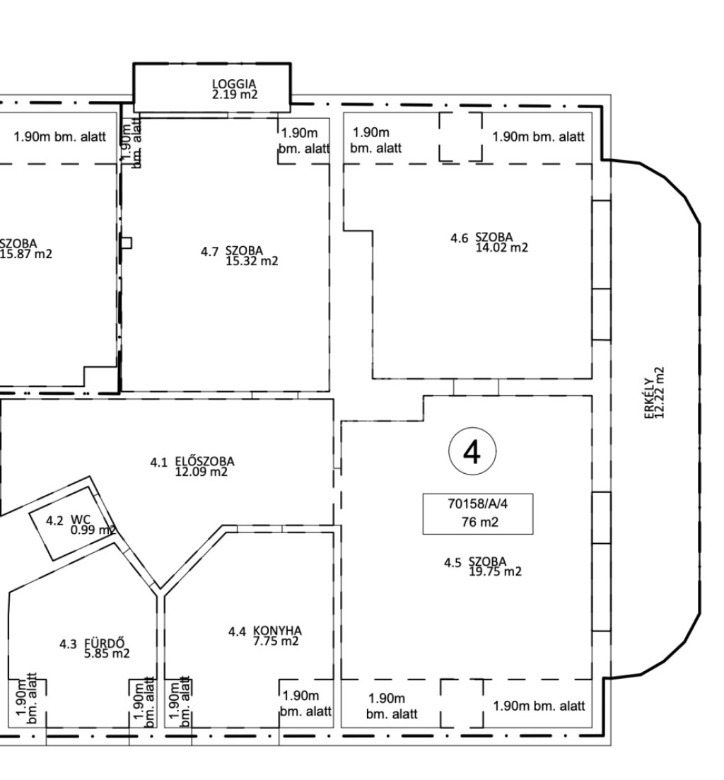
IV. kerületben, a Deák Ferenc utcában eladó egy 84 m2-es, ERKÉLYES (14 m2), 3 szobás, CSENDES, VILÁGOS, jó állapotú lakás.

A 2010-ben épült 5 lakásos társasház 1 emeletes.

A lakás főbb jellemzői:

- TEHERMENTES
- kitűnő beosztású
- 2 erkélyes
- zárt lépcsőház
- alacsony rezsi
- minden egyedileg mérhető
- ablakos konyhás

Fűtése: gáz cirkó

Közelben: Újpesti piac, bevásárlási lehetőségek, óvoda, iskola, bankok, posta, gyógyszertár stb.

Közlekedés: kiváló (Újpest központ 10 perc sétára)

További részletekért, hívjon bizalommal!
K.M.

#nemfix3% ...TOVÁBBI, TÖBBEZRES INGATLAN KÍNÁLAT: - GDN azonosító: 392155

Térkép

Ingatlan adásvétel ügyvédi díja
359 550 Ft
a hirdetésben szereplő ár alapján
  • A vételár 0,45%-a
  • Szerződéscsomag teljeskörű képviselettel
  • Ingyenes tulajdoni lap ellenőrzés
  • Az ÁFA-t már tartalmazza
Érdekel az ajánlat →
A tájékoztatás nem teljes körű és nem minősül ajánlattételnek. Minimum díj: 150 000 Ft, maximum díj: 600 000 Ft. A díj kizárólag lakóingatlan adásvételére vonatkozik.

A hirdető elérhetősége

GDN Ingatlanhálózat - Harmónia

Kiss Márk
+36 30 884