Eladó Lakás
Hirdetéskód: 9255041
Benefit Line (OC)
Ez a hirdetés megfelelhet a FIX 3%-os programnak.
Tudj meg többet a részletekről itt.
57.00 m2
ALAPTERÜLET3
SZOBASZÁMnincs megadva
ÉPÍTÉSnincs megadva
FŰTÉS- CSOK igénybe vehető nem
- Tetőtér beépíthető nem
- Építés éve 1978
- Klíma nem
- Szigetelt nem
A+++
A++
A+
A
B
C
D
E
F
G
H
I
Az ingatlan leírása
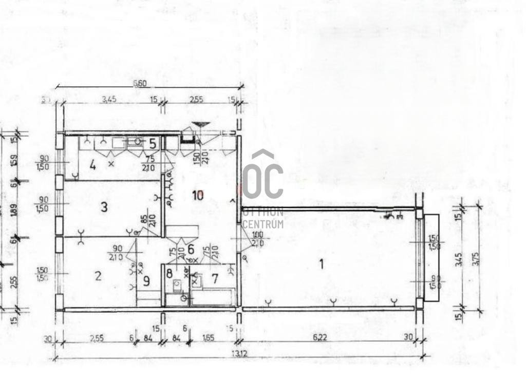
Panorámás, 3 szobás lakás Békásmegyer hegy felőli oldalán
Békásmegyer hegy felőli oldalán, a lakótelep szélén található ez az 5. emeleti, jó elrendezésű, 3 szobás lakás. Az épület elhelyezkedésének köszönhetően az ingatlan mind északi, mind déli irányban szabad kilátással rendelkezik: észak felé a budakalászi dombokra, déli oldalon parkos környezetre néz.
A lakás É–D-i tájolású, világos, jól átszellőztethető. Elosztása praktikus: a tágas étkezőből nyílik minden helyiség. A nagyméretű nappali kényelmes életteret biztosít, míg a két hálószoba a fürdőszobával és a külön WC-vel elkülönül a nappali résztől. A konyha világos, jól pakolható, a lakás több beépített szekrénnyel rendelkezik, amelyek a vételár részét képezik.
Az ingatlan az elmúlt években több felújításon esett át: az elektromos hálózat cseréje megtörtént, a konyha és a fürdőszoba, valamint a burkolatok körülbelül 8 éve megújultak. A műanyag nyílászárók redőnnyel és szúnyoghálóval felszereltek.
A fűtés távhővel, egyedi méréssel megoldott, a lakás jó hőtartása miatt a rezsi kedvező. A hűtésről klímaberendezés gondoskodik. A közös költség 16.000 Ft.
A környék ellátottsága kiváló: orvosi rendelő, patika, óvoda, iskola és bevásárlási lehetőségek néhány perc sétával elérhetők, a tömegközlekedés gyors és kényelmes.
Az ingatlan ideális választás fiatal pároknak, családoknak, illetve azok számára, akik zöld környezetben, mégis jó infrastruktúrával rendelkező környéken keresnek otthont.
Megtekintéssel kapcsolatban várom hívását.
Békásmegyer hegy felőli oldalán, a lakótelep szélén található ez az 5. emeleti, jó elrendezésű, 3 szobás lakás. Az épület elhelyezkedésének köszönhetően az ingatlan mind északi, mind déli irányban szabad kilátással rendelkezik: észak felé a budakalászi dombokra, déli oldalon parkos környezetre néz.
A lakás É–D-i tájolású, világos, jól átszellőztethető. Elosztása praktikus: a tágas étkezőből nyílik minden helyiség. A nagyméretű nappali kényelmes életteret biztosít, míg a két hálószoba a fürdőszobával és a külön WC-vel elkülönül a nappali résztől. A konyha világos, jól pakolható, a lakás több beépített szekrénnyel rendelkezik, amelyek a vételár részét képezik.
Az ingatlan az elmúlt években több felújításon esett át: az elektromos hálózat cseréje megtörtént, a konyha és a fürdőszoba, valamint a burkolatok körülbelül 8 éve megújultak. A műanyag nyílászárók redőnnyel és szúnyoghálóval felszereltek.
A fűtés távhővel, egyedi méréssel megoldott, a lakás jó hőtartása miatt a rezsi kedvező. A hűtésről klímaberendezés gondoskodik. A közös költség 16.000 Ft.
A környék ellátottsága kiváló: orvosi rendelő, patika, óvoda, iskola és bevásárlási lehetőségek néhány perc sétával elérhetők, a tömegközlekedés gyors és kényelmes.
Az ingatlan ideális választás fiatal pároknak, családoknak, illetve azok számára, akik zöld környezetben, mégis jó infrastruktúrával rendelkező környéken keresnek otthont.
Megtekintéssel kapcsolatban várom hívását.