Eladó Lakás
Hirdetéskód: 9277453
OTP Ingatlanpont - Budapest IX. ker., Üllői út 21.
Felújításhoz személyi kölcsönt keres? Kalkuláljon itt! →65.00 m2
ALAPTERÜLET3
SZOBASZÁMnincs megadva
ÉPÍTÉSnincs megadva
FŰTÉS- CSOK igénybe vehető nem
- Tetőtér beépíthető nem
- Építés éve 1980
- Klíma nem
- Szigetelt nem
A+++
A++
A+
A
B
C
D
E
F
G
H
I
Az ingatlan leírása
Magas színvonalon felújított, 3. emeleti, panel lakás a Vörösvári úton eladó!
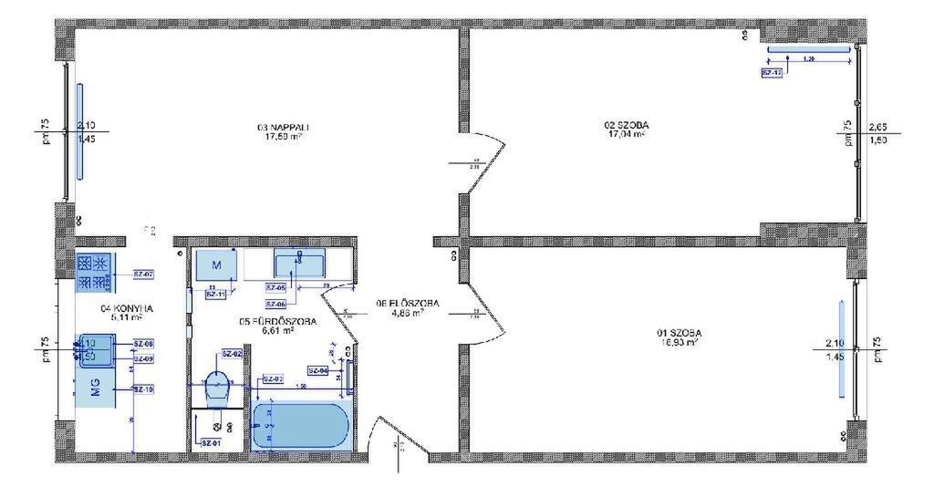
Képzeljen el egy csodálatos, frissen felújított lakást, ahol minden részlet a kényelem és a stílus jegyében készült. A Vörösvári úton található, 69 nm-es, három külön nyíló szobás otthon ideális választás családoknak és befektetőknek egyaránt.
A lakás a 3. emeleten helyezkedik el, világos és az elhelyezkedéséhez képest, a minőségi nyílászáróknak köszönhetően csendes, kilátással a környékre. A lakás belsőépítész által megálmodott, magas színvonalon felújított, így Ön azonnal költözhet és élvezheti az új otthon minden előnyét.
A környék igazi kincs! A Flórián tér mindössze pár percre található, ahol könnyedén elérheti a tömegközlekedést, iskolákat, óvodákat és boltokat, ami nagyban segíti a családi élet szervezését.
A konyha teljesen új, egyedi bútorokkal és beépített Bosch gépekkel van felszerelve, így főzni még sosem volt ennyire élvezetes! A fürdőszoba modern olasz burkolatai és prémium szaniterei pedig a luxus érzetét keltik.
A lakás alacsony rezsijű, hiszen távfűtéses, és minden új elektromos hálózattal, vízvezetékkel és radiátorokkal van ellátva. Ráadásul a közös költség is kedvező, így Önnek csak élveznie kell az új otthonát!
Legyen Ön az első lakója ennek a különleges ingatlannak.
Ne hagyja ki ezt a remek lehetőséget! Hívjon most, és lépjen be álmai otthonába!
Képzeljen el egy csodálatos, frissen felújított lakást, ahol minden részlet a kényelem és a stílus jegyében készült. A Vörösvári úton található, 69 nm-es, három külön nyíló szobás otthon ideális választás családoknak és befektetőknek egyaránt.
A lakás a 3. emeleten helyezkedik el, világos és az elhelyezkedéséhez képest, a minőségi nyílászáróknak köszönhetően csendes, kilátással a környékre. A lakás belsőépítész által megálmodott, magas színvonalon felújított, így Ön azonnal költözhet és élvezheti az új otthon minden előnyét.
A környék igazi kincs! A Flórián tér mindössze pár percre található, ahol könnyedén elérheti a tömegközlekedést, iskolákat, óvodákat és boltokat, ami nagyban segíti a családi élet szervezését.
A konyha teljesen új, egyedi bútorokkal és beépített Bosch gépekkel van felszerelve, így főzni még sosem volt ennyire élvezetes! A fürdőszoba modern olasz burkolatai és prémium szaniterei pedig a luxus érzetét keltik.
A lakás alacsony rezsijű, hiszen távfűtéses, és minden új elektromos hálózattal, vízvezetékkel és radiátorokkal van ellátva. Ráadásul a közös költség is kedvező, így Önnek csak élveznie kell az új otthonát!
Legyen Ön az első lakója ennek a különleges ingatlannak.
Ne hagyja ki ezt a remek lehetőséget! Hívjon most, és lépjen be álmai otthonába!