Eladó Lakás
Hirdetéskód: 9247032
OTP Ingatlanpont Csongrád
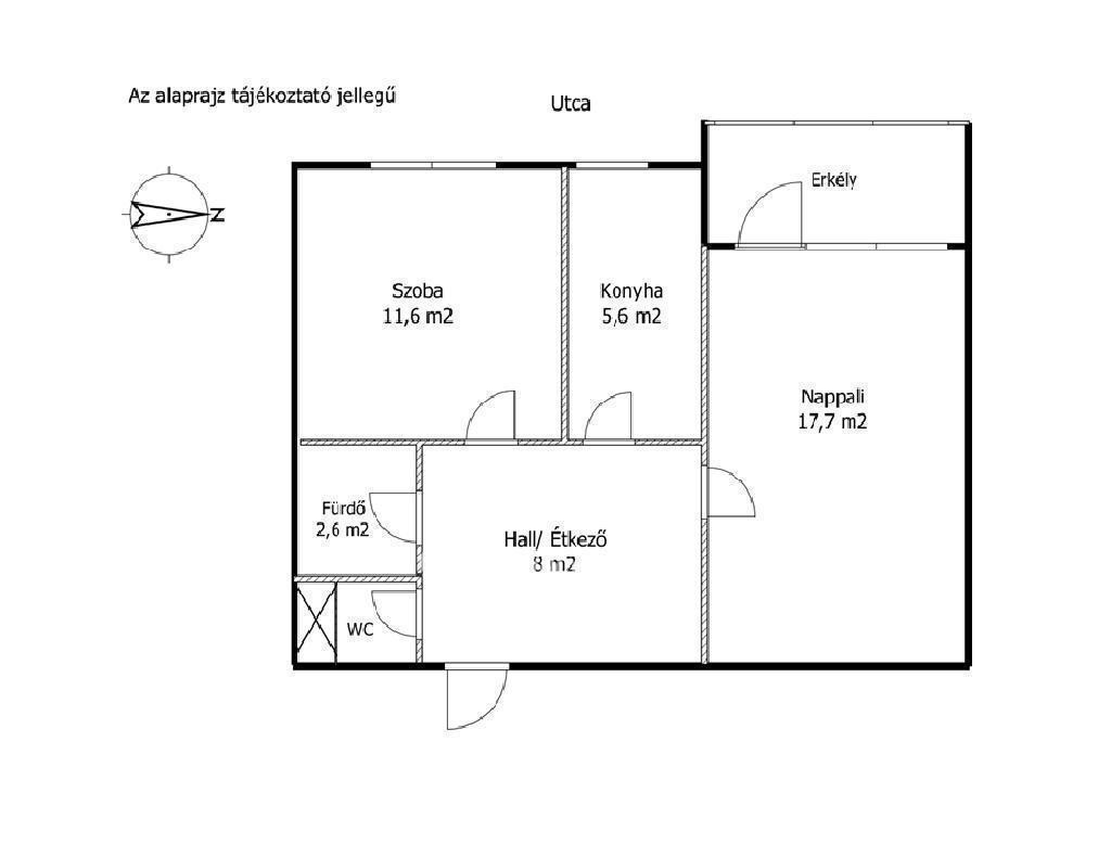
51.00 m2
ALAPTERÜLET2
SZOBASZÁMnincs megadva
ÉPÍTÉSnincs megadva
FŰTÉS- CSOK igénybe vehető nem
- Tetőtér beépíthető nem
- Építés éve 1983
- Klíma nem
- Szigetelt nem
A+++
A++
A+
A
B
C
D
E
F
G
H
I
Az ingatlan leírása
Budapest III. kerületében, Óbuda kedvelt részén eladó egy 51 nm-es, 2 szobás, erkélyes, jó állapotú lakás.
Az ingatlan 9. emeleti, világos, kiváló benapozottságú, az erkélyről és a lakásból részleges kilátás nyílik a Budai-hegyek irányába. A Szentendrei út felőli elhelyezkedés ellenére a lakás csendes, amit a magas emelet és az új, korszerű nyílászárók biztosítanak.
Főbb jellemzők: új nyílászárók redőnyökkel, légkondicionált, praktikus elrendezés, tágas, beépített szekrény, jó műszaki és esztétikai állapot. Az ingatlan karbantartott társasházban, rendezett lakóközösségben található. Üres, azonnal költözhető.
A lakás 1/1 tulajdonban van, tehermentes, jogilag rendezett.
A Flórián tér, Szentlélek tér és a Duna közelsége kiváló infrastruktúrát biztosít: tömegközlekedés, üzletek, szolgáltatások néhány percen belül elérhetők.
Igény esetén külön megvásárolható egy önálló garázs, amely a környéken kifejezetten ritkaságnak számít.
Ez az ingatlan valóban olyan, ahová csak költözni kell ? ideális választás saját otthonnak vagy befektetésnek egyaránt.
Az ingatlan 9. emeleti, világos, kiváló benapozottságú, az erkélyről és a lakásból részleges kilátás nyílik a Budai-hegyek irányába. A Szentendrei út felőli elhelyezkedés ellenére a lakás csendes, amit a magas emelet és az új, korszerű nyílászárók biztosítanak.
Főbb jellemzők: új nyílászárók redőnyökkel, légkondicionált, praktikus elrendezés, tágas, beépített szekrény, jó műszaki és esztétikai állapot. Az ingatlan karbantartott társasházban, rendezett lakóközösségben található. Üres, azonnal költözhető.
A lakás 1/1 tulajdonban van, tehermentes, jogilag rendezett.
A Flórián tér, Szentlélek tér és a Duna közelsége kiváló infrastruktúrát biztosít: tömegközlekedés, üzletek, szolgáltatások néhány percen belül elérhetők.
Igény esetén külön megvásárolható egy önálló garázs, amely a környéken kifejezetten ritkaságnak számít.
Ez az ingatlan valóban olyan, ahová csak költözni kell ? ideális választás saját otthonnak vagy befektetésnek egyaránt.