Eladó Lakás
Hirdetéskód: 9320945
Fővállalkozó Balla és Balla Kft
Felújításhoz személyi kölcsönt keres? Kalkuláljon itt! →65.00 m2
ALAPTERÜLET2
SZOBASZÁMnincs megadva
ÉPÍTÉSHázközponti
FŰTÉS- CSOK igénybe vehető nem
- Tetőtér beépíthető nem
- Fűtés Házközponti
- Klíma nem
- Szigetelt nem
A+++
A++
A+
A
B
C
D
E
F
G
H
I
Az ingatlan leírása
Otthon Start (fix 3%) feltételeknek megfelel!
Eladó egy déli fekvésű, erkélyes, saját kertkapcsolatos, felújított lakás Csillaghegyen, a Duna felőli oldalon.
A lakás 65 m²-es, plusz egy 6 m²-es terasz tartozik hozzá. Ami igazán különlegessé teszi, hogy saját, leválasztott kertje és külön bejárata van, így inkább egy kis ház hangulatát adja, mint egy társasházi lakásét.
A lakásba a saját használatú kertből, külön kapun keresztül lehet bejutni. Kétszintes kialakítású:
•az alsó szinten egy kb. 12 m²-es helyiség található (jelenleg előszobaként használjuk), innen lehet felmenni az emeletre
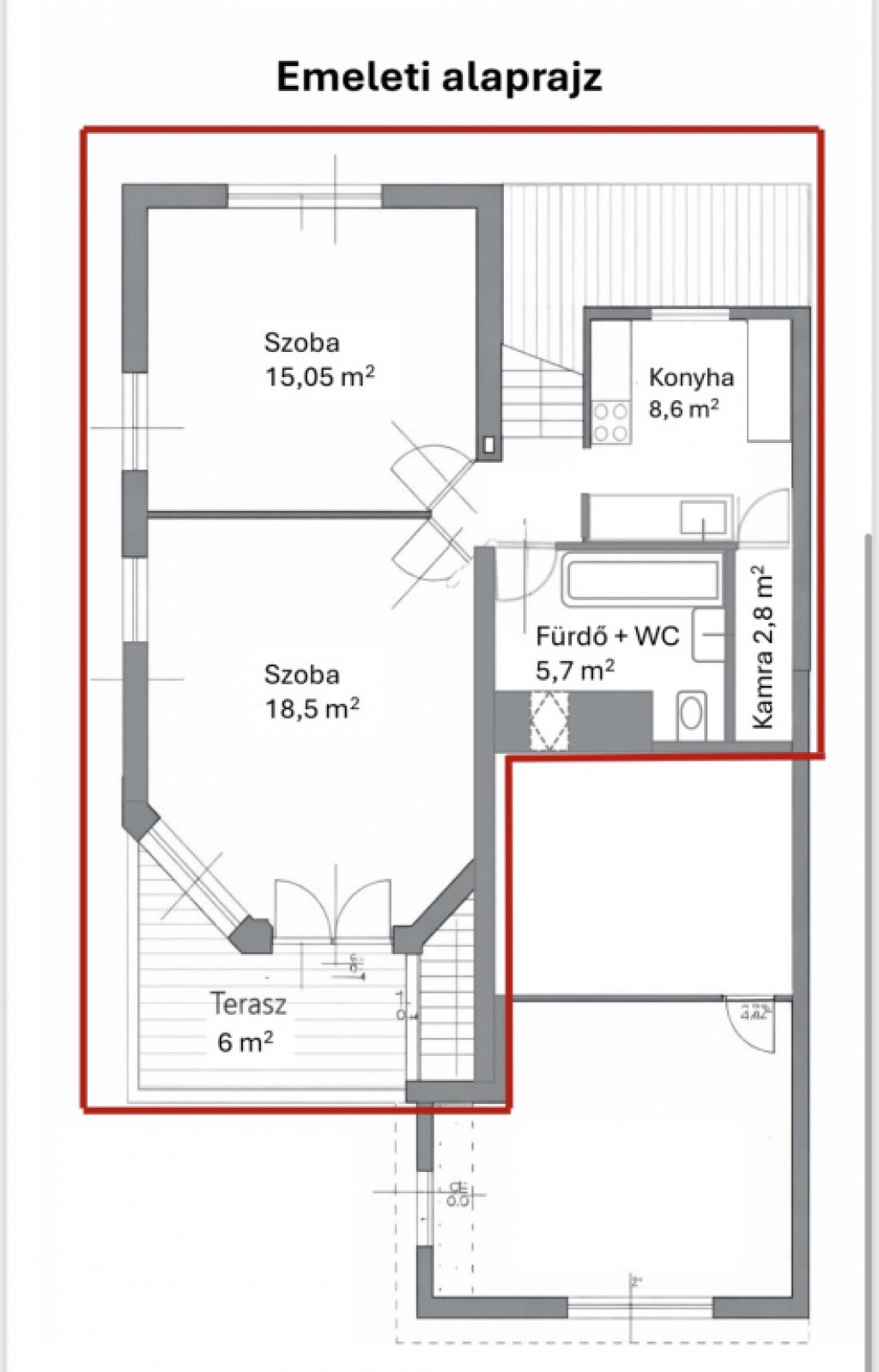
•fent két világos, tágas szoba van (19 és 15 m²), egy nagyobb konyha kamrával (9+3 m²), egy kádas fürdő (6 m²), illetve a déli–délkeleti fekvésű terasz
A lakás jelenleg kétszobás, de könnyen átalakítható háromszobássá.
Egy 4 lakásos, rendezett társasház része, külön helyrajzi számmal. Teljesen önálló közművekkel rendelkezik (víz, villany, gáz külön mérőórával).
A meleg vizet bojler adja, a fűtésről egy tavaly cserélt házközponti gázkazán gondoskodik, lakásonkénti mérővel.
Van klíma és riasztó is, közös költség nincs.
A saját kert mellett a telken belül egy autóbeálló is tartozik hozzá, ami kötelezően megvásárolandó a lakással együtt (ára 6 millió Ft).
Befektetésnek is jó lehet: megegyezés esetén akár vissza is bérelném egy évre, így azonnali bevételt tud hozni.
Eladó egy déli fekvésű, erkélyes, saját kertkapcsolatos, felújított lakás Csillaghegyen, a Duna felőli oldalon.
A lakás 65 m²-es, plusz egy 6 m²-es terasz tartozik hozzá. Ami igazán különlegessé teszi, hogy saját, leválasztott kertje és külön bejárata van, így inkább egy kis ház hangulatát adja, mint egy társasházi lakásét.
A lakásba a saját használatú kertből, külön kapun keresztül lehet bejutni. Kétszintes kialakítású:
•az alsó szinten egy kb. 12 m²-es helyiség található (jelenleg előszobaként használjuk), innen lehet felmenni az emeletre
•fent két világos, tágas szoba van (19 és 15 m²), egy nagyobb konyha kamrával (9+3 m²), egy kádas fürdő (6 m²), illetve a déli–délkeleti fekvésű terasz
A lakás jelenleg kétszobás, de könnyen átalakítható háromszobássá.
Egy 4 lakásos, rendezett társasház része, külön helyrajzi számmal. Teljesen önálló közművekkel rendelkezik (víz, villany, gáz külön mérőórával).
A meleg vizet bojler adja, a fűtésről egy tavaly cserélt házközponti gázkazán gondoskodik, lakásonkénti mérővel.
Van klíma és riasztó is, közös költség nincs.
A saját kert mellett a telken belül egy autóbeálló is tartozik hozzá, ami kötelezően megvásárolandó a lakással együtt (ára 6 millió Ft).
Befektetésnek is jó lehet: megegyezés esetén akár vissza is bérelném egy évre, így azonnali bevételt tud hozni.