Eladó Lakás
Hirdetéskód: 9218480
OTP Ingatlanpont - Budapest IX. ker., Üllői út 21.
77 m2
ALAPTERÜLET3
SZOBASZÁMnincs megadva
ÉPÍTÉSnincs megadva
FŰTÉS- CSOK igénybe vehető nem
- Tetőtér beépíthető nem
- Építés éve 2023
- Klíma nem
- Szigetelt nem
A+++
A++
A+
A
B
C
D
E
F
G
H
I
Az ingatlan leírása
Közel Budapest nyüzsgő központjához, mégis távol a város zajától!
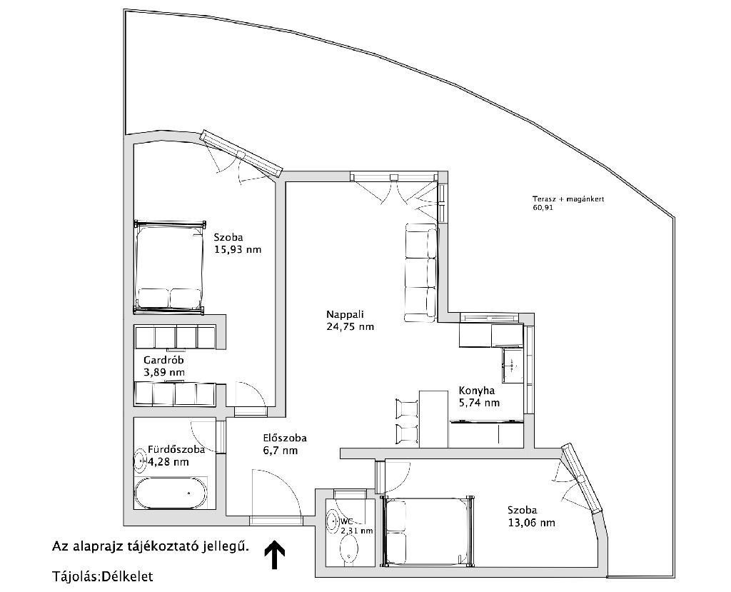
A 3. kerületi Forest Hill lakóparkban eladó egy 77 nm-es, 2 hálószobás, földszinti, örökpanorámás lakás közvetlen kertkapcsolattal.
A tágas, világos, amerikai konyhás nappali délkeleti fekvésű, innen nyílik a 12 nm-es fedett terasz és a saját használatú kert.
A két hálószoba a nappali két oldalán helyezkedik el, így ideális elosztású akár családnak vagy home office-hoz is.
Az egyik háló 16 nm, gardróbszobával és kertkapcsolattal, a másik 13 nm, saját 8,5 nm-es burkolt terasszal rendelkezik.
A fürdőszoba kádas, a WC külön helyiségben található.
A vételár tartalmazza a beépített, teljesen gépesített konyhabútort és a képeken látható bútorokat is.
A lakás minden helyiségében elektromos alumínium redőny található, a nappali légkondicionált.
Fűtése házközponti, egyedi mérőkkel, radiátoros hőleadással.
A közös költség tartalmazza a 40 nm-es saját kert gondozását, vízfogyasztást és a szemétszállítást is.
Igény esetén egy közel 14 nm-es garázs is vásárolható az ingatlanhoz.
Ez a lakás tökéletes választás mindazoknak, akik zöld, csendes környezetre vágynak, mégis elérhető távolságra szeretnének maradni a belvárostól.
Close to the bustling center of Budapest, yet far from the noise of the city!
A 77 sqm, 2-bedroom, ground-floor, panoramic apartment with direct garden access is for sale in the Forest Hill residential park in the 3rd district. The spacious, bright, American-style living room with kitchen is southeast facing, from here you can open up to the 12 sqm covered terrace and the private garden. The two bedrooms are located on either side of the living room, making it an ideal layout for a family or a home office.
One bedroom is 16 sqm, with a wardrobe and garden connection, the other is 13 sqm, with its own 8.5 sqm paved terrace. The bathroom has a bathtub, the toilet is in a separate room.
The purchase price includes the built-in, fully mechanized kitchen furniture and the furniture shown in the pictures. There are electric aluminum shutters in every room of the apartment, the living room is air-conditioned. The heating is central, with individual meters, with radiator heat transfer. The common cost includes the maintenance of the 40 sqm private garden, water consumption and garbage disposal. If desired, a garage of nearly 14 sqm can also be purchased with the property.
This apartment is the perfect choice for all those who want a green, quiet environment, but still want to stay within reach of the city center.
A 3. kerületi Forest Hill lakóparkban eladó egy 77 nm-es, 2 hálószobás, földszinti, örökpanorámás lakás közvetlen kertkapcsolattal.
A tágas, világos, amerikai konyhás nappali délkeleti fekvésű, innen nyílik a 12 nm-es fedett terasz és a saját használatú kert.
A két hálószoba a nappali két oldalán helyezkedik el, így ideális elosztású akár családnak vagy home office-hoz is.
Az egyik háló 16 nm, gardróbszobával és kertkapcsolattal, a másik 13 nm, saját 8,5 nm-es burkolt terasszal rendelkezik.
A fürdőszoba kádas, a WC külön helyiségben található.
A vételár tartalmazza a beépített, teljesen gépesített konyhabútort és a képeken látható bútorokat is.
A lakás minden helyiségében elektromos alumínium redőny található, a nappali légkondicionált.
Fűtése házközponti, egyedi mérőkkel, radiátoros hőleadással.
A közös költség tartalmazza a 40 nm-es saját kert gondozását, vízfogyasztást és a szemétszállítást is.
Igény esetén egy közel 14 nm-es garázs is vásárolható az ingatlanhoz.
Ez a lakás tökéletes választás mindazoknak, akik zöld, csendes környezetre vágynak, mégis elérhető távolságra szeretnének maradni a belvárostól.
Close to the bustling center of Budapest, yet far from the noise of the city!
A 77 sqm, 2-bedroom, ground-floor, panoramic apartment with direct garden access is for sale in the Forest Hill residential park in the 3rd district. The spacious, bright, American-style living room with kitchen is southeast facing, from here you can open up to the 12 sqm covered terrace and the private garden. The two bedrooms are located on either side of the living room, making it an ideal layout for a family or a home office.
One bedroom is 16 sqm, with a wardrobe and garden connection, the other is 13 sqm, with its own 8.5 sqm paved terrace. The bathroom has a bathtub, the toilet is in a separate room.
The purchase price includes the built-in, fully mechanized kitchen furniture and the furniture shown in the pictures. There are electric aluminum shutters in every room of the apartment, the living room is air-conditioned. The heating is central, with individual meters, with radiator heat transfer. The common cost includes the maintenance of the 40 sqm private garden, water consumption and garbage disposal. If desired, a garage of nearly 14 sqm can also be purchased with the property.
This apartment is the perfect choice for all those who want a green, quiet environment, but still want to stay within reach of the city center.