Eladó Lakás
Hirdetéskód: 9311161

ingatlanhirdeto

Felújításhoz személyi kölcsönt keres? Kalkuláljon itt! →
0.00 m2
ALAPTERÜLET
2
SZOBASZÁM
nincs megadva
ÉPÍTÉS
nincs megadva
FŰTÉS
  • CSOK igénybe vehető nem
  • Belső szintek 6
  • Tetőtér beépíthető nem
  • Építés éve 1986
  • Klíma nem
  • Szigetelt nem
Energetikai besorolás: Nincs meghatározva
A+++
A++
A+
A
B
C
D
E
F
G
H
I

Az MBH Bank személyi kölcsön ajánlata

Fizetett hirdetés
1 millió Ft
6 évre
20 585 Ft/hó
THM: 14.5%
Részletek →
2 millió Ft
6 évre
41 169 Ft/hó
THM: 14.5%
Részletek →
3 millió Ft
6 évre
61 754 Ft/hó
THM: 14.5%
Részletek →

A tájékoztatás nem teljes körű és nem minősül ajánlattételnek.

Az ingatlan leírása


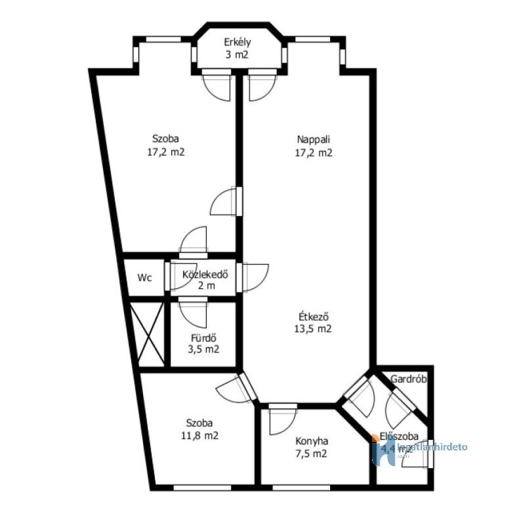
Elhelyezkedése: Társasház Emeleti elhelyezkedés: Emeleten Emelet száma: 4 Épület emeleteinek száma: 6 Tájolása: Keleti tájolású Állapota: Használt - felújítandó Komfort besorolása: összkomfortos Építési éve: 1986 Alapterülete: 78 m2 Szobák száma: 2 + 1 szoba Közművek: Gáz, Víz, Villany, Csatorna Fűtés típusa: Cirkó Homlokzat állapot: átlagos Építési mód: Tégla Tető anyaga: Cserép Parkolási lehetőség: Garázsban Kilátás: Utcafronti kilátás Jellemzői: Alacsony rezsi, Jó közlekedés Energetikai besorolás: Nincs adat Egyéb jellemzők: Erkély Terhelések: Tehermentes ingatlan Eladásra vonatkozó információk: Azonnal beköltözhető
3. kerületben, a Pacsirtamező utcában eladó egy 4. emeleti, felújítandó 78 m2-es, 2 szobás és 1 félszobás, erkélyes (3 m2), világos, tégla lakás.

Az 1986-ban épült tégla társasház 6 emeletes. Lift szolgálja a lakók kényelmét. A lépcsőház karban- és tisztán tartott. Az épület mögött közös kert biztosítja a lakók kikapcsolódását és nyugalmát.

A lakáshoz tartozik a padlás szinten egy 4 m2-es tároló, melyet a vételár tartalmaz.

A lakás főbb jellemzői:
- tehermentes
- azonnal birtokba vehető
- K-i és NY-i fekvés
- ablakos konyha
- fürdőszoba káddal
- külön WC
- minden egyedileg mérhető

Fűtés: cirkó gázkazán

Közös költség: 34.760 Ft/hó

A lakáshoz tartozik az udvarban 1 db külön helyrajzi számmal rendelkező zárható garázs (21 m2), melyeknek ára további 20 M Ft és igény esetén megvásárolható.

Közlekedés: HÉV (H5) buszok (9, 29, 111) villamosok (17, 19, 41) éjszakai járatok (923, 934, 960) pár percen belül elérhetőek

Közelben: bevásárlási lehetőségek, óvoda, iskola, bank, posta, gyógyszertár stb.

További információért kérem, hívjon bizalommal, majd nézze meg személyesen, és tegyen egy ajánlatot!

Térkép

Ingatlan adásvétel ügyvédi díja
445 500 Ft
a hirdetésben szereplő ár alapján
  • A vételár 0,45%-a
  • Szerződéscsomag teljeskörű képviselettel
  • Ingyenes tulajdoni lap ellenőrzés
  • Az ÁFA-t már tartalmazza
Érdekel az ajánlat →
A tájékoztatás nem teljes körű és nem minősül ajánlattételnek. Minimum díj: 150 000 Ft, maximum díj: 600 000 Ft. A díj kizárólag lakóingatlan adásvételére vonatkozik.

A hirdető elérhetősége

ingatlanhirdeto

Árvai István
+36 30 333