Eladó Lakás
Hirdetéskód: 9198864
Dunaharaszti, Dózsa György út 45. (OTPIP)
Ez a hirdetés megfelelhet a FIX 3%-os programnak.
Tudj meg többet a részletekről itt.
73 m2
ALAPTERÜLET2
SZOBASZÁMnincs megadva
ÉPÍTÉSnincs megadva
FŰTÉS- CSOK igénybe vehető nem
- Tetőtér beépíthető nem
- Építés éve 1970
- Klíma nem
- Szigetelt nem
A+++
A++
A+
A
B
C
D
E
F
G
H
I
Az ingatlan leírása
****ELEGÁNS ÓBUDAI ****HITELEZHETŐ LAKÁS*****
Kitűnő ajánlat!!!
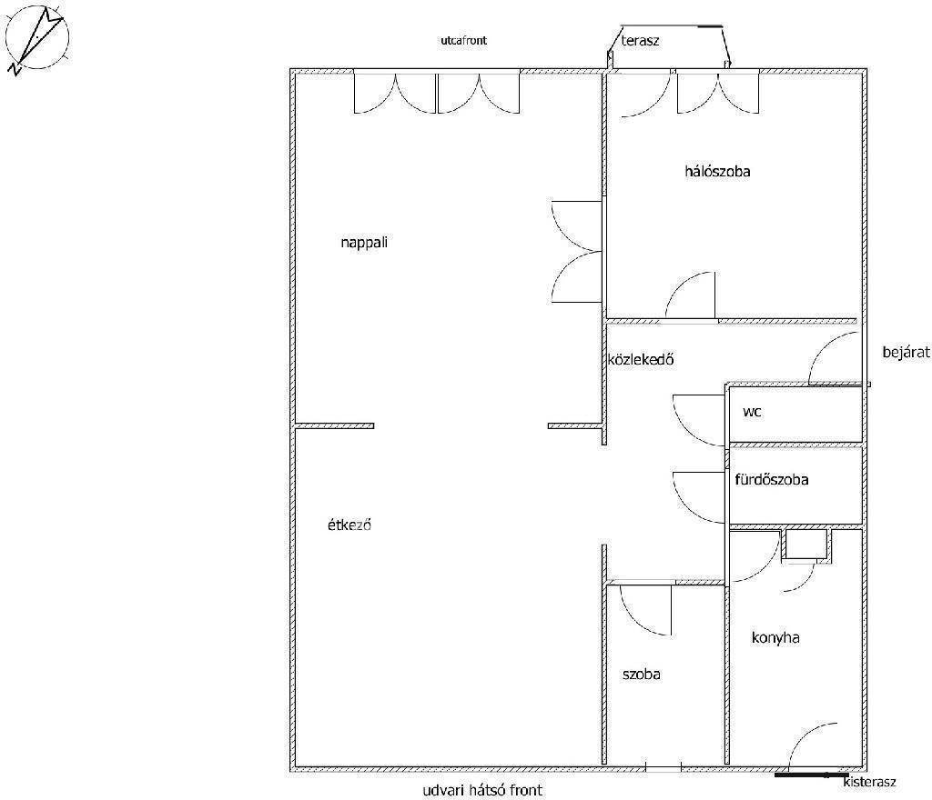
Eladásra kínálok egy elegáns, nagypolgári, 73 m2-es, 2,5 szobás, nagy étkezős, nagy hálószobás, beépített erkélyes, 3 m belmagasságú első emeleti lakást, liftes 4 szintes tégla épületben. A Kolozsi tér közelsége, rendkívül jó lokációt eredményez, a jó szigetelésnek köszönhetően egy csendes, igazi elegáns otthon tárul elénk. Az épület, a lépcsőház, a lift rendezett, az épület hátsó része mögött pedig egy zárt kert várja nagy fákkal, kiülővel a csendes elvonulásra vágyókat.
Biztonsági ajtón keresztül jutunk az ingatlanba, ahol egy mára már letünni készülő kor eleganciájával, korhű bútorzattal, igényes korabeli és folyamatosan megújult családi otthon tárul elénk. Tágas nappali egy külön nagy étkező térrel elválasztva, de mégis egyben. Nem recsegő tölgyfa parketta nagyon jó minőségben, koloniál bútorok, kétoldalas bár, nyitható 6 személyes étkezőgarnitúra nagypolgári stílusban. Egy hatalmas hálószoba, beépített erkéllyel, egy kisebb szoba, külön WC, fürdőszoba káddal és zuhanyfülkével, mosógéppel, modern konyha pár éves nagyon szép konyhabútorral, mosogatógéppel, gáztűzhellyel, elszívóval,valamint egy hideg spejz. A hálóból egy beépített zárt terasz nyílik az utcafrontra, reggeli kávézáshoz kitűnő. A konyhánál is a jó szellőzést egy francia 1 m2-es terasz biztosítja, ami a hátsó kertre néz.
Komfortérzetet a szabályozható radiátorok nyújtanak, redőnyös ablakok, szigetelt falak, télen meleg, nyáron hűvös, és meglepően csendes családi otthon várja leendő tulajdonosát. Kitűnő közlekedés,busz, hév, villamos percekre,minden a bevásárláshoz, a napi élethez adott. Közös költség jelenleg 40.000,- Ft az elvégzett lift korszerűsítés, ill. a tető cseréje miatt. Ez később kevesebb lesz. A többi rezsi kb.30.000,- Ft.
Tisztasági festéssel azonnal költözhető az ingatlan, tehermentes, hitelezhető, 3 % Otthon Start hitelre is!
Teljeskörű hitelügyintézéssel, ügyvédi háttérrel állunk rendelkezésére!
Kérdésével a nap bármely szakában forduljon hozzám bizalommal.
Kitűnő ajánlat!!!
Eladásra kínálok egy elegáns, nagypolgári, 73 m2-es, 2,5 szobás, nagy étkezős, nagy hálószobás, beépített erkélyes, 3 m belmagasságú első emeleti lakást, liftes 4 szintes tégla épületben. A Kolozsi tér közelsége, rendkívül jó lokációt eredményez, a jó szigetelésnek köszönhetően egy csendes, igazi elegáns otthon tárul elénk. Az épület, a lépcsőház, a lift rendezett, az épület hátsó része mögött pedig egy zárt kert várja nagy fákkal, kiülővel a csendes elvonulásra vágyókat.
Biztonsági ajtón keresztül jutunk az ingatlanba, ahol egy mára már letünni készülő kor eleganciájával, korhű bútorzattal, igényes korabeli és folyamatosan megújult családi otthon tárul elénk. Tágas nappali egy külön nagy étkező térrel elválasztva, de mégis egyben. Nem recsegő tölgyfa parketta nagyon jó minőségben, koloniál bútorok, kétoldalas bár, nyitható 6 személyes étkezőgarnitúra nagypolgári stílusban. Egy hatalmas hálószoba, beépített erkéllyel, egy kisebb szoba, külön WC, fürdőszoba káddal és zuhanyfülkével, mosógéppel, modern konyha pár éves nagyon szép konyhabútorral, mosogatógéppel, gáztűzhellyel, elszívóval,valamint egy hideg spejz. A hálóból egy beépített zárt terasz nyílik az utcafrontra, reggeli kávézáshoz kitűnő. A konyhánál is a jó szellőzést egy francia 1 m2-es terasz biztosítja, ami a hátsó kertre néz.
Komfortérzetet a szabályozható radiátorok nyújtanak, redőnyös ablakok, szigetelt falak, télen meleg, nyáron hűvös, és meglepően csendes családi otthon várja leendő tulajdonosát. Kitűnő közlekedés,busz, hév, villamos percekre,minden a bevásárláshoz, a napi élethez adott. Közös költség jelenleg 40.000,- Ft az elvégzett lift korszerűsítés, ill. a tető cseréje miatt. Ez később kevesebb lesz. A többi rezsi kb.30.000,- Ft.
Tisztasági festéssel azonnal költözhető az ingatlan, tehermentes, hitelezhető, 3 % Otthon Start hitelre is!
Teljeskörű hitelügyintézéssel, ügyvédi háttérrel állunk rendelkezésére!
Kérdésével a nap bármely szakában forduljon hozzám bizalommal.