Eladó Lakás
Hirdetéskód: 9328409
OTP Ingatlanpont - Budapest IX. ker., Üllői út 21.
Felújításhoz személyi kölcsönt keres? Kalkuláljon itt! →175.00 m2
ALAPTERÜLET5
SZOBASZÁMnincs megadva
ÉPÍTÉSGáz (cirkó)
FŰTÉS- CSOK igénybe vehető nem
- Tetőtér beépíthető nem
- Építés éve 2010
- Fűtés Gáz (cirkó)
- Klíma nem
- Szigetelt nem
A+++
A++
A+
A
B
C
D
E
F
G
H
I
Az ingatlan leírása
Prémium kialakítású, újszerű állapotú ikerházfél eladó Budapest III. kerületében, a Testvérhegy és Harsánylejtő határán, csendes, zöldövezeti környezetben.
Az ingatlan kertvárosias, alacsony forgalmú utcában található, jól megközelíthető elhelyezkedéssel. A 260-as busz megállója néhány perc sétával elérhető, így a közösségi közlekedés is kényelmesen biztosított.
A négyszintes, önálló helyrajzi számmal rendelkező ikerház 2010-ben épült, majd 2019-ben részleges felújításon esett át. A korszerűsítés során megújult a konyha és a nappali, új burkolatokat kapott a terasz, valamint kialakításra került egy fűthető kültéri medence. Az épület műszaki és esztétikai állapota egyaránt kiváló: a tető hibátlan állapotú, a külső és belső homlokzat szintén.
Főbb paraméterek:
Nettó lakóterület: 175 m2 (bruttó 246 m2)
Telekterület: 450 m2
Szobák száma: 5
Fürdőszobák száma: 3
Elrendezés:
Az alagsorban gépészeti helyiség, háztartási rész, vendégszoba, valamint egy külön wellness tér található szaunával, jakuzzival és sófallal.
A földszinten modern, gépesített konyha, világos nappali-étkező közvetlen teraszkapcsolattal, vízteres kandalló és külön mellékhelyiség került kialakításra.
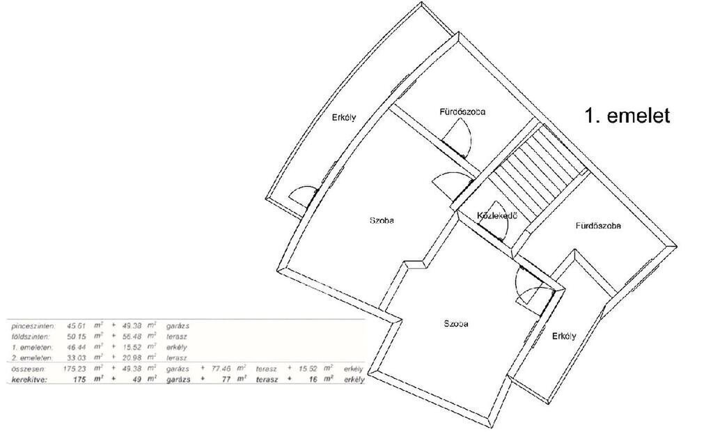
Az első emeleten két hálószoba helyezkedik el, mindkettő saját fürdőszobával és erkéllyel.
A második emeleten egy tágas szülői háló panorámás terasszal, valamint egy további szoba saját fürdőszobával található.
Kert és külső tér:
A kert rendezett, automata öntözőrendszerrel ellátott. A telken helyet kapott egy fűthető kültéri medence nyakzuhannyal, egy fa burkolatú napozóterasz, valamint egy épített kerti főzőhely. A növényzet között termő gyümölcsfák (füge, málna, szőlő) is megtalálhatók.
Műszaki tartalom:
Az ingatlan korszerű gépészeti megoldásokkal felszerelt: 10 kW-os napelemes rendszer és napkollektorok segítik az energiahatékony működést. A fűtést kondenzációs gázkazán, vízteres kandalló és padlófűtés biztosítja, a hálószobák hűtő-fűtő klímával felszereltek. A ház hőszivattyús rendszer fogadására előkészített.
A nyílászárók prémium minőségű Internorm szerkezetek, az épület 15 cm-es hőszigeteléssel rendelkezik. Az árnyékolást elektromos sötétítők biztosítják.
A biztonságot kamerarendszerrel ellátott, távolról vezérelhető kapunyitó rendszer növeli.
Parkolás:
Az ingatlanhoz egy 50 m2-es garázs tartozik, amely több gépjármű elhelyezésére is alkalmas.
Környezet:
A környék csendes, biztonságos, zöldövezeti jellegű. A szomszédság rendezett; a közvetlen szomszéd egy megbízható, együttműködő lakó. A közelben megtalálhatók oktatási intézmények, üzletek, egészségügyi szolgáltatások, valamint kirándulási lehetőségek a környező hegyekben.
Tulajdoni viszonyok és birtokbaadás:
Az ingatlan két tulajdonos birtokában van, mindkét fél egyetért az értékesítésben. Az ingatlan kiürített állapotban van, azonnal birtokba vehető. A vételár a beépített bútorokat tartalmazza.
Referenciaszám: M327871
Az energetikai tanúsítvány készítése folyamatban van, amint rendelkezésre áll, úgy azzal a hirdetés frissítésre kerül.
Az ingatlan kertvárosias, alacsony forgalmú utcában található, jól megközelíthető elhelyezkedéssel. A 260-as busz megállója néhány perc sétával elérhető, így a közösségi közlekedés is kényelmesen biztosított.
A négyszintes, önálló helyrajzi számmal rendelkező ikerház 2010-ben épült, majd 2019-ben részleges felújításon esett át. A korszerűsítés során megújult a konyha és a nappali, új burkolatokat kapott a terasz, valamint kialakításra került egy fűthető kültéri medence. Az épület műszaki és esztétikai állapota egyaránt kiváló: a tető hibátlan állapotú, a külső és belső homlokzat szintén.
Főbb paraméterek:
Nettó lakóterület: 175 m2 (bruttó 246 m2)
Telekterület: 450 m2
Szobák száma: 5
Fürdőszobák száma: 3
Elrendezés:
Az alagsorban gépészeti helyiség, háztartási rész, vendégszoba, valamint egy külön wellness tér található szaunával, jakuzzival és sófallal.
A földszinten modern, gépesített konyha, világos nappali-étkező közvetlen teraszkapcsolattal, vízteres kandalló és külön mellékhelyiség került kialakításra.
Az első emeleten két hálószoba helyezkedik el, mindkettő saját fürdőszobával és erkéllyel.
A második emeleten egy tágas szülői háló panorámás terasszal, valamint egy további szoba saját fürdőszobával található.
Kert és külső tér:
A kert rendezett, automata öntözőrendszerrel ellátott. A telken helyet kapott egy fűthető kültéri medence nyakzuhannyal, egy fa burkolatú napozóterasz, valamint egy épített kerti főzőhely. A növényzet között termő gyümölcsfák (füge, málna, szőlő) is megtalálhatók.
Műszaki tartalom:
Az ingatlan korszerű gépészeti megoldásokkal felszerelt: 10 kW-os napelemes rendszer és napkollektorok segítik az energiahatékony működést. A fűtést kondenzációs gázkazán, vízteres kandalló és padlófűtés biztosítja, a hálószobák hűtő-fűtő klímával felszereltek. A ház hőszivattyús rendszer fogadására előkészített.
A nyílászárók prémium minőségű Internorm szerkezetek, az épület 15 cm-es hőszigeteléssel rendelkezik. Az árnyékolást elektromos sötétítők biztosítják.
A biztonságot kamerarendszerrel ellátott, távolról vezérelhető kapunyitó rendszer növeli.
Parkolás:
Az ingatlanhoz egy 50 m2-es garázs tartozik, amely több gépjármű elhelyezésére is alkalmas.
Környezet:
A környék csendes, biztonságos, zöldövezeti jellegű. A szomszédság rendezett; a közvetlen szomszéd egy megbízható, együttműködő lakó. A közelben megtalálhatók oktatási intézmények, üzletek, egészségügyi szolgáltatások, valamint kirándulási lehetőségek a környező hegyekben.
Tulajdoni viszonyok és birtokbaadás:
Az ingatlan két tulajdonos birtokában van, mindkét fél egyetért az értékesítésben. Az ingatlan kiürített állapotban van, azonnal birtokba vehető. A vételár a beépített bútorokat tartalmazza.
Referenciaszám: M327871
Az energetikai tanúsítvány készítése folyamatban van, amint rendelkezésre áll, úgy azzal a hirdetés frissítésre kerül.