Eladó Lakás
Hirdetéskód: 9311828

OTP Ingatlanpont - Takács Zsuzsanna

Felújításhoz személyi kölcsönt keres? Kalkuláljon itt! →
57.00 m2
ALAPTERÜLET
1
SZOBASZÁM
nincs megadva
ÉPÍTÉS
Távfűtés egyedi méréssel
FŰTÉS
  • CSOK igénybe vehető nem
  • Tetőtér beépíthető nem
  • Építés éve 1978
  • Fűtés Távfűtés egyedi méréssel
  • Klíma nem
  • Szigetelt nem
Energetikai besorolás: Nincs meghatározva
A+++
A++
A+
A
B
C
D
E
F
G
H
I

Az MBH Bank személyi kölcsön ajánlata

Fizetett hirdetés
1 millió Ft
6 évre
20 585 Ft/hó
THM: 14.5%
Részletek →
2 millió Ft
6 évre
41 169 Ft/hó
THM: 14.5%
Részletek →
3 millió Ft
6 évre
61 754 Ft/hó
THM: 14.5%
Részletek →

A tájékoztatás nem teljes körű és nem minősül ajánlattételnek.

Az ingatlan leírása

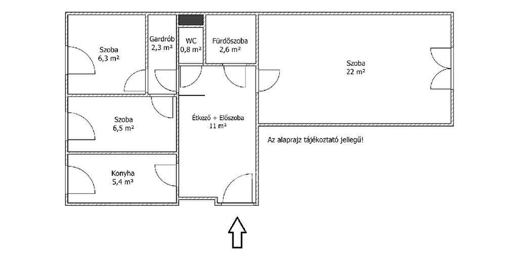
Eladó 57 négyzetméteres jó állapotú negyedik emeleti panellakás a Gyűrű utcában. Kiváló elosztású egy plusz két félszobás nagyon praktikus gardróbbal! Az épület panelprogramban részt vett, homlokzata rendezett. A műanyag ablakok redőnyösek és szobánként egy nyitható ablak rovarhálós. A fűtést és a meleg vizet távhőn kapja a lakás, a radiátorok egyedi mérővel vannak ellátva. A háznak jelentős megtakarítása van így a fejlesztéseket folyamatosan tervezik, a közös költség emelkedése a közeljövőben nem várható. A közelben oktatási intézmények, üzletek és bevásárlóközpont is van, a tömegközlekedés kiváló a környéken. Parkolni a ház előtt kialakított parkolóban lehet közterületen ingyenesen. Ezt a remek elosztású lakást pároknak vagy családosoknak ajánlom elsősorban. Az ingatlan tehermentes, szinte azonnal költözhető! Ha érdekesnek találta jöjjön el és tekintse meg élőben is! Időpont egyeztetéshez hívjon bizalommal!
M324472
Az OTP Ingatlanpont, mint egyetlen közvetlen banki hátterű ingatlanközvetítő társaság teljes körű ügyintézéssel áll az eladók és a vevők rendelkezésére! A kínálatunkból választott ingatlan finanszírozásához minősített fogyasztóbarát, piaci és kedvezményes hitel- és lízingkonstrukciókat kínálunk (lakásvásárlási hitel, CSOK plusz, szabad felhasználású hitel, babaváró hitel, céges hitelek, pályázatok, amennyiben az ügyfél és az ingatlan megfelel a feltételeknek). Az adásvételi szerződés megkötéséhez igény szerint megbízható ügyvédi közreműködést biztosítunk, és segítséget nyújtunk az adásvételhez kapcsolódó egyéb ügyek intézéséhez.
Ha az új ingatlana megvásárlásához a jelenlegi ingatlanát el kell adnia, abban is szívesen segítünk.

Térkép

Ingatlan adásvétel ügyvédi díja
300 600 Ft
a hirdetésben szereplő ár alapján
  • A vételár 0,45%-a
  • Szerződéscsomag teljeskörű képviselettel
  • Ingyenes tulajdoni lap ellenőrzés
  • Az ÁFA-t már tartalmazza
Érdekel az ajánlat →
A tájékoztatás nem teljes körű és nem minősül ajánlattételnek. Minimum díj: 150 000 Ft, maximum díj: 600 000 Ft. A díj kizárólag lakóingatlan adásvételére vonatkozik.

A hirdető elérhetősége

OTP Ingatlanpont - Takács Zsuzsanna

Takács Zsuzsanna
+36 30 495