Eladó Lakás
Hirdetéskód: 9298796
Fővállalkozó Balla és Balla Kft
Felújításhoz személyi kölcsönt keres? Kalkuláljon itt! →
Ez a hirdetés megfelelhet a FIX 3%-os programnak.
Tudj meg többet a részletekről itt.
85.00 m2
ALAPTERÜLET3
SZOBASZÁMnincs megadva
ÉPÍTÉSHázközponti
FŰTÉS- CSOK igénybe vehető nem
- Tetőtér beépíthető nem
- Építés éve 1981
- Fűtés Házközponti
- Klíma nem
- Szigetelt nem
A+++
A++
A+
A
B
C
D
E
F
G
H
I
Az ingatlan leírása
BUDAI TÁGAS, ERKÉLYES PANELLAKÁS ELADÓ!
Megvételre kínálom a közkedvelt III. kerületi Gyógyszergyár úti lakótelepen, egy panel építésű 4 emeletes társasház 3. emeleti lakását!
A hirdetésben szereplő valós képek a jelenlegi állapotot, míg a látványtervek a berendezett lehetőségeket (iroda, kávézó) mutatják be.
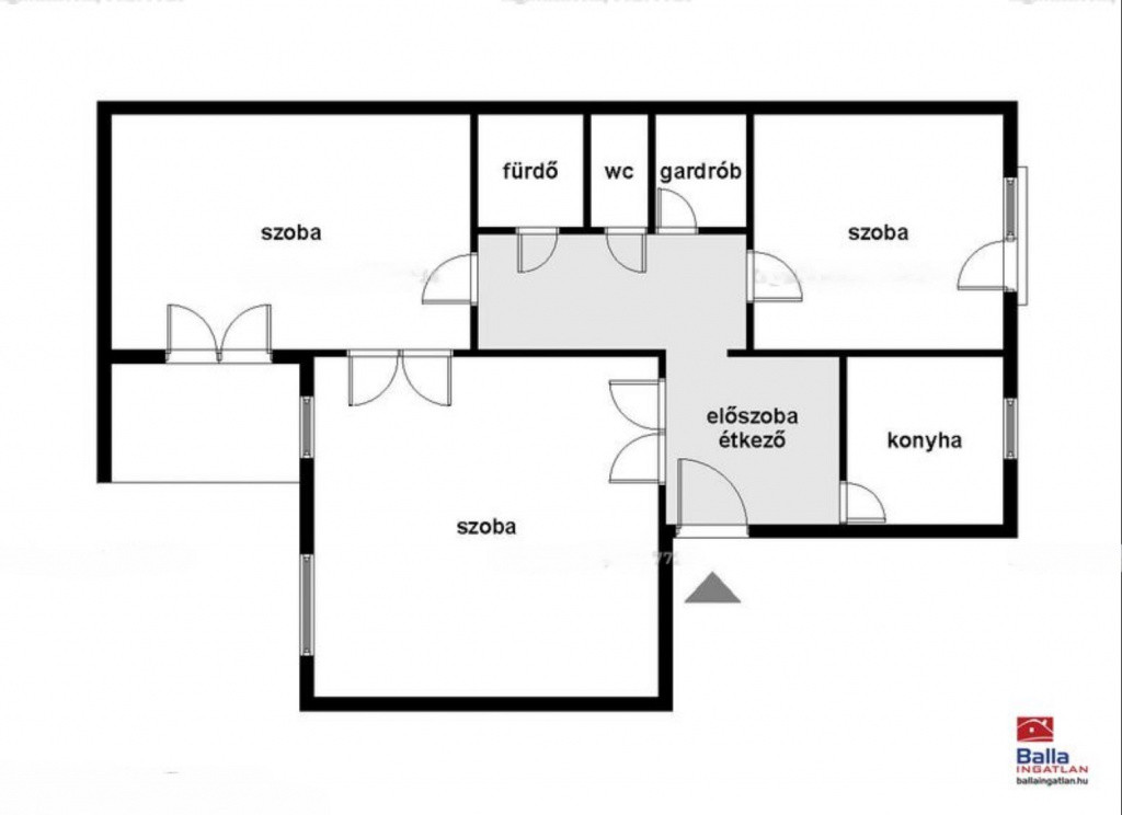
Az ingatlan 85 nm-es, 3 szobás, tágas, világos, erkélyes. A lakás elrendezése kiváló, kétirányba néző ablakai vannak, ablakos konyhával, külön étkezővel, külön fürdő-wc-vel, gardróbszobával rendelkezik.
Az ingatlanban műanyag nyílászárók vannak, légkondicionált. Fenntartása kedvező, a fűtés és a melegvíz házközponti. Korábban hosszú távon bérlők lakták, akik nagyon szerették. Az ingatlan közepes-jó állapotú.
Kiváló közlekedésű, barátságos környék. Parkolás könnyen megoldható a társasház előtt.
Saját tároló tartozik az ingatlanhoz!
Per és tehermentes!
Azonnal költözhető, birtokba vehető! Kiadásra is kiváló választás!
Megtisztelő hívását a hét minden napján fogadom és egyeztetés után mutatom!
Megvételre kínálom a közkedvelt III. kerületi Gyógyszergyár úti lakótelepen, egy panel építésű 4 emeletes társasház 3. emeleti lakását!
A hirdetésben szereplő valós képek a jelenlegi állapotot, míg a látványtervek a berendezett lehetőségeket (iroda, kávézó) mutatják be.
Az ingatlan 85 nm-es, 3 szobás, tágas, világos, erkélyes. A lakás elrendezése kiváló, kétirányba néző ablakai vannak, ablakos konyhával, külön étkezővel, külön fürdő-wc-vel, gardróbszobával rendelkezik.
Az ingatlanban műanyag nyílászárók vannak, légkondicionált. Fenntartása kedvező, a fűtés és a melegvíz házközponti. Korábban hosszú távon bérlők lakták, akik nagyon szerették. Az ingatlan közepes-jó állapotú.
Kiváló közlekedésű, barátságos környék. Parkolás könnyen megoldható a társasház előtt.
Saját tároló tartozik az ingatlanhoz!
Per és tehermentes!
Azonnal költözhető, birtokba vehető! Kiadásra is kiváló választás!
Megtisztelő hívását a hét minden napján fogadom és egyeztetés után mutatom!