Eladó Lakás
Hirdetéskód: 9308521
OTP Ingatlanpont - Takács Zsuzsanna
Felújításhoz személyi kölcsönt keres? Kalkuláljon itt! →
Ez a hirdetés megfelelhet a FIX 3%-os programnak.
Tudj meg többet a részletekről itt.
47.00 m2
ALAPTERÜLET1
SZOBASZÁMnincs megadva
ÉPÍTÉSEgyéb fűtés
FŰTÉS- CSOK igénybe vehető nem
- Tetőtér beépíthető nem
- Építés éve 2021
- Fűtés Egyéb fűtés
- Klíma nem
- Szigetelt nem
A+++
A++
A+
A
B
C
D
E
F
G
H
I
Az ingatlan leírása
ELADÓ INGATLAN - CSILLAGHEGY - III. KERÜLET - KÖZEL A DUNÁHOZ!
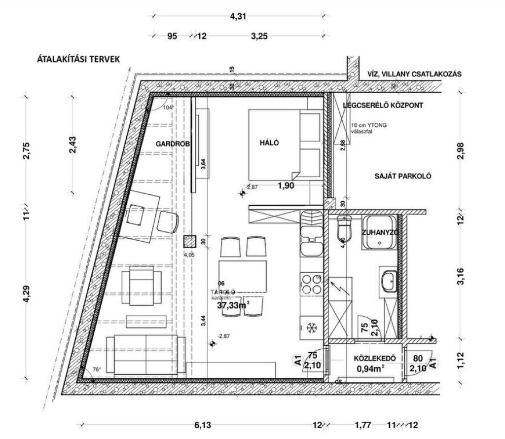
Budapest III. kerület, Csillaghegy részén ajánlom figyelmébe ezt a 2020-ban épült társasház alagsori részén található, 47 nm-es, jelenleg tárolóként funkcionáló ingatlant és a hozzá kapcsolódó (külön hrsz) 17 nm-es gépkocsitárolót. Hasznosítását tekintve, remek választás műteremnek, irodának, masszázsszalonnak, tárolónak. Az ingatlan irányára 23,625M HUF + ÁFA. Igény esetén van lehetőség a teljes műszaki kivitelezésre, amihez a tervek rendelkezésre állnak.
Az ingatlan jelenlegi állapota befejezetlen, felújítandó.
23,625 Millió HUF + ÁFA = BRUTTÓ 30M: 47 nm alagsori ingatlan + 17 nm mélygarázs.
ELŐNYÖK: jó lakóközösség, kiváló közlekedés, a teljes vételár kifizetése után azonnal birtokba vehető, rendezett tulajdoni lap, a Dunától elérhető távolságban helyezkedik el, teremgarázs parkolóhely a vételárban, cég az eladó, céges finanszírozás elérhető.
LOKÁCIÓ: Az ingatlan Budapest III. kerületben, Csillaghegy családi házas részén található, pár száz méterre a Dunától. A társasházban 4 lakás található, illetve mélygarázzsal is rendelkezik. Az ingatlant határoló utcák rendezettek, több játszótér és sportpálya található a közelben. A buszmegállók minimális távolságra vannak, ezután pedig a belváros, illetve a közelben található több bolt, orvosi rendelő, iskola, óvoda, tehát a lakás infrastrukturális adottságai kiválóak.
Amennyiben érdekli az ingatlan és szívesen megnézné, akkor hívjon bizalommal.
M324610
Az OTP Ingatlanpont, mint egyetlen közvetlen banki hátterű ingatlanközvetítő társaság teljes körű ügyintézéssel áll az eladók és a vevők rendelkezésére! A kínálatunkból választott ingatlan finanszírozásához minősített fogyasztóbarát, piaci és kedvezményes hitel- és lízingkonstrukciókat kínálunk (lakásvásárlási hitel, CSOK plusz, szabad felhasználású hitel, babaváró hitel, céges hitelek, pályázatok, amennyiben az ügyfél és az ingatlan megfelel a feltételeknek). Az adásvételi szerződés megkötéséhez igény szerint megbízható ügyvédi közreműködést biztosítunk, és segítséget nyújtunk az adásvételhez kapcsolódó egyéb ügyek intézéséhez.
Ha az új ingatlana megvásárlásához a jelenlegi ingatlanát el kell adnia, abban is szívesen segítünk.
Budapest III. kerület, Csillaghegy részén ajánlom figyelmébe ezt a 2020-ban épült társasház alagsori részén található, 47 nm-es, jelenleg tárolóként funkcionáló ingatlant és a hozzá kapcsolódó (külön hrsz) 17 nm-es gépkocsitárolót. Hasznosítását tekintve, remek választás műteremnek, irodának, masszázsszalonnak, tárolónak. Az ingatlan irányára 23,625M HUF + ÁFA. Igény esetén van lehetőség a teljes műszaki kivitelezésre, amihez a tervek rendelkezésre állnak.
Az ingatlan jelenlegi állapota befejezetlen, felújítandó.
23,625 Millió HUF + ÁFA = BRUTTÓ 30M: 47 nm alagsori ingatlan + 17 nm mélygarázs.
ELŐNYÖK: jó lakóközösség, kiváló közlekedés, a teljes vételár kifizetése után azonnal birtokba vehető, rendezett tulajdoni lap, a Dunától elérhető távolságban helyezkedik el, teremgarázs parkolóhely a vételárban, cég az eladó, céges finanszírozás elérhető.
LOKÁCIÓ: Az ingatlan Budapest III. kerületben, Csillaghegy családi házas részén található, pár száz méterre a Dunától. A társasházban 4 lakás található, illetve mélygarázzsal is rendelkezik. Az ingatlant határoló utcák rendezettek, több játszótér és sportpálya található a közelben. A buszmegállók minimális távolságra vannak, ezután pedig a belváros, illetve a közelben található több bolt, orvosi rendelő, iskola, óvoda, tehát a lakás infrastrukturális adottságai kiválóak.
Amennyiben érdekli az ingatlan és szívesen megnézné, akkor hívjon bizalommal.
M324610
Az OTP Ingatlanpont, mint egyetlen közvetlen banki hátterű ingatlanközvetítő társaság teljes körű ügyintézéssel áll az eladók és a vevők rendelkezésére! A kínálatunkból választott ingatlan finanszírozásához minősített fogyasztóbarát, piaci és kedvezményes hitel- és lízingkonstrukciókat kínálunk (lakásvásárlási hitel, CSOK plusz, szabad felhasználású hitel, babaváró hitel, céges hitelek, pályázatok, amennyiben az ügyfél és az ingatlan megfelel a feltételeknek). Az adásvételi szerződés megkötéséhez igény szerint megbízható ügyvédi közreműködést biztosítunk, és segítséget nyújtunk az adásvételhez kapcsolódó egyéb ügyek intézéséhez.
Ha az új ingatlana megvásárlásához a jelenlegi ingatlanát el kell adnia, abban is szívesen segítünk.